宮崎市村角町橘尊の中古戸建
掲載情報更新日:2026年05月22日 次回更新予定日:2026年06月05日
- 3,900万円
-
- 借入ご希望金額
万円 - 借入期間
年 - 借入金利
% - 月々のお支払い金額
円
- 借入ご希望金額
※ 月々のお支払例は目安の試算となりますので、実際の金額とは異なる場合がございます。詳しくは店舗までお問合わせください。
- 宮崎市村角町橘尊
-
JR日豊本線『蓮ケ池』 徒歩16分 (約1210m)
JR日豊本線『宮崎神宮』 徒歩38分 (約3020m)
JR日豊本線『日向住吉』 徒歩56分 (約4420m)
宮崎交通『栄・佐々木病院前』 徒歩4分 (約320m)
宮崎市村角町橘尊一戸建て | 物件情報
人工芝のお庭付きのゆとりある住まい。 オール電化・太陽光発電搭載のZEH住宅。
◆ 人工芝のお庭付き
手入れのしやすい人工芝のお庭があり、ご家族での時間や趣味の空間として活用できます。
◆ オール電化住宅
火を使わない安心感と、光熱費の管理がしやすい住まいです。
◆ 太陽光発電システム搭載
日々の電気使用をサポートし、環境にも配慮された設備が整っています。
◆ ZEH仕様の住宅
断熱性や省エネ性に配慮された住宅で、快適な室内環境が期待できます。
◆ バス停徒歩約4分
宮崎交通「栄・佐々木病院前」バス停まで徒歩圏内で、移動手段も確保されています。
物件の設備
- オール電化
- 公営水道
- 下水道
- 側溝
- 給湯
- 食器洗浄乾燥機
- IHクッキングヒーター
- コンロ三口
- カウンターキッチン
- システムキッチン
- バス
- オートバス
- バスサイズ1620
- 追焚機能
- 浴室乾燥機
- トイレ
- 温水洗浄便座
- 室内洗濯機置場
- 洗髪洗面化粧台
- 洗面所独立
- エアコン
- 照明器具
- 太陽光発電システム
- モニタ付インターホン
- LDK18畳以上
- 和室
- フローリング
- ウォークインクローゼット
- 全居室収納
- シューズインクローク
- 庭
- 宅配BOX
物件の特徴
- 免震構造
- 耐震構造
- 制震構造
- 前道6m以上
- 陽当り良好
- 2階建
- 建設住宅性能評価付
- 建築確認完了検査済証
- 耐震基準適合証明書有
- 瑕疵保険検査基準適合
- 新築
- 増改築設計図書
- BELS/省エネ基準適合
- 瑕疵保険(国交省指定)保証利用可
物件詳細情報
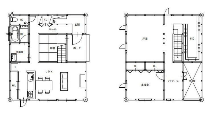
| 価格 | 3,900万円 | 間取り | 3LDK |
|---|---|---|---|
| 物件種別 | 中古一戸建て | ||
| 所在地 | 宮崎県宮崎市村角町橘尊 | ||
| アクセス |
|
||
| 建物面積 | 公107.64㎡ | 駐車場 | あり 普通:4台 |
| 築年月 | 2021年(令和3年)08月築 | ||
| 建物構造 | 木造 2階建 | 工法 | |
| 主要採光 | バルコニー | ||
| 保証・評価 | 【瑕疵保険(国交省指定)】利用可 耐震基準適合証明書・建設住宅性能評価書(新築時) |
||
| リフォーム | |||
| 土地面積 | 公334.74㎡(101.25坪) | 接道 | 北側(公道)幅 約6.0m |
| 私道 | セットバック | ||
| 地目 | 宅地 | 地勢 | 平坦 |
| 権利 | 所有権 |
||
| 都市計画 | 調整区域 調整区域につき建築許可要 |
用途地域 | 指定無 |
| 建ぺい/容積率 | 70% / 200% | 土地国土法 | |
| 許可番号 | 建築基準法 | ||
| 法令制限 | |||
| 小学区 | 東大宮小学校 徒歩28分 (約2180m) | 中学区 | 東大宮中学校 徒歩10分 (約790m) |
| 現況 | 居住中 | 引渡 | 相談 |
| その他費用 | |||
| 周辺環境 | ローソン 宮崎村角町店 徒歩3分 (約230m) セブンイレブン 宮崎村角町 徒歩4分 (約320m) 東大宮中学校 徒歩10分 (約790m) 蓮ヶ池駅 徒歩16分 (約1210m) タイヨー 桜町店 徒歩17分 (約1310m) セブンイレブン 宮崎芳士 徒歩17分 (約1320m) ファミリーマート 宮崎芳士/S店 徒歩18分 (約1370m) ながの屋 芳士店 徒歩20分 (約1570m) ローソン 宮崎芳士店 徒歩21分 (約1660m) 住吉南小学校 徒歩20分 (約1570m) |
||
| 備考 | 人工芝の広いお庭付き、オール電化、太陽光発電搭載のZEH住宅☆デザイン性も重視した高性能中古住宅♪ | ||
| 物件番号 | 4668019 | 取引態様 | 媒介 |
取扱店舗情報
| 電話番号 | 0985-86-7336 |
|---|---|
| 所在地 | 〒889-1607 宮崎県宮崎市清武町加納3丁目16 メモワールII101号室 |
| 営業時間 | 9:00~20:00 |
| 定休日 | 不定休 |
| 宅建免許番号 | 宮崎県知事(2)第4995号 |
| アクセス | 店舗への地図はこちら |

来店ご予約
宮崎県宮崎市で価格が似ている物件はこちら
- 宮崎県
マイページ物件数 - 1,522件
宮崎県中古一戸建て新着物件
-
-

-
- 中古一戸建て
- 2,730万円
-
宮崎市生目台西4丁目
-
JR日豊本線宮崎駅
-
-
-

-
- 中古一戸建て
- 2,580万円
-
宮崎市大字島之内
-
JR日豊本線蓮ケ池駅
-
-
-

-
- 中古一戸建て
- 2,280万円
-
宮崎市大字田吉
-
JR日南線田吉駅
-
-
-

-
- 中古一戸建て
- 2,650万円
-
宮崎市月見ケ丘6丁目
-
JR日豊本線加納駅
-
-
-

-
- 中古一戸建て
- 2,300万円
-
宮崎市月見ケ丘5丁目
-
JR日南線田吉駅
-
-
-

-
- 中古一戸建て
- 1,800万円
-
宮崎市清武町池田台
-
JR日豊本線加納駅
-
-
-

-
- 中古一戸建て
- 1,880万円
-
宮崎市大字糸原
-
JR日豊本線宮崎神宮駅
-
- お近くの店舗を探す
-
おすすめ物件
-
-

-
- 中古一戸建て
- 2,610万円
-
宮崎市大字恒久
-
福祉センター前
-
-
-

-
- 中古一戸建て
- 280万円
-
宮崎市佐土原町東上那珂
-
野久尾バス停
-
-
-

-
- 中古一戸建て
- 1,400万円
-
宮崎市堀川町
-
JR日豊本線宮崎
-
-
-

-
- 中古一戸建て
- 3,600万円
-
宮崎市高岡町飯田3丁目
-
JR日豊本線宮崎
-
-
-

-
- 中古一戸建て
- 1,600万円
-
日南市時任町
-
JR日南線飫肥
-
-
-

-
- 中古一戸建て
- 2,900万円
-
宮崎市田野町乙
-
JR日豊本線田野
-
-
-

-
- 中古一戸建て
- 1,580万円
-
宮崎市月見ケ丘6丁目
-
JR日豊本線加納
-
-
-

-
- 中古一戸建て
- 1,700万円
-
宮崎市大字本郷北方
-
JR日南線田吉
-
-
-

-
- 中古一戸建て
- 1,250万円
-
宮崎市清武町今泉丙
-
JR日豊本線清武
-
-
-

-
- 中古一戸建て
- 1,350万円
-
宮崎市大塚町小原田
-
JR日豊本線宮崎
-

































担当エージェント:小玉 賢太
宮崎市村角町橘尊に位置する中古戸建です。
人工芝のお庭があり、外時間も楽しめる住まいです。
オール電化や太陽光発電を備えたZEH住宅で、住環境にも配慮されています。
デザイン性と機能性を兼ね備えた点も魅力です。
現在居住中のため、内覧はご相談のうえご案内いたします。