高槻阿武山一番街104号棟 高槻市上土室3丁目の中古マンション
掲載情報更新日:2026年01月04日 次回更新予定日:2026年01月18日
- 1,980万円
-
- 借入ご希望金額
万円 - 借入期間
年 - 借入金利
% - 月々のお支払い金額
円
- 借入ご希望金額
※ 月々のお支払例は目安の試算となりますので、実際の金額とは異なる場合がございます。詳しくは店舗までお問合わせください。
- 高槻市上土室3丁目
-
JR東海道線『摂津富田』 バス乗車18分 上の池公園 停 徒歩3分 (約240m)
高槻市上土室3丁目マンション | 物件情報
◇最上階住戸! ◇両面バルコニー! ◇新耐震基準! ◇陽当り良好!
住宅ローン・資金計画にお悩みの方、是非当社にご相談ください!
住宅購入・お住み替えにつきもののお悩みを一緒に解決していきましょう!
・頭金0円で購入したい・・・
・駅近くのマンションに住み替えたい・・・
・住宅ローンが通るか不安・・・
・頭金が用意できない・・・
・毎月いくらまで払えるかわからない・・・
など、様々なお悩みをお持ちの方。
お気軽にお申し付け下さい♪
★物件のご内覧は、ご自宅への送迎や指定場所お待合わせでのご案内可。
★キッズスペース完備!DVDおもちゃなどご用意していますので安心してご来店ください。
★お客様専用駐車場完備!お気軽にご来店お待ちいたしております。
物件の設備
- 都市ガス
- バルコニー
物件の特徴
- 管理人日勤
物件詳細情報
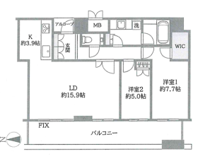
| 価格 | 1,980万円 | 間取り | 2DK |
|---|---|---|---|
| 物件種別 | 中古マンション | ||
| 所在地 | 大阪府高槻市上土室3丁目 | ||
| アクセス |
|
||
| 専有面積 | 壁芯 67.98㎡ | 所在階 | 5階建/5階部分 |
| 主要採光 | 南西向 | バルコニー | 南西向10.34㎡ |
| その他 | |||
| 権利 | 所有権 |
||
| 保証・評価 | |||
| リフォーム | |||
| 総戸数 | 面積 | ||
| 築年月 | 1989年(平成1年)03月築 | 建物構造 | RC |
| 施工会社 | 住宅都市整備公団 | ||
| 管理会社 | 日本総合住生活株式会社 | 管理方式 | 全部委託 日勤管理 |
| 駐車場 | |||
| 都市計画 | 市街化区域 |
用途地域 | 1種中高 |
| 建ぺい/容積率 | 60% / 200% | 土地国土法 | |
| 法令制限 | |||
| 小学区 | 中学区 | 阿武野中学校 徒歩10分 (約760m) | |
| 現況 | 空 | 引渡 | 相談 |
| 管理費 | 6,000円/月 | 修繕積立金 | 10,900円/月 |
| その他費用 | |||
| 周辺環境 | JR摂津富田駅 徒歩38分 (約3010m) 阪急富田 徒歩40分 (約3170m) 阿武山小学校(高槻市立) 徒歩12分 (約890m) 高槻市立 阿武山中学校 徒歩5分 (約390m) ローソン S高槻赤十字病院店 徒歩6分 (約470m) 上の池公園 徒歩5分 (約350m) ウエルシア高槻上土室店 徒歩6分 (約430m) 上土室公園 徒歩6分 (約430m) 高槻赤十字病院 徒歩7分 (約520m) 業務スーパー TAKENOKO 奈佐原店 徒歩10分 (約730m) |
||
| 備考 | |||
| 物件番号 | 4063504 | 取引態様 | 媒介 |
取扱店舗情報
ハウスドゥ 阪急茨木市駅南 株式会社エムアイエム 店舗詳細ページへ
| 電話番号 | 072-697-8701 |
|---|---|
| 所在地 | 〒567-0827 大阪府茨木市稲葉町11-8 ローズビルウチダ1F |
| 営業時間 | 10:00~19:00 |
| 定休日 | 水曜日、年末年始 |
| 宅建免許番号 | 大阪府知事(1)第64466号 |
| アクセス | 店舗への地図はこちら |

来店ご予約
大阪府高槻市で価格が似ている物件はこちら
- 大阪府
マイページ物件数 - 16,288件
大阪府中古マンション新着物件
-
-

-
- 中古マンション
- 1億3,280万円
-
大阪市中央区安土町2丁目
-
大阪市堺筋線堺筋本町駅
-
-
-

-
- 中古マンション
- 1億480万円
-
大阪市北区大淀南2丁目
-
JR大阪環状線福島駅
-
-
-

-
- 中古マンション
- 1,280万円
-
高槻市北柳川町
-
阪急電鉄京都線総持寺駅
-
-
-

-
- 中古マンション
- 4,180万円
-
大阪市淀川区三国本町2丁目
-
阪急電鉄宝塚線三国駅
-
-
-

-
- 中古マンション
- 1,350万円
-
大阪市西淀川区佃1丁目
-
阪神電鉄本線千船駅
-
-
-

-
- 中古マンション
- 3,080万円
-
大阪市淀川区新北野1丁目
-
阪急電鉄京都線十三駅
-
-
-

-
- 中古マンション
- 2,898万円
-
大阪市西成区玉出中1丁目
-
南海電鉄本線岸里玉出駅
-
- お近くの店舗を探す
-
おすすめ物件
-
-

-
- 中古マンション
- 3,990万円
-
茨木市園田町
-
阪急電鉄京都線茨木市
-
-
-

-
- 中古マンション
- 1,900万円
-
大阪市淀川区木川東4丁目
-
大阪市御堂筋線西中島南方
-
-
-

-
- 中古マンション
- 3,490万円
-
吹田市穂波町
-
阪急電鉄千里線吹田
-
-
-

-
- 中古マンション
- 620万円
-
大阪市住吉区沢之町2丁目
-
南海電鉄高野線我孫子前
-
-
-

-
- 中古マンション
- 950万円
-
泉大津市尾井千原町
-
南海電鉄本線北助松
-
-
-

-
- 中古マンション
- 5,490万円
-
高槻市天神町1丁目
-
JR東海道線高槻
-
-
-

-
- 中古マンション
- 1,980万円
-
大阪市淀川区新高1丁目
-
阪急電鉄神戸線神崎川
-
-
-

-
- 中古マンション
- 2,690万円
-
茨木市南春日丘1丁目
-
大阪モノレール彩都公園東口
-
-
-

-
- 中古マンション
- 2,890万円
-
高槻市古曽部町2丁目
-
JR東海道線高槻
-
-
-

-
- 中古マンション
- 4,180万円
-
茨木市上穂積4丁目
-
JR東海道線茨木
-






住宅ローン・資金計画にお悩みの方、是非当社にご相談ください!住宅購入・お住み替えにつきもののお悩みを一緒に解決していきましょう!お気軽にお申し付け下さい♪