グーディッシュ千歳船橋
掲載情報更新日:2026年01月22日 次回更新予定日:2026年02月05日
- 4,190万円
-
- 借入ご希望金額
万円 - 借入期間
年 - 借入金利
% - 月々のお支払い金額
円
- 借入ご希望金額
※ 月々のお支払例は目安の試算となりますので、実際の金額とは異なる場合がございます。詳しくは店舗までお問合わせください。
- 世田谷区千歳台4丁目
-
小田急小田原線『千歳船橋』 徒歩18分 (約1440m)
京王線『八幡山』 徒歩22分 (約1760m)
小田急小田原線『経堂』 バス乗車15分 千歳台四丁目 停 徒歩3分 (約240m)
小田急バス『宝性寺停』 徒歩2分 (約160m)
グーディッシュ千歳船橋マンション | 物件情報
≪アクセス≫
・小田急線千歳船橋駅まで徒歩18分
・物件周辺は街灯や歩道もあり、人通りの多い環境
・環八沿いの立地ですが、対象不動産には環八側に面する窓はなく、西側の静かなお部屋です。
・ペット飼育可
・フルリフォーム物件です♪
・1LDKの間取りタイプ~単身の方やDINKsにおすすめです~
物件の設備
- 公営水道
- 下水道
- 公共下水
- 都市ガス
- システムキッチン
- ユニットバス
- 追焚機能
- 浴室乾燥機
- 温水洗浄便座
- 室内洗濯機置場
- BS
- CS
- オートロック
- モニタ付インターホン
- モニタ付オートロック
- 防犯カメラ
- 2面採光
- フローリング
- クローゼット
- 収納スペース
- 全居室収納
- バルコニー
- ワイドバルコニー
- エレベーター
物件の特徴
- 管理人巡回
- セキュリティ充実
- 角部屋
- 南東角部屋
- 小学校徒歩10分以内
- 緑豊かな住宅地
- スーパーが近い
- 閑静な住宅街
- 眺望良好
- 通風良好
- 陽当り良好
- 高層階
- 外観タイル張
- 24時間ゴミ出可
- 適合リノベーション
- ペット相談
物件詳細情報
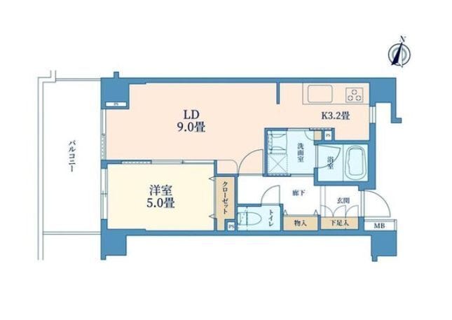
| 価格 | 4,190万円 | 間取り | 1LDK |
|---|---|---|---|
| 物件種別 | 中古マンション | ||
| 所在地 | 東京都世田谷区千歳台4丁目 | ||
| アクセス |
|
||
| 専有面積 | 壁芯 41.37㎡ | 所在階 | 9階建/2階部分 |
| 主要採光 | 西向 | バルコニー | |
| その他 | |||
| 権利 | 所有権 |
||
| 保証・評価 | |||
| リフォーム | |||
| 総戸数 | 26戸 | 面積 | |
| 築年月 | 2005年(平成17年)12月築 | 建物構造 | RC |
| 施工会社 | |||
| 管理会社 | ユニオン・シティサービス㈱ | 管理方式 | 全部委託 巡回管理 |
| 駐車場 | |||
| 都市計画 | 用途地域 | ||
| 建ぺい/容積率 | 土地国土法 | ||
| 法令制限 | |||
| 小学区 | 千歳台小学校 徒歩6分 (約410m) | 中学区 | 船橋希望中学校 徒歩6分 (約460m) |
| 現況 | 空 | 引渡 | 相談 |
| 管理費 | 5,600円/月 | 修繕積立金 | 10,080円/月 |
| その他費用 | |||
| 周辺環境 | 希望丘記念公園 徒歩4分 (約250m) ウエルシア薬局世田谷千歳台店 徒歩5分 (約340m) 西松屋世田谷千歳台店 徒歩5分 (約340m) ユニクロ世田谷千歳台店 徒歩4分 (約310m) セブンイレブン世田谷船橋7丁目店 徒歩8分 (約610m) 世田谷区立千歳台小学校 徒歩6分 (約410m) 船橋希望中学校 徒歩6分 (約460m) 千歳なないろ保育園 徒歩6分 (約460m) サミットストア千歳台店 徒歩8分 (約600m) セブンイレブン(千歳台二丁目) 徒歩10分 (約750m) |
||
| 備考 | |||
| 物件番号 | 4179909 | 取引態様 | 媒介 |
取扱店舗情報
ハウスドゥ 千歳船橋 R2-CONNECT株式会社 店舗詳細ページへ
| 電話番号 | 03-5799-7621 |
|---|---|
| 所在地 | 〒156-0054 東京都世田谷区桜丘5丁目47-19 |
| 営業時間 | 9:00~19:00 |
| 定休日 | 火曜日、水曜日 |
| 宅建免許番号 | 東京都知事(1)第107079号 |
| アクセス | 店舗への地図はこちら |

来店ご予約
東京都世田谷区で価格が似ている物件はこちら
- 東京都
マイページ物件数 - 5,196件
最近見た物件
-
-

-
- 中古一戸建て
- 2,280万円
-
笛吹市春日居町桑戸
-
JR中央本線春日居町
-
-
-

-
- 中古一戸建て
- 4,298万円
-
相楽郡精華町光台6丁目
-
近鉄けいはんな線学研奈良登美ヶ丘
-
-
-

-
- 新築一戸建て
- 2,780万円
-
熊本市北区八景水谷3丁目
-
熊本電気鉄道堀川
-
東京都中古マンション新着物件
-
-

-
- 中古マンション
- 6,980万円
-
江東区海辺
-
都営新宿線住吉駅
-
-
-

-
- 中古マンション
- 7,480万円
-
江戸川区南小岩8丁目
-
JR総武・中央緩行線小岩駅
-
-
-

-
- 中古マンション
- 2,990万円
-
葛飾区奥戸6丁目
-
JR総武・中央緩行線小岩駅
-
-
-

-
- 中古マンション
- 3,798万円
-
練馬区関町北5丁目
-
西武新宿線東伏見駅
-
-
-

-
- 中古マンション
- 2,499万円
-
葛飾区お花茶屋1丁目
-
京成本線お花茶屋駅
-
-
-

-
- 中古マンション
- 1,198万円
-
日野市東豊田3丁目
-
JR中央本線豊田駅
-
-
-

-
- 中古マンション
- 1億5,980万円
-
港区南麻布1丁目
-
東京メトロ南北線白金高輪駅
-
- お近くの店舗を探す
-
おすすめ物件
-
-

-
- 中古マンション
- 8,999万円
-
台東区小島1丁目
-
都営大江戸線新御徒町
-
-
-

-
- 中古マンション
- 2,480万円
-
日野市平山3丁目
-
京王線平山城址公園
-
-
-

-
- 中古マンション
- 6,980万円
-
練馬区立野町
-
西武新宿線武蔵関
-
-
-

-
- 中古マンション
- 3,680万円
-
千葉市中央区千葉港
-
千葉都市モノレール市役所前
-
-
-

-
- 中古マンション
- 1,250万円
-
練馬区関町北2丁目
-
西武新宿線武蔵関
-
-
-

-
- 中古マンション
- 8,480万円
-
台東区下谷3丁目
-
東京メトロ日比谷線入谷
-
-
-

-
- 中古マンション
- 4,080万円
-
葛飾区東金町6丁目
-
JR千代田・常磐緩行線金町
-
-
-

-
- 中古マンション
- 3,990万円
-
葛飾区水元1丁目
-
JR千代田・常磐緩行線金町
-
-
-

-
- 中古マンション
- 5,880万円
-
西東京市谷戸町2丁目
-
西武池袋・豊島線ひばりケ丘
-
-
-

-
- 中古マンション
- 3,799万円
-
小平市大沼町6丁目
-
西武新宿線小平
-








