東急ドエルアルス夕陽ヶ丘 大阪市天王寺区上汐5丁目の中古マンション
掲載情報更新日:2025年12月05日 次回更新予定日:2025年12月19日
- 5,280万円
-
- 借入ご希望金額
万円 - 借入期間
年 - 借入金利
% - 月々のお支払い金額
円
- 借入ご希望金額
※ 月々のお支払例は目安の試算となりますので、実際の金額とは異なる場合がございます。詳しくは店舗までお問合わせください。
- 大阪市天王寺区上汐5丁目
-
大阪市谷町線『四天王寺前夕陽ヶ丘』 徒歩4分 (約320m)
大阪市天王寺区上汐5丁目マンション | 物件情報
物件の設備
- 公営水道
- 下水道
- 食器洗浄乾燥機
- ユニットバス
- 浴室乾燥機
- 温水洗浄便座
- オートロック
- 和室
- フローリング
- ウォークインクローゼット
- 押入
- シューズボックス
- バルコニー
- 2面バルコニー
- 南面バルコニー
- エレベーター
物件の特徴
- 管理人日勤
- 即入居可
物件詳細情報
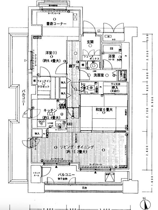
| 価格 | 5,280万円 | 間取り | 2LDK |
|---|---|---|---|
| 物件種別 | 中古マンション | ||
| 所在地 | 大阪府大阪市天王寺区上汐5丁目 | ||
| アクセス |
|
||
| 専有面積 | 壁芯 75.35㎡ | 所在階 | 11階建/7階部分 |
| 主要採光 | 南向 | バルコニー | |
| その他 | |||
| 権利 | 所有権 |
||
| 保証・評価 | |||
| リフォーム | |||
| 総戸数 | 面積 | ||
| 築年月 | 1998年(平成10年)03月築 | 建物構造 | SRC |
| 施工会社 | |||
| 管理会社 | 管理方式 | 全部委託 日勤管理 | |
| 駐車場 | |||
| 都市計画 | 用途地域 | ||
| 建ぺい/容積率 | 土地国土法 | ||
| 法令制限 | |||
| 小学区 | 大江小学校 徒歩9分 (約655m) | 中学区 | 天王寺中学校 徒歩19分 (約1500m) |
| 現況 | 居住中 | 引渡 | 即 |
| 管理費 | 17,000円/月 | 修繕積立金 | 11,680円/月 |
| その他費用 | |||
| 備考 | |||
| 物件番号 | 4230488 | 取引態様 | 媒介 |
取扱店舗情報
ハウスドゥ 玉造駅前 株式会社ホワイトマルベリーホーム 店舗詳細ページへ
| 電話番号 | 06-6191-1515 |
|---|---|
| 所在地 | 〒543-0014 大阪府大阪市天王寺区玉造元町2番7号 |
| 営業時間 | 9:30~18:30 |
| 定休日 | 火曜日、水曜日 |
| 宅建免許番号 | 大阪府知事(2)第60854号 |
| アクセス | 店舗への地図はこちら |

来店ご予約
大阪府大阪市天王寺区で価格が似ている物件はこちら
- 大阪府
マイページ物件数 - 15,902件
最近見た物件
-
-

-
- 中古マンション
- 1,680万円
-
茨木市美沢町
-
阪急電鉄京都線南茨木
-
-
-

-
- 中古一戸建て
- 1,950万円
-
那覇市首里石嶺町3丁目
-
沖縄都市モノレール石嶺
-
大阪府中古マンション新着物件
-
-

-
- 中古マンション
- 4,280万円
-
吹田市春日4丁目
-
北大阪急行南北線桃山台駅
-
-
-

-
- 中古マンション
- 2,098万円
-
大阪市淀川区野中南2丁目
-
阪急電鉄神戸線十三駅
-
-
-

-
- 中古マンション
- 1,288万円
-
大阪市住吉区沢之町2丁目
-
南海電鉄高野線我孫子前駅
-
-
-

-
- 中古マンション
- 2,100万円
-
大阪市城東区中央1丁目
-
大阪市長堀鶴見緑地線蒲生四丁目駅
-
-
-

-
- 中古マンション
- 900万円
-
豊中市原田元町3丁目
-
阪急電鉄宝塚線曽根駅
-
-
-

-
- 中古マンション
- 1,998万円
-
大阪市住之江区北島1丁目
-
南海電鉄本線住ノ江駅
-
-
-

-
- 中古マンション
- 3,280万円
-
大阪市城東区中央2丁目
-
大阪市長堀鶴見緑地線蒲生四丁目駅
-
- お近くの店舗を探す
-
おすすめ物件
-
-

-
- 中古マンション
- 1,350万円
-
貝塚市窪田
-
南海電鉄本線二色浜
-
-
-

-
- 中古マンション
- 2,980万円
-
西宮市苦楽園五番町
-
阪急電鉄甲陽線苦楽園口
-
-
-

-
- 中古マンション
- 2,280万円
-
八尾市永畑町3丁目
-
JR関西本線八尾
-
-
-

-
- 中古マンション
- 2,999万円
-
大阪市住之江区新北島2丁目
-
大阪市四つ橋線住之江公園
-
-
-

-
- 中古マンション
- 2,790万円
-
茨木市天王2丁目
-
阪急電鉄京都線南茨木
-
-
-

-
- 中古マンション
- 4,180万円
-
大阪市淀川区西三国4丁目
-
阪急電鉄宝塚線三国
-
-
-

-
- 中古マンション
- 5,198万円
-
吹田市芳野町
-
大阪市御堂筋線江坂
-
-
-

-
- 中古マンション
- 550万円
-
大阪市淀川区西中島6丁目
-
大阪市御堂筋線西中島南方
-
-
-

-
- 中古マンション
- 2,588万円
-
大阪市淀川区新高6丁目
-
阪急電鉄神戸線神崎川
-
-
-

-
- 中古マンション
- 2,890万円
-
吹田市末広町
-
JR東海道線吹田
-



