コスモ北戸田 戸田市笹目北町の中古マンション
掲載情報更新日:2025年09月29日 次回更新予定日:2025年10月13日
- 2,400万円
-
- 借入ご希望金額
万円 - 借入期間
年 - 借入金利
% - 月々のお支払い金額
円
- 借入ご希望金額
※ 月々のお支払例は目安の試算となりますので、実際の金額とは異なる場合がございます。詳しくは店舗までお問合わせください。
- 戸田市笹目北町
-
JR埼京線『北戸田』 徒歩14分 (約1120m)
戸田市笹目北町マンション | 物件情報
・JR埼京線「北戸田」駅より徒歩14分の立地・全居室収納完備・31平米の広々とした専用庭付き
~只今キャンペーン中~ご成約頂いたお客様にもれなく1万円分のクオカードを進呈中~
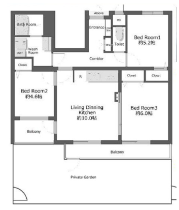
・専有面積62.71平米、バルコニー面積9.73平米の3LDK
・南向きにつき日当たり良好です
・31平米の広々とした専用庭付き
・食洗器・浴室乾燥機付きで設備充実
・全居室収納完備で荷物が多くても安心です
・コンビニやドラッグストアが徒歩圏内にあり、生活環境良好です
~お気軽にお問い合わせ下さい~
物件の設備
- 浄水器
- 食器洗浄乾燥機
- システムキッチン
- バス
- 追焚機能
- 浴室乾燥機
- シャワー
- トイレ
- 室内洗濯機置場
- 洗面所独立
- 照明器具
- ダウンライト
- 人感照明センサー
- クローゼット
- クローゼット2箇所
- クローゼット3箇所
- 玄関収納
- 収納スペース
- 全居室収納
- シューズボックス
- バルコニー
- ワイドバルコニー
- 南面バルコニー
- 2WAYバルコニー
- 専用庭
- 駐輪場
- バイク置場
物件の特徴
- 管理人巡回
- 南向
- スーパーが近い
- 閑静な住宅街
- 通風良好
- 陽当り良好
- ペット不可
物件詳細情報
価格 | 2,400万円 | 間取り | 3LDK |
---|---|---|---|
物件種別 | 中古マンション | ||
所在地 | 埼玉県戸田市笹目北町 | ||
アクセス |
|
||
専有面積 | 壁芯 62.71㎡ | 所在階 | 5階建/1階部分 |
主要採光 | 南向 | バルコニー | 南向9.73㎡ |
その他 | 31.00㎡ 1200円/月 | ||
権利 | 所有権 |
||
保証・評価 | |||
リフォーム | |||
総戸数 | 23戸 | 面積 | |
築年月 | 1989年(平成1年)05月築 | 建物構造 | RC |
施工会社 | |||
管理会社 | 大和ライフネクスト株式会社 | 管理方式 | 全部委託 巡回管理 管理組合あり |
駐車場 | 【駐車場】なし 【バイク置き場】空有 料金:200円/年 【駐輪場】空有 料金:100円/年 |
||
都市計画 | 用途地域 | ||
建ぺい/容積率 | 土地国土法 | ||
法令制限 | |||
小学区 | 美女木小学校 徒歩12分 (約950m) | 中学区 | 笹目中学校 徒歩3分 (約230m) |
現況 | 空 | 引渡 | 相談 |
管理費 | 15,435円/月 | 修繕積立金 | 19,080円/月 |
その他費用 | 専用庭使用料:1200円/月 町会費:200円/月 |
||
周辺環境 | 戸田市立笹目東保育園 徒歩7分 (約520m) ささめ幼稚園 徒歩16分 (約1230m) 戸田市立美女木小学校 徒歩12分 (約950m) 戸田市立笹目中学校 徒歩3分 (約230m) ローソン 戸田笹目北町店 徒歩3分 (約180m) オーケー 北戸田店 徒歩6分 (約410m) イオンモール北戸田 徒歩10分 (約750m) ドラッグセイムス 戸田笹目店 徒歩11分 (約870m) 戸田美女木東郵便局 徒歩16分 (約1270m) 北戸田駅前クリニック 徒歩13分 (約990m) |
||
備考 | |||
物件番号 | 4237251 | 取引態様 | 媒介 |
取扱店舗情報
ハウスドゥ 上福岡 GLOBAL HOLDINGS株式会社 店舗詳細ページへ
電話番号 | 049-264-1010 |
---|---|
所在地 | 〒356-0006 埼玉県ふじみ野市霞ケ丘1丁目2番27 ココネ上福岡1F |
営業時間 | 9:00~19:00 |
定休日 | 水曜日、年末年始 |
宅建免許番号 | 埼玉県知事(3)第22701号 |
アクセス | 店舗への地図はこちら |
来店ご予約
埼玉県戸田市で価格が似ている物件はこちら
- 埼玉県
マイページ物件数 - 3,702件
最近見た物件
-
-
-
- 中古マンション
- 2,420万円
-
宇都宮市元今泉4丁目
-
JR東北本線宇都宮
-
埼玉県中古マンション新着物件
-
-
-
- 中古マンション
- 2,980万円
-
さいたま市南区沼影2丁目
-
JR埼京線武蔵浦和駅
-
-
-
-
- 中古マンション
- 1,890万円
-
さいたま市西区大字指扇
-
JR川越線指扇駅
-
-
-
-
- 中古マンション
- 2,980万円
-
川口市本町4丁目
-
JR京浜東北・根岸線川口駅
-
-
-
-
- 中古マンション
- 1,390万円
-
川口市朝日2丁目
-
埼玉高速鉄道南鳩ヶ谷駅
-
-
-
-
- 中古マンション
- 2,380万円
-
蕨市北町1丁目
-
JR京浜東北・根岸線蕨駅
-
-
-
-
- 中古マンション
- 2,680万円
-
川口市東川口6丁目
-
JR武蔵野線東川口駅
-
-
-
-
- 中古マンション
- 1,990万円
-
川口市中青木4丁目
-
JR京浜東北・根岸線西川口駅
-
- お近くの店舗を探す
-
おすすめ物件
-
-
-
- 中古マンション
- 3,490万円
-
三郷市半田
-
JR武蔵野線新三郷
-
-
-
-
- 中古マンション
- 1,890万円
-
さいたま市見沼区東大宮4丁目
-
湘南新宿ライン宇須東大宮
-
-
-
-
- 中古マンション
- 3,700万円
-
新座市東2丁目
-
東武東上線志木
-
-
-
-
- 中古マンション
- 2,890万円
-
さいたま市北区櫛引町2丁目
-
埼玉新都市交通鉄道博物館(大成)
-
-
-
-
- 中古マンション
- 510万円
-
越谷市赤山町1丁目
-
東武伊勢崎・大師線越谷
-
-
-
-
- 中古マンション
- 980万円
-
北本市朝日2丁目
-
JR高崎線北本
-
-
-
-
- 中古マンション
- 5,480万円
-
上尾市柏座3丁目
-
JR高崎線上尾
-
-
-
-
- 中古マンション
- 2,390万円
-
越谷市蒲生寿町
-
東武伊勢崎・大師線蒲生
-
-
-
-
- 中古マンション
- 3,280万円
-
さいたま市緑区東浦和3丁目
-
JR武蔵野線東浦和
-
-
-
-
- 中古マンション
- 2,980万円
-
越谷市宮本町1丁目
-
東武伊勢崎・大師線越谷
-
担当エージェント:加藤 柊
弊社はより多くの方が購入し易いリーズナブルな価格の中古物件を取り揃えております。お客様一人一人のニーズに合った物件探しをモットーに全力でサポート致します。是非お気軽にご相談下さい。