【ライオンズマンション覚王山】2025年3月リフォーム完了!
掲載情報更新日:2025年12月25日 次回更新予定日:2026年01月08日
- 2,098万円
-
- 借入ご希望金額
万円 - 借入期間
年 - 借入金利
% - 月々のお支払い金額
円
- 借入ご希望金額
※ 月々のお支払例は目安の試算となりますので、実際の金額とは異なる場合がございます。詳しくは店舗までお問合わせください。
- 名古屋市千種区菊坂町2丁目
-
名古屋市東山線『覚王山』 徒歩4分 (約320m)
名古屋市東山線『池下』 徒歩8分 (約640m)
【ライオンズマンション覚王山】2025年3月リフォーム完了!マンション | 物件情報
地下鉄東山線「覚王山」駅まで徒歩4分!2025年3月リフォーム完了しました!
◆地下鉄東山線「覚王山」駅まで徒歩4分!
◆6階部分!最上階!
◆2025年3月リフォーム完了!
~リフォーム内容~
キッチン・ユニットバス・洗面化粧台・洗濯防水パン・洗濯用水栓交換
クロス・クッションフロア・フローリング張替、玄関フロアタイル上貼り、網戸張替
インターホン・下駄箱・巾木・戸当たり交換、ハウスクリーニング 他
~ライフインフォメーション~
田代小学校…徒歩8分(約620m)
城山中学校…徒歩14分(約1090m)
フランテロゼ覚王山…徒歩5分(約330m)
名古屋覚王山郵便局…徒歩2分(約140m)
春風ピッコロ保育園…徒歩11分(約860m)
三菱UFJ銀行 覚王山支店…徒歩3分(約200m)
覚王山日泰寺…徒歩11分(約850m)
ご見学&ご購入の相談は【ハウスドゥ葵新栄】までご連絡ください。
担当:うじいえ(070-1259-8612)
物件の設備
- 公営水道
- 下水道
- 公共下水
- 都市ガス
- 食器洗浄乾燥機
- コンロ三口
- カウンターキッチン
- システムキッチン
- バス
- 浴室暖房
- 浴室乾燥機
- トイレ
- 室内洗濯機置場
- フローリング
- フローリング張替
- クッションフロア
- クローゼット
- 収納スペース
- シューズボックス
- バルコニー
- 2面バルコニー
- ルーフバルコニー
- 南面バルコニー
- エレベーター
物件の特徴
- 管理人巡回
- 内装リフォーム済
- 外装リフォーム済
- 内外装リフォーム済
- 角部屋
- 南向
- 最上階
- 上階無
- ペット不可
物件詳細情報
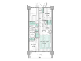
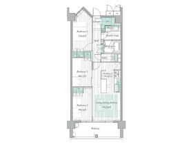
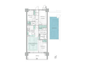
| 価格 | 2,098万円 | 間取り | 2LDK |
|---|---|---|---|
| 物件種別 | 中古マンション | ||
| 所在地 | 愛知県名古屋市千種区菊坂町2丁目 | ||
| アクセス |
|
||
| 専有面積 | 壁芯 70.17㎡ | 所在階 | 6階建/6階部分 |
| 主要採光 | 南向 | バルコニー | 南向14.58㎡ |
| その他 | 14.58㎡ | ||
| 権利 | 所有権 |
||
| 保証・評価 | |||
| リフォーム | 【水回り】2025年03月 キッチン・浴室・トイレ・洗面 【外装】2019年01月 大規模修繕 【内装】2025年03月 壁、天井 ・床 |
||
| 総戸数 | 27戸 | 面積 | |
| 築年月 | 1978年(昭和53年)09月築 | 建物構造 | RC |
| 施工会社 | |||
| 管理会社 | 株式会社大京アステージ | 管理方式 | 全部委託 巡回管理 |
| 駐車場 | |||
| 都市計画 | 市街化区域 |
用途地域 | 2種中高 |
| 建ぺい/容積率 | 60% / 200% | 土地国土法 | |
| 法令制限 | 準防火地域 20m高度地区 緑化地域 | ||
| 小学区 | 田代小学校 徒歩8分 (約620m) | 中学区 | 城山中学校 徒歩14分 (約1090m) |
| 現況 | 空 | 引渡 | 相談 |
| 管理費 | 14,200円/月 | 修繕積立金 | 16,420円/月 |
| その他費用 | |||
| 周辺環境 | 田代小学校 徒歩8分 (約620m) 城山中学校 徒歩14分 (約1090m) フランテロゼ覚王山 徒歩5分 (約330m) 名古屋覚王山郵便局 徒歩2分 (約140m) 春風ピッコロ保育園 徒歩11分 (約860m) 三菱UFJ銀行 覚王山支店 徒歩3分 (約200m) 覚王山日泰寺 徒歩11分 (約850m) |
||
| 備考 | ◆2025年3月リフォーム完了 キッチン・ユニットバス・洗面化粧台・洗濯防水パン・洗濯用水栓交換 クロス・クッションフロア・フローリング張替、玄関フロアタイル上貼り、網戸張替 インターホン・下駄箱・巾木・戸当たり交換、ハウスクリーニング 他 |
||
| 物件番号 | 4237677 | 取引態様 | 媒介 |
取扱店舗情報
| 電話番号 | 052-264-0123 |
|---|---|
| 所在地 | 〒460-0007 愛知県名古屋市中区新栄2丁目29番20号 |
| 営業時間 | 9:30~19:00 |
| 定休日 | 水曜日、年末年始 |
| 宅建免許番号 | 愛知県知事(2)第23562号 |
| アクセス | 店舗への地図はこちら |

来店ご予約
愛知県名古屋市千種区で価格が似ている物件はこちら
- 愛知県
マイページ物件数 - 31,507件
最近見た物件
-
-

-
- 新築一戸建て
- 3,498万円
-
豊橋市西幸町字笠松
-
豊橋鉄道渥美線南栄
-
-
-

-
- 中古マンション
- 1,998万円
-
名古屋市千種区内山3丁目
-
名古屋市東山線千種
-
-
-

-
- 土地
- 900万円
-
中川郡幕別町字明野
-
JR根室本線幕別
-
愛知県中古マンション新着物件
-
-

-
- 中古マンション
- 1,800万円
-
名古屋市緑区鳴海町字鉾ノ木
-
名鉄名古屋本線鳴海駅
-
-
-

-
- 中古マンション
- 3,480万円
-
豊田市浄水町原山
-
名鉄豊田線浄水駅
-
-
-

-
- 中古マンション
- 2,099万円
-
豊田市水源町6丁目
-
愛知環状鉄道三河豊田駅
-
-
-

-
- 中古マンション
- 1,600万円
-
瀬戸市共栄通2丁目
-
名鉄瀬戸線瀬戸市役所前駅
-
-
-

-
- 中古マンション
- 2,280万円
-
東海市大田町上浜田
-
名鉄常滑線太田川駅
-
-
-

-
- 中古マンション
- 1,480万円
-
名古屋市熱田区旗屋町
-
名古屋市名城線熱田神宮西駅
-
-
-

-
- 中古マンション
- 3,190万円
-
名古屋市熱田区一番3丁目
-
名古屋市名港線六番町駅
-
- お近くの店舗を探す
-
おすすめ物件
-
-

-
- 中古マンション
- 1,490万円
-
名古屋市東区砂田橋2丁目
-
名古屋市名城線砂田橋
-
-
-

-
- 中古マンション
- 4,180万円
-
名古屋市中村区松重町
-
名古屋市鶴舞線大須観音
-
-
-

-
- 中古マンション
- 2,199万円
-
名古屋市緑区有松南
-
名鉄名古屋本線有松
-
-
-

-
- 中古マンション
- 2,290万円
-
小牧市大字小牧原新田
-
名鉄小牧線小牧原
-
-
-

-
- 中古マンション
- 1,498万円
-
名古屋市東区矢田3丁目
-
名鉄瀬戸線矢田
-
-
-

-
- 中古マンション
- 498万円
-
名古屋市緑区鳴海町字山腰
-
名鉄名古屋本線鳴海
-
-
-

-
- 中古マンション
- 3,700万円
-
名古屋市熱田区西野町1丁目
-
名古屋市名港線日比野
-
-
-

-
- 中古マンション
- 1,480万円
-
岩倉市新柳町1丁目
-
名鉄犬山線岩倉
-
-
-

-
- 中古マンション
- 2,299万円
-
名古屋市中川区尾頭橋1丁目
-
JR東海道本線尾頭橋
-
-
-

-
- 中古マンション
- 3,490万円
-
東海市大田町御洲浜
-
名鉄常滑線太田川
-





































