中古マンション シャトレ愛松一宮VII
掲載情報更新日:2026年04月17日 次回更新予定日:2026年05月01日
- 1,590万円
-
- 借入ご希望金額
万円 - 借入期間
年 - 借入金利
% - 月々のお支払い金額
円
- 借入ご希望金額
※ 月々のお支払例は目安の試算となりますので、実際の金額とは異なる場合がございます。詳しくは店舗までお問合わせください。
- 一宮市奥町字野方
-
名鉄尾西線『玉ノ井』 徒歩10分 (約800m)
名鉄尾西線『奥町』 徒歩16分 (約1280m)
中古マンション シャトレ愛松一宮VIIマンション | 物件情報
ご見学のご予約はハウスドゥ一宮中央へ!◆今から見たい◆いろんな物件を見たい◆ご対応いたします♪
◆ハウスドゥ一宮中央◆
●新築住宅・中古住宅・中古マンション・土地や事業用に関すること 何でもご相談ください!
●いろんな不動産屋さんを回らなくても大丈夫!!
当店は地域密着で一宮市内はもちろんのこと、その他地域の物件もまとめてご紹介できます!
掲載されていない物件もご案内可能です!ぜひご相談くださいね♪
●専門スタッフによる資金計画のご相談承っております!
マイホームが欲しい!!でも何から始めたらいいかわからない。お話しをしっかり伺い、お客様にあったご提案をさせていただきます。資金計画、住宅ローンやお金のご不安のある方もお任せください。
●不動産の売却・査定・買取もご相談ください
見るだけOK!聞くだけOK!お気軽にお問合せくださいね♪
物件の設備
- フローリング張替
物件の特徴
- 管理人巡回
- 内装リフォーム済
- 2沿線利用可
- 即入居可
物件詳細情報
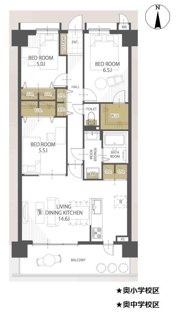
| 価格 | 1,590万円 | 間取り | 3LDK |
|---|---|---|---|
| 物件種別 | 中古マンション | ||
| 所在地 | 愛知県一宮市奥町字野方 | ||
| アクセス |
|
||
| 専有面積 | 75.60㎡ | 所在階 | 10階建/3階部分 |
| 主要採光 | バルコニー | ||
| その他 | |||
| 権利 | 所有権 |
||
| 保証・評価 | |||
| リフォーム | 【水回り】2025年06月 キッチン・浴室・トイレ・洗面 【内装】2025年06月 床 ・全室クロス ・建具 |
||
| 総戸数 | 66戸 | 面積 | |
| 築年月 | 1998年(平成10年)10月築 | 建物構造 | RC |
| 施工会社 | 真柄建設株式会社 | ||
| 管理会社 | 株式会社アイホーム | 管理方式 | 一部管理 巡回管理 |
| 駐車場 | |||
| 都市計画 | 市街化区域 |
用途地域 | 準工業 |
| 建ぺい/容積率 | 60% / 200% | 土地国土法 | |
| 法令制限 | 法22条区域 | ||
| 小学区 | 奥小学校 徒歩10分 (約800m) | 中学区 | 奥中学校 徒歩17分 (約1300m) |
| 現況 | 空 | 引渡 | 即 |
| 管理費 | 6,800円/月 | 修繕積立金 | 8,580円/月 |
| その他費用 | |||
| 周辺環境 | ファミリーマート一宮奥町野方店 徒歩3分 (約190m) クスリのアオキ玉ノ井店 徒歩4分 (約250m) スーパー三心玉ノ井店 徒歩10分 (約800m) 奥小学校 徒歩10分 (約800m) 奥中学校 徒歩17分 (約1300m) |
||
| 備考 | ■平面駐車場あり 3500~5500円/月 ■2025年6月リフォーム済(キッチン、浴室、洗面台、トイレ、建具交換、クロス全室貼替、床材張替、ハウスクリーニング) |
||
| 物件番号 | 4246603 | 取引態様 | 媒介 |
取扱店舗情報
ハウスドゥ 一宮中央 株式会社城西ホームテック 店舗詳細ページへ
| 電話番号 | 0586-24-1703 |
|---|---|
| 所在地 | 〒491-0024 愛知県一宮市富士2丁目14-4 |
| 営業時間 | 9:30~18:00 |
| 定休日 | 水曜日、年末年始、夏季休暇 |
| 宅建免許番号 | 愛知県知事(2)第23489号 |
| アクセス | 店舗への地図はこちら |

来店ご予約
愛知県一宮市で価格が似ている物件はこちら
- 愛知県
マイページ物件数 - 32,170件
最近見た物件
-
-

-
- 新築一戸建て
- 2,790万円
-
豊川市国府町流霞
-
名鉄名古屋本線国府
-
-
-

-
- 新築一戸建て
- 4,298万円
-
糟屋郡志免町桜丘3丁目
-
JR香椎線須恵中央
-
-
-

-
- 新築一戸建て
- 2,890万円
-
富士宮市宮原
-
JR身延線西富士宮
-
愛知県中古マンション新着物件
-
-

-
- 中古マンション
- 1,980万円
-
豊田市水源町2丁目
-
愛知環状鉄道三河豊田駅
-
-
-

-
- 中古マンション
- 3,490万円
-
豊田市寿町7丁目
-
名鉄三河線土橋駅
-
-
-

-
- 中古マンション
- 740万円
-
名古屋市中村区椿町
-
JR東海道本線名古屋駅
-
-
-

-
- 中古マンション
- 1,750万円
-
尾張旭市桜ケ丘町2丁目
-
名鉄瀬戸線印場駅
-
-
-

-
- 中古マンション
- 1,750万円
-
尾張旭市桜ケ丘町2丁目
-
名鉄瀬戸線印場駅
-
-
-

-
- 中古マンション
- 3,490万円
-
豊田市寿町7丁目
-
名鉄三河線土橋駅
-
-
-

-
- 中古マンション
- 1,480万円
-
名古屋市千種区池上町2丁目
-
名古屋市東山線本山駅
-
- お近くの店舗を探す
-
おすすめ物件
-
-

-
- 中古マンション
- 1,050万円
-
東海市加木屋町山之脇
-
名鉄河和線加木屋中ノ池
-
-
-

-
- 中古マンション
- 2,280万円
-
名古屋市緑区鳴海町字山腰
-
名鉄名古屋本線鳴海
-
-
-

-
- 中古マンション
- 1,980万円
-
名古屋市中区金山2丁目
-
JR東海道本線金山
-
-
-

-
- 中古マンション
- 2,090万円
-
豊田市東梅坪町8丁目
-
名鉄豊田線梅坪
-
-
-

-
- 中古マンション
- 1,340万円
-
瀬戸市北山町
-
名鉄瀬戸線水野
-
-
-

-
- 中古マンション
- 900万円
-
知多市新知字大内
-
名鉄常滑線古見
-
-
-

-
- 中古マンション
- 2,980万円
-
名古屋市昭和区八事富士見
-
名古屋市名城線八事日赤
-
-
-

-
- 中古マンション
- 1,280万円
-
名古屋市西区稲生町字杁先
-
名古屋市鶴舞線庄内通
-
-
-

-
- 中古マンション
- 1,698万円
-
名古屋市千種区菊坂町2丁目
-
名古屋市東山線覚王山
-
-
-

-
- 中古マンション
- 520万円
-
名古屋市東区東桜2丁目
-
名古屋市東山線新栄町
-




担当エージェント:野田
ハウスドゥ一宮中央です。お客様のマイホームの夢をかなえるために、物件の提案はもちろん、現地へのご案内・ご説明・ご契約・住宅ローンのお手続き・火災保険やリフォームのご提案・お引渡しまでわたくしが責任を持ってご担当させて頂きます。資金計画、住宅ローンやお金のご不安のあるお客様でも不安を解消する事で安心してお家探しが出来ます。魅力あふれる多くの物件の最新情報を1件でも多くお伝えしたいと思っております!些細なことなんでもお気軽にお問い合わせください。