ロマネスク原第2 福岡市早良区原4丁目の中古マンション
掲載情報更新日:2025年09月29日 次回更新予定日:2025年10月13日
- 1,890万円
-
- 借入ご希望金額
万円 - 借入期間
年 - 借入金利
% - 月々のお支払い金額
円
- 借入ご希望金額
※ 月々のお支払例は目安の試算となりますので、実際の金額とは異なる場合がございます。詳しくは店舗までお問合わせください。
- 福岡市早良区原4丁目
-
福岡市空港線『藤崎』 徒歩23分 (約1810m)
福岡市七隈線『賀茂』 徒歩30分 (約2360m)
福岡市早良区原4丁目マンション | 物件情報
~安心してお家を購入したい方は当店までお気軽にお問い合わせください♪~
今のお見積もりに不安がある方も大歓迎//しっかり比べてじっくり検討できます♪
「はじめての家探しで不安。どうしたらよいのかわからない」
「他社との見積もりを比較してみたい」
「借入があるけど、ローン審査が通るか心配」
上記のようなお悩みについてもお気軽にお尋ねください♪
『ハウスドゥ 福岡野方』が後悔のないマイホーム選びの為に全力でお家探しをサポートさせて頂きます!
キッズスペースあり!全てのお客様とのご縁を大切に。安心してご来店ください♪
物件の設備
- 都市ガス
- 給湯
- コンロ三口
- システムキッチン
- 浴室乾燥機
- 温水洗浄便座
- 室内洗濯機置場
- 照明器具
- オートロック
- モニタ付インターホン
- フローリング張替
- 収納スペース
- 全居室収納
- シューズボックス
- バルコニー
- 南面バルコニー
- エレベーター
物件の特徴
- 管理人日勤
- 内装リフォーム済
- 眺望良好
- 陽当り良好
- 即入居可
- ペット不可
物件詳細情報
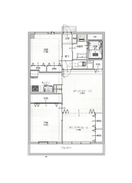
価格 | 1,890万円 | 間取り | 3LDK |
---|---|---|---|
物件種別 | 中古マンション | ||
所在地 | 福岡県福岡市早良区原4丁目 | ||
アクセス |
|
||
専有面積 | 壁芯 67.00㎡ | 所在階 | 7階建/6階部分 |
主要採光 | バルコニー | 南向8.47㎡ | |
その他 | |||
権利 | 所有権 |
||
保証・評価 | |||
リフォーム | 【水回り】2024年11月 キッチン・浴室・トイレ システムキッチンI型2100・洗面化粧台W900・ユニットバス1317・トイレウォッシュ一体型他 【内装】2024年11月 壁、天井 ・床 ・全室クロス ・建具 全室クロス張替・全室フロアタイル貼 ドア建具交換・下足入れ新設・全居室照明器具新品設置・スイッチコンセント全交換、分電盤新品交換 |
||
総戸数 | 49戸 | 面積 | |
築年月 | 1991年(平成3年)02月築 | 建物構造 | RC |
施工会社 | |||
管理会社 | 東福互光株式会社 | 管理方式 | 全部委託 日勤管理 |
駐車場 | 【駐車場】空無 |
||
都市計画 | 用途地域 | ||
建ぺい/容積率 | 土地国土法 | ||
法令制限 | |||
小学区 | 大原小学校 徒歩4分 (約300m) | 中学区 | |
現況 | 空 | 引渡 | 即 |
管理費 | 10,010円/月 | 修繕積立金 | 8,182円/月 |
その他費用 | 組合費:100円/月・バルコニー使用料:343円/月 |
||
周辺環境 | 福岡市立大原小学校 徒歩4分 (約300m) 福岡銀行 原支店 徒歩4分 (約300m) ドラッグストアコスモス 原中央店 徒歩4分 (約290m) ローソン 福岡原団地 徒歩4分 (約310m) 福岡原五郵便局 徒歩6分 (約460m) 藤崎駅 徒歩23分 (約1810m) 壱岐公園 徒歩34分 (約2650m) イオン原店 徒歩9分 (約700m) |
||
備考 | 【周辺環境】 ・福岡市立大原小学校まで徒歩4分(約300m) ・福岡銀行 原支店まで徒歩4分(約300m) ・ドラッグストアコスモス 原中央店まで徒歩4分(約290m) ・ローソン 福岡原団地まで徒歩4分(約310m) ・サンリブBUONO原店まで徒歩6分(約440m) ・福岡原五郵便局まで徒歩6分(約460m) ・藤崎駅まで徒歩23分(約1810m) ・壱岐公園まで徒歩34分(約2650m) |
||
物件番号 | 4255384 | 取引態様 | 媒介 |
取扱店舗情報
ハウスドゥ 福岡野方 株式会社RESEARCH&DEVELOPMENT 店舗詳細ページへ
電話番号 | 092-836-6600 |
---|---|
所在地 | 〒819-0043 福岡県福岡市西区野方1丁目5-9 |
営業時間 | 10:00~18:00 |
定休日 | 火曜日、水曜日、年末年始 |
宅建免許番号 | 福岡県知事(2)第19328号 |
アクセス | 店舗への地図はこちら |
来店ご予約
福岡県福岡市早良区で価格が似ている物件はこちら
- 福岡県
マイページ物件数 - 8,357件
最近見た物件
-
-
-
- 中古マンション
- 3,190万円
-
福岡市早良区百道2丁目
-
福岡市空港線藤崎
-
-
-
-
- 中古マンション
- 798万円
-
北九州市門司区泉ケ丘
-
JR鹿児島本線門司
-
-
-
-
- 中古マンション
- 2,190万円
-
福岡市東区土井2丁目
-
JR香椎線土井
-
福岡県中古マンション新着物件
-
-
-
- 中古マンション
- 2,999万円
-
福岡市南区平和2丁目
-
西鉄天神大牟田線西鉄平尾駅
-
-
-
-
- 中古マンション
- 3,280万円
-
大野城市白木原1丁目
-
西鉄天神大牟田線白木原駅
-
-
-
-
- 中古マンション
- 850万円
-
北九州市小倉北区金田2丁目
-
JR日豊本線南小倉駅
-
-
-
-
- 中古マンション
- 4,499万円
-
福岡市博多区吉塚5丁目
-
JR鹿児島本線吉塚駅
-
-
-
-
- 中古マンション
- 4,899万円
-
福岡市博多区古門戸町
-
福岡市空港線中洲川端駅
-
-
-
-
- 中古マンション
- 2,999万円
-
福岡市南区平和2丁目
-
西鉄天神大牟田線西鉄平尾駅
-
-
-
-
- 中古マンション
- 1,980万円
-
福岡市南区向野2丁目
-
西鉄天神大牟田線大橋駅
-
- お近くの店舗を探す
-
おすすめ物件
-
-
-
- 中古マンション
- 1,498万円
-
福岡市早良区高取1丁目
-
福岡市空港線藤崎
-
-
-
-
- 中古マンション
- 1,298万円
-
福岡市早良区荒江3丁目
-
福岡市空港線藤崎
-
-
-
-
- 中古マンション
- 2,380万円
-
糟屋郡志免町別府北2丁目
-
福岡市空港線福岡空港
-
-
-
-
- 中古マンション
- 5,690万円
-
福岡市早良区昭代3丁目
-
福岡市空港線藤崎
-
-
-
-
- 中古マンション
- 1,398万円
-
北九州市八幡東区春の町4丁目
-
JR鹿児島本線八幡
-
-
-
-
- 中古マンション
- 2,299万円
-
大野城市東大利2丁目
-
西鉄天神大牟田線下大利
-
-
-
-
- 中古マンション
- 3,999万円
-
福岡市東区香椎浜3丁目
-
JR香椎線香椎
-
-
-
-
- 中古マンション
- 800万円
-
北九州市小倉北区山門町
-
北九州高速鉄道香春口三萩野
-
-
-
-
- 中古マンション
- 6,180万円
-
福岡市早良区西新2丁目
-
福岡市空港線西新
-
-
-
-
- 中古マンション
- 1,450万円
-
久留米市小頭町
-
西鉄天神大牟田線花畑
-
担当エージェント:永田 雄介
【月々の支払い例】
2,290万円借り入れの場合
月々47,136円(頭金・ボーナス払いなし)
金利 0.875%
変動金利 返済期間50年
※あくまでも一例です。条件あり