田園フラワーホーム 世田谷区玉堤1丁目の中古マンション
掲載情報更新日:2025年10月11日 次回更新予定日:2025年10月25日
- 2,270万円
-
- 借入ご希望金額
万円 - 借入期間
年 - 借入金利
% - 月々のお支払い金額
円
- 借入ご希望金額
※ 月々のお支払例は目安の試算となりますので、実際の金額とは異なる場合がございます。詳しくは店舗までお問合わせください。
- 世田谷区玉堤1丁目
-
東急大井町線『尾山台』 徒歩21分 (約1680m)
世田谷区玉堤1丁目マンション | 物件情報
管理体制良好なヴィンテージマンション!目の前には多摩川が流れています。
◆室内すべて新規設備で充実の空間
◆2025年4月内装新規フルリノベーション
物件の設備
- 公営水道
- 公共下水
- 都市ガス
- 給湯
- 追焚機能
- 浴室乾燥機
- 温水洗浄便座
- 室内洗濯機置場
- クローゼット
- シューズボックス
- バルコニー
- エレベーター
物件の特徴
- 管理人日勤
物件詳細情報
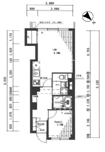
価格 | 2,270万円 | 間取り | 1LDK |
---|---|---|---|
物件種別 | 中古マンション | ||
所在地 | 東京都世田谷区玉堤1丁目 | ||
アクセス |
|
||
専有面積 | 34.65㎡ | 所在階 | 6階建/5階部分 |
主要採光 | 南西向 | バルコニー | 南西向5.69㎡ |
その他 | |||
権利 | |||
保証・評価 | |||
リフォーム | |||
総戸数 | 面積 | ||
築年月 | 1976年(昭和51年)05月築 | 建物構造 | RC |
施工会社 | 長谷部建設株式会社 | ||
管理会社 | 株式会社大京アステージ | 管理方式 | 全部委託 日勤管理 |
駐車場 | |||
都市計画 | 用途地域 | ||
建ぺい/容積率 | 土地国土法 | ||
法令制限 | |||
小学区 | 中学区 | ||
現況 | 空 | 引渡 | 相談 |
管理費 | 8,480円/月 | 修繕積立金 | 8,930円/月 |
その他費用 | その他負担金:1000円 管理組合費 |
||
周辺環境 | 二子玉川 蔦屋家電 徒歩38分 (約2980m) 二子玉川ライズ 徒歩41分 (約3280m) 三井住友銀行 二子玉川支店 徒歩41分 (約3280m) 成城石井 二子玉川東急フードショー店 徒歩41分 (約3280m) 二子玉川駅 徒歩41分 (約3280m) 二子玉川駅前タクシー乗り場 徒歩41分 (約3280m) |
||
備考 | ・二子玉川 蔦屋家電まで徒歩38分(約2980m) ・二子玉川ライズまで徒歩41分(約3280m) ・三井住友銀行 二子玉川支店まで徒歩41分(約3280m) ・成城石井 二子玉川東急フードショー店まで徒歩41分(約3280m) ・二子玉川駅まで徒歩41分(約3280m) ・二子玉川駅前タクシー乗り場まで徒歩41分(約3280m) |
||
物件番号 | 4259939 | 取引態様 | 媒介 |
取扱店舗情報
ハウスドゥ 三軒茶屋 株式会社エルピープロ 店舗詳細ページへ
電話番号 | 03-6450-7233 |
---|---|
所在地 | 〒154-0024 東京都世田谷区三軒茶屋2丁目34-1 1F |
営業時間 | 10:00~18:00 |
定休日 | 水曜日 |
宅建免許番号 | 東京都知事(3)第96562号 |
アクセス | 店舗への地図はこちら |
来店ご予約
東京都世田谷区で価格が似ている物件はこちら
- 東京都
マイページ物件数 - 5,709件
最近見た物件
-
-
-
- 中古一戸建て
- 1,380万円
-
宮崎市佐土原町下那珂
-
JR日豊本線佐土原
-
東京都中古マンション新着物件
- お近くの店舗を探す
-
おすすめ物件
-
-
-
- 中古マンション
- 2,780万円
-
青梅市新町3丁目
-
JR青梅線小作
-
-
-
-
- 中古マンション
- 4,498万円
-
世田谷区成城3丁目
-
小田急小田原線成城学園前
-
-
-
-
- 中古マンション
- 4,880万円
-
板橋区南常盤台1丁目
-
東武東上線ときわ台
-
-
-
-
- 中古マンション
- 3,299万円
-
足立区梅田8丁目
-
東武伊勢崎・大師線梅島
-
-
-
-
- 中古マンション
- 1,398万円
-
足立区大谷田1丁目
-
東京メトロ千代田線綾瀬
-
-
-
-
- 中古マンション
- 3,500万円
-
板橋区常盤台3丁目
-
東武東上線ときわ台
-
-
-
-
- 中古マンション
- 4,199万円
-
葛飾区南水元1丁目
-
JR千代田・常磐緩行線金町
-
-
-
-
- 中古マンション
- 2,890万円
-
足立区大谷田4丁目
-
東京メトロ千代田線北綾瀬
-
-
-
-
- 中古マンション
- 5,480万円
-
足立区千住元町
-
JR千代田・常磐緩行線北千住
-
-
-
-
- 中古マンション
- 5,680万円
-
台東区台東1丁目
-
都営大江戸線新御徒町
-
管理は日勤管理の為、共用部分の清掃やメンテナンスが行き届いていて非常に綺麗なマンションです。