アネシス空港東 参番館
掲載情報更新日:2026年02月17日 次回更新予定日:2026年03月03日
- 2,980万円
-
- 借入ご希望金額
万円 - 借入期間
年 - 借入金利
% - 月々のお支払い金額
円
- 借入ご希望金額
※ 月々のお支払例は目安の試算となりますので、実際の金額とは異なる場合がございます。詳しくは店舗までお問合わせください。
- 糟屋郡志免町別府北2丁目
-
JR篠栗線『柚須』 徒歩17分 (約1300m)
福岡市空港線『福岡空港』 徒歩23分 (約1800m)
JR篠栗線『原町』 徒歩28分 (約2200m)
アネシス空港東 参番館マンション | 物件情報
物件の設備
- 食器洗浄乾燥機
- IHクッキングヒータ
- カウンターキッチン
- システムキッチン
- ユニットバス
- 浴室乾燥機
- トイレ
- 温水洗浄便座
- 室内洗濯機置場
- 洗髪洗面化粧台
- ダウンライト
- オートロック
- モニタ付インターホン
- 全居室複層ガラス
- フローリング張替
- 24時間換気システム
- ウォークインクローゼット
- 全居室収納
- シューズボックス
- バルコニー
- ワイドバルコニー
- 南面バルコニー
- 宅配BOX
- エレベーター
- 駐輪場
- バイク置場
物件の特徴
- 管理人日勤
- 内装リフォーム済
- 内装リフォーム後渡
- 駅まで平坦
- スーパーが近い
- 市街地が近い
- 通風良好
- 陽当り良好
- 即入居可
- ペット不可
物件詳細情報
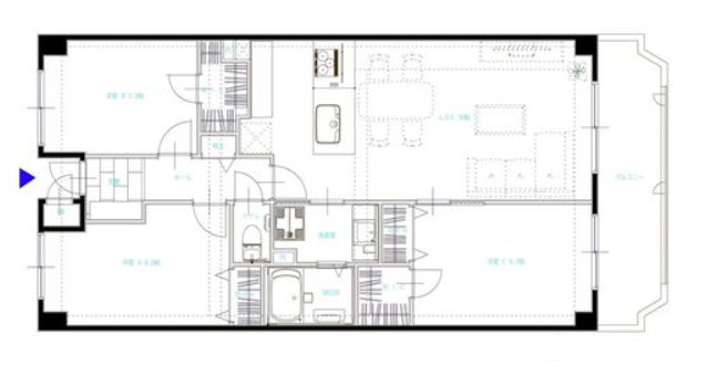
| 価格 | 2,980万円 | 間取り | 3LDK |
|---|---|---|---|
| 物件種別 | 中古マンション | ||
| 所在地 | 福岡県糟屋郡志免町別府北2丁目 | ||
| アクセス |
|
||
| 専有面積 | 壁芯 74.00㎡ | 所在階 | 11階建/5階部分 |
| 主要採光 | 南向 | バルコニー | 南向9.24㎡ |
| その他 | |||
| 権利 | 所有権 |
||
| 保証・評価 | |||
| リフォーム | 【水回り】2025年05月 キッチン・浴室・トイレ 【内装】2025年05月 全面 ・壁、天井 ・床 ・全室クロス ・建具 ・サッシ |
||
| 総戸数 | 85戸 | 面積 | |
| 築年月 | 1995年(平成7年)05月築 | 建物構造 | RC |
| 施工会社 | |||
| 管理会社 | 株式会社クローバー管理 | 管理方式 | 一部管理 日勤管理 |
| 駐車場 | 【駐車場】空有 料金:5,500円/月 【バイク置き場】あり 【駐輪場】あり |
||
| 都市計画 | 用途地域 | 準工業 | |
| 建ぺい/容積率 | 土地国土法 | 届出不要 | |
| 法令制限 | |||
| 小学区 | 志免西小学校 徒歩15分 (約1200m) | 中学区 | 志免中学校 徒歩38分 (約3000m) |
| 現況 | 空 | 引渡 | 即 |
| 管理費 | 5,900円/月 | 修繕積立金 | 10,140円/月 |
| その他費用 | 自治会費:200円/月 その他負担金:2000円 セキュリティ費/月 |
||
| 周辺環境 | 仲原病院 徒歩4分 (約270m) セブンイレブン志免別府店 徒歩5分 (約390m) イオン福岡東ショッピングセンター 徒歩8分 (約600m) とみよ保育園KASUYA 徒歩8分 (約620m) ザ・ビッグ 福岡空港東店 徒歩8分 (約630m) スーパービバホーム 福岡東店 徒歩10分 (約750m) 亀山郵便局 徒歩11分 (約860m) 志免西小学校 徒歩15分 (約1200m) 志免町立志免中学校 徒歩38分 (約3000m) |
||
| 備考 | |||
| 物件番号 | 4280578 | 取引態様 | 媒介 |
取扱店舗情報
ハウスドゥ 福岡流通センター 有限会社セゾン 店舗詳細ページへ
| 電話番号 | 092-260-7722 |
|---|---|
| 所在地 | 〒813-0034 福岡県福岡市東区多の津4丁目9-1 103 |
| 営業時間 | 9:00~19:00 |
| 定休日 | 年末年始、GW、お盆休み |
| 宅建免許番号 | 福岡県知事(1)第20006号 |
| アクセス | 店舗への地図はこちら |

来店ご予約
福岡県糟屋郡志免町で価格が似ている物件はこちら
- 福岡県
マイページ物件数 - 8,924件
最近見た物件
-
-

-
- 中古一戸建て
- 1億2,000万円
-
吹田市古江台6丁目
-
大阪モノレール山田
-
-
-

-
- 中古マンション
- 8,990万円
-
世田谷区三軒茶屋2丁目
-
東急田園都市線三軒茶屋
-
-
-

-
- 中古マンション
- 1,198万円
-
名古屋市港区港陽3丁目
-
名古屋市名港線築地口
-
福岡県中古マンション新着物件
-
-

-
- 中古マンション
- 600万円
-
北九州市小倉北区東篠崎1丁目
-
北九州高速鉄道片野駅
-
-
-

-
- 中古マンション
- 2,199万円
-
福岡市東区原田1丁目
-
JR鹿児島本線箱崎駅
-
-
-

-
- 中古マンション
- 1,150万円
-
福岡市南区多賀1丁目
-
西鉄天神大牟田線高宮駅
-
-
-

-
- 中古マンション
- 2,290万円
-
久留米市諏訪野町
-
西鉄天神大牟田線西鉄久留米駅
-
-
-

-
- 中古マンション
- 2,590万円
-
久留米市諏訪野町
-
西鉄天神大牟田線西鉄久留米駅
-
-
-

-
- 中古マンション
- 2,380万円
-
福岡市博多区元町2丁目
-
JR鹿児島本線南福岡駅
-
-
-

-
- 中古マンション
- 2,390万円
-
福岡市博多区元町2丁目
-
JR鹿児島本線南福岡駅
-
- お近くの店舗を探す
-
おすすめ物件
-
-

-
- 中古マンション
- 1,898万円
-
北九州市小倉南区葛原1丁目
-
JR日豊本線安部山公園
-
-
-

-
- 中古マンション
- 3,690万円
-
筑紫野市湯町2丁目
-
JR鹿児島本線二日市
-
-
-

-
- 中古マンション
- 2,180万円
-
福岡市南区横手南町
-
西鉄天神大牟田線井尻
-
-
-

-
- 中古マンション
- 2,320万円
-
福岡市南区野多目3丁目
-
西鉄天神大牟田線大橋
-
-
-

-
- 中古マンション
- 2,199万円
-
大野城市東大利2丁目
-
西鉄天神大牟田線下大利
-
-
-

-
- 中古マンション
- 1,890万円
-
福岡市東区和白丘2丁目
-
JR香椎線和白
-
-
-

-
- 中古マンション
- 2,398万円
-
北九州市小倉北区三萩野2丁目
-
北九州高速鉄道香春口三萩野
-
-
-

-
- 中古マンション
- 1,890万円
-
福津市中央6丁目
-
JR鹿児島本線福間
-
-
-

-
- 中古マンション
- 1,790万円
-
福岡市東区和白東1丁目
-
JR香椎線和白
-
-
-

-
- 中古マンション
- 1,990万円
-
久留米市原古賀町
-
西鉄天神大牟田線花畑
-


















