エンゼルハイム花月 さいたま市緑区大字中尾の中古マンション
掲載情報更新日:2025年10月23日 次回更新予定日:2025年11月06日
- 2,480万円
-
- 借入ご希望金額
万円 - 借入期間
年 - 借入金利
% - 月々のお支払い金額
円
- 借入ご希望金額
※ 月々のお支払例は目安の試算となりますので、実際の金額とは異なる場合がございます。詳しくは店舗までお問合わせください。
- さいたま市緑区大字中尾
-
JR京浜東北・根岸線『浦和』 バス乗車10分 花月 停 徒歩3分 (約240m)
さいたま市緑区大字中尾マンション | 物件情報
近隣買い物施設充実・内装リフォーム済・南西向き採光良好・全居室6帖以上
~只今キャンペーン中~ご成約頂いたお客様にもれなく1万円分のクオカードを進呈中~
・JR京浜東北線「浦和」駅バス10分「花月」停歩3分の立地
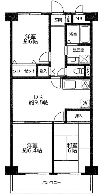
・専有面積63.00平米、バルコニー面積6.72平米の3LDKの間取り
・内装リノベーション済
・スーパー・病院が近く生活しやすい環境
・南西向きにつき陽当たり良好
・全居室6帖以上で使いやすい間取り
・和室も洋室も好きな方におすすめ
~お気軽にお問い合わせ下さい~
物件の設備
- 公営水道
- プロパンガス
- コンロ三口
- システムキッチン
- バス
- トイレ
- 室内洗濯機置場
- 洗髪洗面化粧台
- 洗面所独立
- 和室
- 全居室6畳以上
- フローリング
- クローゼット
- 収納スペース
- 押入
- シューズボックス
- バルコニー
- 2WAYバルコニー
物件の特徴
- 管理人巡回
- 南向
- スーパーが近い
- 陽当り良好
物件詳細情報
| 価格 | 2,480万円 | 間取り | 3LDK |
|---|---|---|---|
| 物件種別 | 中古マンション | ||
| 所在地 | 埼玉県さいたま市緑区大字中尾 | ||
| アクセス |
|
||
| 専有面積 | 壁芯 63.00㎡ | 所在階 | 5階建/3階部分 |
| 主要採光 | 南西向 | バルコニー | 南西向6.72㎡ |
| その他 | |||
| 権利 | 所有権 |
||
| 保証・評価 | |||
| リフォーム | |||
| 総戸数 | 29戸 | 面積 | |
| 築年月 | 1989年(平成1年)04月築 | 建物構造 | RC |
| 施工会社 | |||
| 管理会社 | 管理方式 | 全部委託 巡回管理 | |
| 駐車場 | |||
| 都市計画 | 用途地域 | 2種中高 | |
| 建ぺい/容積率 | 土地国土法 | ||
| 法令制限 | |||
| 小学区 | 中学区 | ||
| 現況 | 空 | 引渡 | 相談 |
| 管理費 | 13,230円/月 | 修繕積立金 | 17,330円/月 |
| その他費用 | |||
| 周辺環境 | さいたま市立中尾小学校 徒歩13分 (約990m) さいたま市立東浦和中学校 徒歩13分 (約1020m) 原山幼稚園 徒歩7分 (約510m) 保育園大きなぞうさん浦和中尾 徒歩8分 (約570m) セブンイレブン 浦和原山3丁目店 徒歩6分 (約450m) 業務スーパー 浦和花月店 徒歩2分 (約140m) ロピア浦和クイズゲート店 徒歩7分 (約510m) ドラッグセイムス 原山店 徒歩5分 (約370m) 浦和中尾郵便局 徒歩10分 (約760m) 医療法人博仁会共済病院 徒歩2分 (約160m) |
||
| 備考 | |||
| 物件番号 | 4288578 | 取引態様 | 媒介 |
取扱店舗情報
ハウスドゥ 上福岡 GLOBAL HOLDINGS株式会社 店舗詳細ページへ
| 電話番号 | 049-264-1010 |
|---|---|
| 所在地 | 〒356-0006 埼玉県ふじみ野市霞ケ丘1丁目2番27 ココネ上福岡1F |
| 営業時間 | 9:00~19:00 |
| 定休日 | 水曜日、年末年始 |
| 宅建免許番号 | 埼玉県知事(3)第22701号 |
| アクセス | 店舗への地図はこちら |

来店ご予約
埼玉県さいたま市緑区で価格が似ている物件はこちら
- 埼玉県
マイページ物件数 - 3,576件
埼玉県中古マンション新着物件
- お近くの店舗を探す
-
おすすめ物件
-
-

-
- 中古マンション
- 980万円
-
北本市朝日2丁目
-
JR高崎線北本
-
-
-

-
- 中古マンション
- 2,980万円
-
越谷市宮本町1丁目
-
東武伊勢崎・大師線越谷
-
-
-

-
- 中古マンション
- 2,890万円
-
さいたま市北区櫛引町2丁目
-
埼玉新都市交通鉄道博物館(大成)
-
-
-

-
- 中古マンション
- 510万円
-
越谷市赤山町1丁目
-
東武伊勢崎・大師線越谷
-
-
-

-
- 中古マンション
- 2,390万円
-
越谷市千間台西5丁目
-
東武伊勢崎・大師線せんげん台
-
-
-

-
- 中古マンション
- 5,480万円
-
上尾市柏座3丁目
-
JR高崎線上尾
-
-
-

-
- 中古マンション
- 2,390万円
-
越谷市蒲生寿町
-
東武伊勢崎・大師線蒲生
-
-
-

-
- 中古マンション
- 3,190万円
-
さいたま市北区宮原町2丁目
-
埼玉新都市交通東宮原
-
-
-

-
- 中古マンション
- 4,290万円
-
草加市金明町
-
東武伊勢崎・大師線新田
-
-
-

-
- 中古マンション
- 3,150万円
-
吉川市大字保
-
JR武蔵野線吉川
-











担当エージェント:林丞士
弊社はより多くの方が購入し易いリーズナブルな価格の中古物件を取り揃えております。お客様一人一人のニーズに合った物件探しをモットーに全力でサポート致します。是非お気軽にご相談下さい。