鶴見緑地コーポ 13階
掲載情報更新日:2026年01月09日 次回更新予定日:2026年01月23日
- 2,980万円
-
- 借入ご希望金額
万円 - 借入期間
年 - 借入金利
% - 月々のお支払い金額
円
- 借入ご希望金額
※ 月々のお支払例は目安の試算となりますので、実際の金額とは異なる場合がございます。詳しくは店舗までお問合わせください。
- 大阪市鶴見区横堤5丁目
-
大阪市長堀鶴見緑地線『横堤』 徒歩3分 (約240m)
大阪市長堀鶴見緑地線『鶴見緑地』 徒歩13分 (約1000m)
大阪市長堀鶴見緑地線『今福鶴見』 徒歩19分 (約1490m)
鶴見緑地コーポ 13階マンション | 物件情報
2024年7月室内フルリノベーション済 横堤駅徒歩3分! 即内見可!
☆月々8.1万円~
☆2024年7月室内フルリノベ後未入居
☆最寄駅から京橋駅まで7分
☆陽当たり良好!
☆駐車場あり※空き状況要確認
☆近隣に学校、幼稚園、保育園、公園あり
☆複数スーパーあり
【内覧会開催中】
本日ご案内可能な場合もございます。
複数件併せてご内見も可能♪
他の掲載物件もまとめてご内見頂けます。気になる物件をお教え下さい。
☆0120ー684-571
お気軽にお電話ください♪
☆立地のポイント
【横堤駅】徒歩約3分
物件の設備
- フローリング張替
物件の特徴
- 管理人日勤
- 内装リフォーム済
- 即入居可
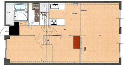
物件詳細情報
| 価格 | 2,980万円 | 間取り | 2LDK |
|---|---|---|---|
| 物件種別 | 中古マンション | ||
| 所在地 | 大阪府大阪市鶴見区横堤5丁目 | ||
| アクセス |
|
||
| 専有面積 | 壁芯 65.55㎡ | 所在階 | 14階建/13階部分 |
| 主要採光 | バルコニー | ||
| その他 | |||
| 権利 | 所有権 |
||
| 保証・評価 | |||
| リフォーム | 【水回り】2024年07月 キッチン・浴室 2024年7月室内フルリノベーション 【内装】2024年07月 壁、天井 ・床 ・全室クロス 2024年7月室内フルリノベーション |
||
| 総戸数 | 268戸 | 面積 | |
| 築年月 | 1981年(昭和56年)02月築 | 建物構造 | SRC |
| 施工会社 | |||
| 管理会社 | 互光建物管理 | 管理方式 | 全部委託 日勤管理 |
| 駐車場 | 【駐車場】空有 料金:13,000円/月 |
||
| 都市計画 | 市街化区域 |
用途地域 | 準工業(一部2種住居 含む) |
| 建ぺい/容積率 | 60%(一部80% 含む) / 200%(一部300% 含む) | 土地国土法 | |
| 法令制限 | |||
| 小学区 | 横堤小学校 徒歩10分 (約800m) | 中学区 | 横堤中学校 徒歩10分 (約750m) |
| 現況 | 空 | 引渡 | 即 |
| 管理費 | 7,000円/月 | 修繕積立金 | 7,000円/月 |
| その他費用 | |||
| 備考 | |||
| 物件番号 | 4291419 | 取引態様 | 媒介 |
取扱店舗情報
| 電話番号 | 050-5805-9447 |
|---|---|
| 所在地 | 〒536-0006 大阪府大阪市城東区野江4丁目10-13 クリエイト野江内代1F |
| 営業時間 | 10:00~19:00 |
| 定休日 | なし |
| 宅建免許番号 | 国土交通大臣(1)第10706号 |
| アクセス | 店舗への地図はこちら |

来店ご予約
大阪府大阪市鶴見区で価格が似ている物件はこちら
- 大阪府
マイページ物件数 - 16,650件
大阪府中古マンション新着物件
-
-

-
- 中古マンション
- 2,698万円
-
大阪市東淀川区小松3丁目
-
阪急電鉄京都線上新庄駅
-
-
-

-
- 中古マンション
- 3,530万円
-
豊中市東寺内町
-
北大阪急行南北線緑地公園駅
-
-
-

-
- 中古マンション
- 3,780万円
-
大阪市住吉区南住吉2丁目
-
大阪市御堂筋線長居駅
-
-
-

-
- 中古マンション
- 2,198万円
-
貝塚市海塚1丁目
-
南海電鉄本線貝塚駅
-
-
-

-
- 中古マンション
- 2,050万円
-
豊中市城山町1丁目
-
阪急電鉄宝塚線曽根駅
-
-
-

-
- 中古マンション
- 3,190万円
-
八尾市東本町3丁目
-
近鉄大阪線近鉄八尾駅
-
-
-

-
- 中古マンション
- 1,980万円
-
池田市建石町
-
阪急電鉄宝塚線池田駅
-
- お近くの店舗を探す
-
おすすめ物件
-
-

-
- 中古マンション
- 2,890万円
-
高槻市古曽部町2丁目
-
JR東海道線高槻
-
-
-

-
- 中古マンション
- 5,280万円
-
茨木市庄2丁目
-
JR東海道線JR総持寺
-
-
-

-
- 中古マンション
- 3,080万円
-
大阪市淀川区加島3丁目
-
JR東西線加島
-
-
-

-
- 中古マンション
- 5,198万円
-
吹田市芳野町
-
大阪市御堂筋線江坂
-
-
-

-
- 中古マンション
- 1,890万円
-
大阪市住之江区新北島5丁目
-
大阪市四つ橋線住之江公園
-
-
-

-
- 中古マンション
- 4,280万円
-
大阪市港区南市岡3丁目
-
JR大阪環状線弁天町
-
-
-

-
- 中古マンション
- 1,490万円
-
茨木市白川3丁目
-
阪急電鉄京都線茨木市
-
-
-

-
- 中古マンション
- 1,480万円
-
泉大津市助松町3丁目
-
南海電鉄本線松ノ浜
-
-
-

-
- 中古マンション
- 1,380万円
-
大阪市淀川区新高1丁目
-
阪急電鉄宝塚線三国
-
-
-

-
- 中古マンション
- 2,190万円
-
八尾市永畑町3丁目
-
JR関西本線八尾
-







担当エージェント:尾関 親代
京橋まで7分の好立地!
落ち着いた住環境でファミリー層にも単身者にも◎♪
住宅ローン相談会開催中です!
ぜひお気軽にお問い合わせください!