モナーク等々力 世田谷区等々力8丁目の中古マンション
掲載情報更新日:2025年10月30日 次回更新予定日:2025年11月13日
- 8,490万円
-
- 借入ご希望金額
万円 - 借入期間
年 - 借入金利
% - 月々のお支払い金額
円
- 借入ご希望金額
※ 月々のお支払例は目安の試算となりますので、実際の金額とは異なる場合がございます。詳しくは店舗までお問合わせください。
- 世田谷区等々力8丁目
-
東急大井町線『等々力』 徒歩14分 (約1120m)
東急田園都市線『桜新町』 徒歩23分 (約1840m)
世田谷区等々力8丁目マンション | 物件情報
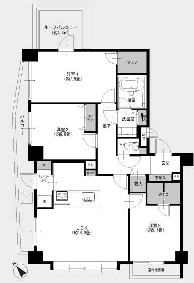
3方角部屋で採光良好◎ワイドバルコニー×ルーフバルコニー付き
◆ウォークインクローゼット2箇所有り
◆ランドリールームからそのままバルコニーへ行けます
物件の設備
- 公営水道
- 公共下水
- 都市ガス
- 食器洗浄乾燥機
- カウンターキッチン
- システムキッチン
- 追焚機能
- 浴室乾燥機
- 温水洗浄便座
- 室内洗濯機置場
- ダウンライト
- 人感照明センサー
- オートロック
- モニタ付オートロック
- 2面採光
- クローゼット
- ウォークインクローゼット
- ウォークインクローゼット2箇所
- シューズボックス
- バルコニー
- 2面バルコニー
- ルーフバルコニー
- 宅配BOX
物件の特徴
- 管理人日勤
- 角部屋
- 南西角部屋
- 3方角住戸
物件詳細情報
| 価格 | 8,490万円 | 間取り | 3LDK |
|---|---|---|---|
| 物件種別 | 中古マンション | ||
| 所在地 | 東京都世田谷区等々力8丁目 | ||
| アクセス |
|
||
| 専有面積 | 79.35㎡ | 所在階 | 7階建/5階部分 |
| 主要採光 | 南西向 | バルコニー | 南西向8.48㎡ |
| その他 | 4.40㎡ | ||
| 権利 | |||
| 保証・評価 | |||
| リフォーム | |||
| 総戸数 | 面積 | ||
| 築年月 | 1999年(平成11年)02月築 | 建物構造 | RC |
| 施工会社 | 株式会社田中建設 | ||
| 管理会社 | 日本ハウズイング株式会社 | 管理方式 | 全部委託 日勤管理 |
| 駐車場 | |||
| 都市計画 | 用途地域 | ||
| 建ぺい/容積率 | 土地国土法 | ||
| 法令制限 | |||
| 小学区 | 中学区 | ||
| 現況 | 引渡 | 相談 | |
| 管理費 | 19,240円/月 | 修繕積立金 | 14,750円/月 |
| その他費用 | |||
| 備考 | |||
| 物件番号 | 4295872 | 取引態様 | 媒介 |
取扱店舗情報
ハウスドゥ 三軒茶屋 株式会社エルピープロ 店舗詳細ページへ
| 電話番号 | 03-6450-7233 |
|---|---|
| 所在地 | 〒154-0024 東京都世田谷区三軒茶屋2丁目34-1 1F |
| 営業時間 | 10:00~18:00 |
| 定休日 | 水曜日 |
| 宅建免許番号 | 東京都知事(3)第96562号 |
| アクセス | 店舗への地図はこちら |

来店ご予約
東京都世田谷区で価格が似ている物件はこちら
- 東京都
マイページ物件数 - 5,419件
最近見た物件
東京都中古マンション新着物件
-
-

-
- 中古マンション
- 4,299万円
-
世田谷区南烏山3丁目
-
京王線芦花公園駅
-
-
-

-
- 中古マンション
- 1億2,990万円
-
世田谷区羽根木2丁目
-
京王井の頭線東松原駅
-
-
-

-
- 中古マンション
- 8,699万円
-
調布市仙川町2丁目
-
京王線仙川駅
-
-
-

-
- 中古マンション
- 9,199万円
-
狛江市和泉本町1丁目
-
小田急小田原線狛江駅
-
-
-

-
- 中古マンション
- 1億2,900万円
-
世田谷区駒沢5丁目
-
東急田園都市線駒沢大学駅
-
-
-

-
- 中古マンション
- 3,480万円
-
世田谷区上用賀5丁目
-
東急田園都市線用賀駅
-
-
-

-
- 中古マンション
- 4,790万円
-
葛飾区青戸4丁目
-
京成本線お花茶屋駅
-
- お近くの店舗を探す
-
おすすめ物件
-
-

-
- 中古マンション
- 1億3,990万円
-
台東区東上野5丁目
-
JR山手線上野
-
-
-

-
- 中古マンション
- 3,130万円
-
青梅市末広町2丁目
-
JR青梅線小作
-
-
-

-
- 中古マンション
- 4,280万円
-
葛飾区東金町6丁目
-
JR千代田・常磐緩行線金町
-
-
-

-
- 中古マンション
- 3,500万円
-
板橋区常盤台3丁目
-
東武東上線ときわ台
-
-
-

-
- 中古マンション
- 3,299万円
-
足立区梅田8丁目
-
東武伊勢崎・大師線梅島
-
-
-

-
- 中古マンション
- 6,300万円
-
狛江市岩戸南1丁目
-
小田急小田原線狛江
-
-
-

-
- 中古マンション
- 4,880万円
-
葛飾区堀切4丁目
-
京成本線堀切菖蒲園
-
-
-

-
- 中古マンション
- 7,990万円
-
大田区大森北5丁目
-
JR京浜東北・根岸線大森
-
-
-

-
- 中古マンション
- 4,290万円
-
調布市多摩川1丁目
-
京王相模原線京王多摩川
-
-
-

-
- 中古マンション
- 1億3,900万円
-
江東区東雲1丁目
-
東京メトロ有楽町線辰巳
-






トランクルーム/1住戸1室確保(承継可能)(月額1,000円)
※承継を希望しないことも可能です。承継を希望しない住戸が出た場合は申込み順により契約者決定します。