ライオンズスクエア用賀 世田谷区玉川台2丁目の中古マンション
掲載情報更新日:2025年12月27日 次回更新予定日:2026年01月10日
- 1億3,990万円
-
- 借入ご希望金額
万円 - 借入期間
年 - 借入金利
% - 月々のお支払い金額
円
- 借入ご希望金額
※ 月々のお支払例は目安の試算となりますので、実際の金額とは異なる場合がございます。詳しくは店舗までお問合わせください。
- 世田谷区玉川台2丁目
-
東急田園都市線『用賀』 徒歩8分 (約640m)
世田谷区玉川台2丁目マンション | 物件情報
田園都市線【用賀】 徒歩8分。ペット飼育可◎南東角部屋・4階部分
◆外部の騒音を低減するサッシを採用
◆広め2面バルコニー
◆充実の収納スペース
物件の設備
- 公営水道
- 公共下水
- 都市ガス
- システムキッチン
- 追焚機能
- 浴室乾燥機
- 温水洗浄便座
- 室内洗濯機置場
- オートロック
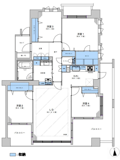
- LDK20畳以上
- 2面採光
- フローリング
- クローゼット
- クローゼット3箇所
- ウォークインクローゼット
- バルコニー
- 2面バルコニー
物件の特徴
- 管理人日勤
- 角部屋
- 南東角部屋
- ペット相談
物件詳細情報
| 価格 | 1億3,990万円 | 間取り | 4LDK |
|---|---|---|---|
| 物件種別 | 中古マンション | ||
| 所在地 | 東京都世田谷区玉川台2丁目 | ||
| アクセス |
|
||
| 専有面積 | 106.00㎡ | 所在階 | 12階建/4階部分 |
| 主要採光 | 南東向 | バルコニー | 南東向24.68㎡ |
| その他 | |||
| 権利 | |||
| 保証・評価 | |||
| リフォーム | |||
| 総戸数 | 面積 | ||
| 築年月 | 2014年(平成26年)01月築 | 建物構造 | SRC |
| 施工会社 | 東洋建設株式会社、株式会社藤木工務店 | ||
| 管理会社 | 株式会社大京アステージ | 管理方式 | 全部委託 日勤管理 |
| 駐車場 | |||
| 都市計画 | 用途地域 | ||
| 建ぺい/容積率 | 土地国土法 | ||
| 法令制限 | |||
| 小学区 | 中学区 | ||
| 現況 | 引渡 | 相談 | |
| 管理費 | 15,440円/月 | 修繕積立金 | 36,040円/月 |
| その他費用 | |||
| 周辺環境 | 用賀駅前郵便局 徒歩7分 (約530m) セブン-イレブン世田谷用賀4丁目店 徒歩7分 (約530m) FUJI用賀店 徒歩7分 (約530m) 用賀駅 徒歩9分 (約680m) ココカラファイン用賀駅前店 徒歩10分 (約770m) オーケー用賀駅前店 徒歩10分 (約790m) |
||
| 備考 | |||
| 物件番号 | 4297055 | 取引態様 | 媒介 |
取扱店舗情報
ハウスドゥ 三軒茶屋 株式会社エルピープロ 店舗詳細ページへ
| 電話番号 | 03-6450-7233 |
|---|---|
| 所在地 | 〒154-0024 東京都世田谷区三軒茶屋2丁目34-1 1F |
| 営業時間 | 10:00~18:00 |
| 定休日 | 水曜日 |
| 宅建免許番号 | 東京都知事(3)第96562号 |
| アクセス | 店舗への地図はこちら |

来店ご予約
東京都世田谷区で価格が似ている物件はこちら
- 東京都
マイページ物件数 - 4,849件
東京都中古マンション新着物件
-
-

-
- 中古マンション
- 7,998万円
-
八王子市子安町4丁目
-
JR中央本線八王子駅
-
-
-

-
- 中古マンション
- 2,990万円
-
府中市押立町4丁目
-
京王線武蔵野台駅
-
-
-

-
- 中古マンション
- 1,350万円
-
青梅市河辺町6丁目
-
JR青梅線河辺駅
-
-
-

-
- 中古マンション
- 3,190万円
-
日野市旭が丘3丁目
-
JR中央本線豊田駅
-
-
-

-
- 中古マンション
- 1,580万円
-
羽村市川崎1丁目
-
JR青梅線羽村駅
-
-
-

-
- 中古マンション
- 5,480万円
-
昭島市昭和町5丁目
-
JR青梅線昭島駅
-
-
-

-
- 中古マンション
- 5,380万円
-
江戸川区北葛西4丁目
-
東京メトロ東西線西葛西駅
-
- お近くの店舗を探す
-
おすすめ物件
-
-

-
- 中古マンション
- 1,980万円
-
葛飾区柴又6丁目
-
北総鉄道新柴又
-
-
-

-
- 中古マンション
- 6,698万円
-
江戸川区中葛西2丁目
-
東京メトロ東西線葛西
-
-
-

-
- 中古マンション
- 2,780万円
-
松戸市松戸
-
JR常磐線松戸
-
-
-

-
- 中古マンション
- 3,799万円
-
小平市大沼町6丁目
-
西武新宿線小平
-
-
-

-
- 中古マンション
- 2,690万円
-
足立区保木間1丁目
-
東武伊勢崎・大師線竹ノ塚
-
-
-

-
- 中古マンション
- 3,630万円
-
板橋区前野町4丁目
-
都営三田線志村坂上
-
-
-

-
- 中古マンション
- 5,280万円
-
調布市染地2丁目
-
京王線布田
-
-
-

-
- 中古マンション
- 4,480万円
-
台東区元浅草3丁目
-
都営大江戸線新御徒町
-
-
-

-
- 中古マンション
- 8,480万円
-
台東区下谷3丁目
-
東京メトロ日比谷線入谷
-
-
-

-
- 中古マンション
- 9,980万円
-
台東区北上野2丁目
-
東京メトロ日比谷線入谷
-




約21帖の広々LDK。眺望・陽当り・通風良好です。