マンションアクロス代々木 渋谷区代々木3丁目の中古マンション
掲載情報更新日:2026年02月02日 次回更新予定日:2026年02月16日
- 8,999万円
-
- 借入ご希望金額
万円 - 借入期間
年 - 借入金利
% - 月々のお支払い金額
円
- 借入ご希望金額
※ 月々のお支払例は目安の試算となりますので、実際の金額とは異なる場合がございます。詳しくは店舗までお問合わせください。
- 渋谷区代々木3丁目
-
小田急小田原線『参宮橋』 徒歩4分 (約320m)
小田急小田原線『南新宿』 徒歩9分 (約720m)
JR山手線『代々木』 徒歩11分 (約880m)
渋谷区代々木3丁目マンション | 物件情報
●小田急線「参宮橋」駅徒歩4分●新規リノベーション物件●
~~~POINT~~~
*「代々木公園」「明治神宮」が生活圏内
*人気の対面式システムキッチン
*大容量のウォークインクローゼット
*オートロック・宅配ボックス
■2025年8月末リノベーション完了予定
キッチン交換/浴室交換/洗面台交換/
トイレ交換/給湯器交換/フローリング張替/
クロス張替/給排水管交換(一部既存)/
建具交換/玄関収納 等
■その他仕様・設備
食洗機/浄水器/浴室換気乾燥機/
追焚き/TVモニター付きインターホン/
バルコニー/専用庭 等
物件の設備
- 公営水道
- 下水道
- 公共下水
- 都市ガス
- 浄水器
- 食器洗浄乾燥機
- カウンターキッチン
- システムキッチン
- 追焚機能
- 浴室乾燥機
- 温水洗浄便座
- オートロック
- モニタ付インターホン
- フローリング張替
- ウォークインクローゼット
- 全居室収納
- 宅配BOX
- エレベーター
物件の特徴
- 管理人日勤
- 内装リフォーム済
- 2沿線利用可
- 3沿線以上利用可
- ペット不可
物件詳細情報
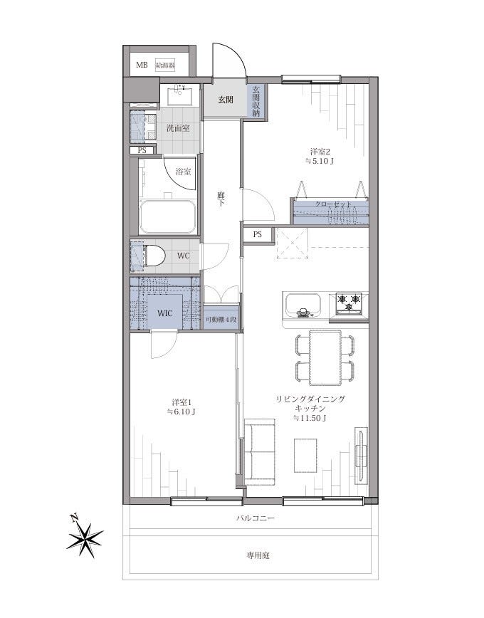
| 価格 | 8,999万円 | 間取り | 2LDK |
|---|---|---|---|
| 物件種別 | 中古マンション | ||
| 所在地 | 東京都渋谷区代々木3丁目 | ||
| アクセス |
|
||
| 専有面積 | 壁芯 55.40㎡ | 所在階 | 7階建/1階部分 |
| 主要採光 | 南西向 | バルコニー | |
| その他 | |||
| 権利 | 所有権 |
||
| 保証・評価 | |||
| リフォーム | 【水回り】2025年08月 キッチン・浴室・トイレ・洗面・給湯器・給排水管 【内装】2025年08月 全面 ・壁、天井 ・床 ・全室クロス ・建具 ・サッシ |
||
| 総戸数 | 41戸 | 面積 | |
| 築年月 | 1995年(平成7年)10月築 | 建物構造 | RC |
| 施工会社 | (株)熊谷組 | ||
| 管理会社 | 日本ハウズイング(株) | 管理方式 | 全部委託 日勤管理 |
| 駐車場 | |||
| 都市計画 | 用途地域 | ||
| 建ぺい/容積率 | 土地国土法 | ||
| 法令制限 | |||
| 小学区 | 中学区 | ||
| 現況 | 空 | 引渡 | 相談 |
| 管理費 | 12,910円/月 | 修繕積立金 | 18,610円/月 |
| その他費用 | |||
| 備考 | |||
| 物件番号 | 4303385 | 取引態様 | 媒介 |
取扱店舗情報
ハウスドゥ 新宿三丁目 株式会社レーヴホライズン 店舗詳細ページへ
| 電話番号 | 03-6384-2356 |
|---|---|
| 所在地 | 〒160-0022 東京都新宿区新宿2-15-22 Landwork新宿ビル5階 |
| 営業時間 | 9:00~18:00 |
| 定休日 | 火曜日、水曜日、GW、夏期、年末年始 |
| 宅建免許番号 | 東京都知事(2)第100808号 |
| アクセス | 店舗への地図はこちら |

来店ご予約
東京都渋谷区で価格が似ている物件はこちら
- 東京都
マイページ物件数 - 5,201件
東京都中古マンション新着物件
- お近くの店舗を探す
-
おすすめ物件
-
-

-
- 中古マンション
- 1,280万円
-
練馬区立野町
-
JR中央本線吉祥寺
-
-
-

-
- 中古マンション
- 2,890万円
-
足立区大谷田4丁目
-
東京メトロ千代田線北綾瀬
-
-
-

-
- 中古マンション
- 2,690万円
-
足立区保木間1丁目
-
東武伊勢崎・大師線竹ノ塚
-
-
-

-
- 中古マンション
- 1億4,800万円
-
世田谷区桜上水5丁目
-
京王線桜上水
-
-
-

-
- 中古マンション
- 8,990万円
-
台東区千束1丁目
-
つくばエクスプレス浅草
-
-
-

-
- 中古マンション
- 2,980万円
-
足立区中川4丁目
-
JR千代田・常磐緩行線亀有
-
-
-

-
- 中古マンション
- 3,080万円
-
足立区花畑5丁目
-
東武伊勢崎・大師線谷塚
-
-
-

-
- 中古マンション
- 7,799万円
-
大田区大森西5丁目
-
京急本線大森町
-
-
-

-
- 中古マンション
- 4,250万円
-
台東区元浅草3丁目
-
都営大江戸線新御徒町
-
-
-

-
- 中古マンション
- 8,480万円
-
台東区下谷3丁目
-
東京メトロ日比谷線入谷
-










