イトーピア東陽町マンション 江東区東陽2丁目の中古マンション
掲載情報更新日:2025年10月27日 次回更新予定日:2025年11月10日
- 5,680万円
-
- 借入ご希望金額
万円 - 借入期間
年 - 借入金利
% - 月々のお支払い金額
円
- 借入ご希望金額
※ 月々のお支払例は目安の試算となりますので、実際の金額とは異なる場合がございます。詳しくは店舗までお問合わせください。
- 江東区東陽2丁目
-
東京メトロ東西線『東陽町』 徒歩4分 (約320m)
江東区東陽2丁目マンション | 物件情報
物件の設備
- 都市ガス
- バルコニー
- エレベーター
- 駐輪場
- バイク置場
物件の特徴
- 管理人日勤
- ペット相談
- 事務所使用可
物件詳細情報
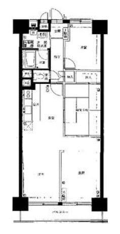
| 価格 | 5,680万円 | 間取り | 3LDK |
|---|---|---|---|
| 物件種別 | 中古マンション | ||
| 所在地 | 東京都江東区東陽2丁目 | ||
| アクセス |
|
||
| 専有面積 | 壁芯 70.00㎡ | 所在階 | 14階建/3階部分 |
| 主要採光 | バルコニー | 6.72㎡ | |
| その他 | |||
| 権利 | 所有権 |
||
| 保証・評価 | |||
| リフォーム | |||
| 総戸数 | 面積 | ||
| 築年月 | 1979年(昭和54年)07月築 | 建物構造 | RC |
| 施工会社 | 不二建設株式会社 | ||
| 管理会社 | 伊藤忠アーバンコミュニティ株式会社 | 管理方式 | 全部委託 日勤管理 |
| 駐車場 | 【駐車場】空無 【バイク置き場】あり 料金: 6000円/月 【駐輪場】あり 料金: 200円/月 |
||
| 都市計画 | 用途地域 | 商業(一部準工業 含む) | |
| 建ぺい/容積率 | 土地国土法 | ||
| 法令制限 | |||
| 小学区 | 南陽小学校 徒歩5分 (約391m) | 中学区 | 東陽中学校 徒歩4分 (約312m) |
| 現況 | 居住中 | 引渡 | 相談 |
| 管理費 | 8,200円/月 | 修繕積立金 | 7,380円/月 |
| その他費用 | 組合費:500円 |
||
| 備考 | |||
| 物件番号 | 4308958 | 取引態様 | 媒介 |
取扱店舗情報
| 電話番号 | 03-3699-6100 |
|---|---|
| 所在地 | 〒135-0013 東京都江東区千田15-7 |
| 営業時間 | 10:00~18:00 |
| 定休日 | 水曜日 |
| 宅建免許番号 | 東京都知事(6)第74879号 |
| アクセス | 店舗への地図はこちら |

来店ご予約
東京都江東区で価格が似ている物件はこちら
- 東京都
マイページ物件数 - 5,476件
最近見た物件
東京都中古マンション新着物件
- お近くの店舗を探す
-
おすすめ物件
-
-

-
- 中古マンション
- 7,990万円
-
大田区大森北5丁目
-
JR京浜東北・根岸線大森
-
-
-

-
- 中古マンション
- 2,480万円
-
葛飾区東金町1丁目
-
JR千代田・常磐緩行線金町
-
-
-

-
- 中古マンション
- 6,490万円
-
台東区蔵前4丁目
-
都営浅草線蔵前
-
-
-

-
- 中古マンション
- 4,199万円
-
葛飾区南水元1丁目
-
JR千代田・常磐緩行線金町
-
-
-

-
- 中古マンション
- 1,390万円
-
青梅市千ヶ瀬町1丁目
-
JR青梅線河辺
-
-
-

-
- 中古マンション
- 6,698万円
-
江戸川区中葛西2丁目
-
東京メトロ東西線葛西
-
-
-

-
- 中古マンション
- 3,680万円
-
千葉市中央区千葉港
-
千葉都市モノレール市役所前
-
-
-

-
- 中古マンション
- 1億1,490万円
-
台東区東上野5丁目
-
東京メトロ銀座線稲荷町
-
-
-

-
- 中古マンション
- 1億1,800万円
-
大田区下丸子2丁目
-
東急多摩川線下丸子
-
-
-

-
- 中古マンション
- 1,790万円
-
足立区東和5丁目
-
東京メトロ千代田線北綾瀬
-










