マリンハツ長崎 長崎市魚の町の中古マンション
掲載情報更新日:2025年12月15日 次回更新予定日:2025年12月29日
- 1,980万円
-
- 借入ご希望金額
万円 - 借入期間
年 - 借入金利
% - 月々のお支払い金額
円
- 借入ご希望金額
※ 月々のお支払例は目安の試算となりますので、実際の金額とは異なる場合がございます。詳しくは店舗までお問合わせください。
- 長崎市魚の町
-
長崎電軌桜町支線『市役所』 徒歩1分 (約80m)
長崎電軌螢茶屋支線『めがね橋』 徒歩4分 (約320m)
JR長崎本線『長崎』 徒歩18分 (約1440m)
長崎市魚の町マンション | 物件情報
物件の設備
- 都市ガス
- 給湯
- 食器洗浄乾燥機
- IHクッキングヒータ
- システムキッチン
- 温水洗浄便座
- 洗髪洗面化粧台
- 出窓
- 全居室収納
- バルコニー
- エレベーター
物件の特徴
- 管理人巡回
- 即入居可
物件詳細情報
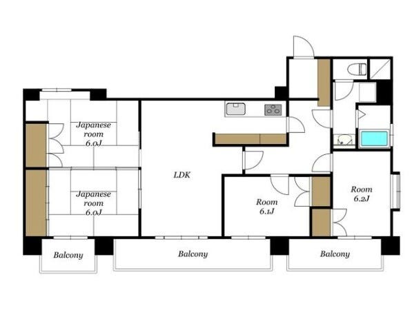
| 価格 | 1,980万円 | 間取り | 4LDK |
|---|---|---|---|
| 物件種別 | 中古マンション | ||
| 所在地 | 長崎県長崎市魚の町 | ||
| アクセス |
|
||
| 専有面積 | 壁芯 98.43㎡ | 所在階 | 7階建/4階部分 |
| 主要採光 | 北東向 | バルコニー | 15.11㎡ |
| その他 | |||
| 権利 | 所有権 |
||
| 保証・評価 | |||
| リフォーム | |||
| 総戸数 | 面積 | ||
| 築年月 | 1981年(昭和56年)05月築 | 建物構造 | SRC |
| 施工会社 | |||
| 管理会社 | 総合システム管理株式会社 | 管理方式 | 一部管理 巡回管理 |
| 駐車場 | 【駐車場】空無 |
||
| 都市計画 | 用途地域 | 商業 | |
| 建ぺい/容積率 | 土地国土法 | ||
| 法令制限 | |||
| 小学区 | 諏訪小学校 徒歩5分 (約395m) | 中学区 | 桜馬場中学校 徒歩17分 (約1318m) |
| 現況 | 空 | 引渡 | 即 |
| 管理費 | 13,500円/月 | 修繕積立金 | 4,000円/月 |
| その他費用 | 特別積立金:5,000円/月 |
||
| 備考 | ・市役所目の前の好立地マンション☆ ・室内水廻り(バス以外のキッチン・トイレ・洗面台)等の設備リフォーム歴あり☆ |
||
| 物件番号 | 4312896 | 取引態様 | 媒介 |
取扱店舗情報
ハウスドゥ 長崎西 アイ・ステップ株式会社 店舗詳細ページへ
| 電話番号 | 095-862-7030 |
|---|---|
| 所在地 | 〒852-8015 長崎県長崎市春木町9-12 田中ビル1F |
| 営業時間 | 9:00~18:00 |
| 定休日 | 水曜日・年末年始 |
| 宅建免許番号 | 長崎県知事(3)第3801号 |
| アクセス | 店舗への地図はこちら |

来店ご予約
- 長崎県
マイページ物件数 - 535件
長崎県中古マンション新着物件
- お近くの店舗を探す
-
































