中古マンション ライオンズマンション六実 松戸市六実5丁目の中古マンション
掲載情報更新日:2025年12月04日 次回更新予定日:2025年12月18日
- 1,680万円
-
- 借入ご希望金額
万円 - 借入期間
年 - 借入金利
% - 月々のお支払い金額
円
- 借入ご希望金額
※ 月々のお支払例は目安の試算となりますので、実際の金額とは異なる場合がございます。詳しくは店舗までお問合わせください。
- 松戸市六実5丁目
-
東武野田線『六実』 徒歩4分 (約320m)
松戸市六実5丁目マンション | 物件情報
「六実」駅徒歩約4分の好立地☆ 新規リノベーション物件で水回りも快適♪
◇コンビニ徒歩圏内♪
◇雨の日も便利な浴室乾燥機付き☆
◇使い勝手の良いL型対面システムキッチン♪
物件の設備
- 都市ガス
- 給湯
- コンロ三口
- グリル
- カウンターキッチン
- システムキッチン
- ユニットバス
- 追焚機能
- 浴室乾燥機
- 温水洗浄便座
- 室内洗濯機置場
- 洗髪洗面化粧台
- 洗面所独立
- エアコン3基
- 照明器具
- ダウンライト
- 人感照明センサー
- モニタ付インターホン
- 全室フローリング
- クローゼット
- ウォークインクローゼット
- バルコニー
物件の特徴
- 管理人日勤
- 内装リフォーム後渡
- 総合病院徒歩10分以内
- 緑豊かな住宅地
- 閑静な住宅街
- 周辺交通量少なめ
物件詳細情報
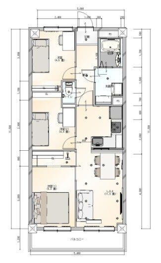
| 価格 | 1,680万円 | 間取り | 3LDK |
|---|---|---|---|
| 物件種別 | 中古マンション | ||
| 所在地 | 千葉県松戸市六実5丁目 | ||
| アクセス |
|
||
| 専有面積 | 62.10㎡ | 所在階 | 4階建/2階部分 |
| 主要採光 | バルコニー | 6.40㎡ | |
| その他 | |||
| 権利 | 所有権 |
||
| 保証・評価 | |||
| リフォーム | |||
| 総戸数 | 面積 | ||
| 築年月 | 1988年(昭和63年)06月築 | 建物構造 | RC |
| 施工会社 | |||
| 管理会社 | 管理方式 | 全部委託 日勤管理 | |
| 駐車場 | 【駐車場】空無 |
||
| 都市計画 | 用途地域 | 1種住居 | |
| 建ぺい/容積率 | 土地国土法 | ||
| 法令制限 | |||
| 小学区 | 六実第二小学校 徒歩12分 (約900m) | 中学区 | 六実中学校 徒歩19分 (約1500m) |
| 現況 | 空 | 引渡 | 期日指定:2025年09月 |
| 管理費 | 11,800円/月 | 修繕積立金 | 9,500円/月 |
| その他費用 | |||
| 備考 | |||
| 物件番号 | 4320155 | 取引態様 | 媒介 |
取扱店舗情報
| 電話番号 | 04-7191-7960 |
|---|---|
| 所在地 | 〒277-0941 千葉県柏市高柳1139-1 |
| 営業時間 | 9:00~18:00 |
| 定休日 | 水曜日、年末年始 |
| 宅建免許番号 | 千葉県知事(1)第17929号 |
| アクセス | 店舗への地図はこちら |

来店ご予約
千葉県松戸市で価格が似ている物件はこちら
- 千葉県
マイページ物件数 - 2,842件
最近見た物件
-
-

-
- 中古一戸建て
- 1,299万円
-
下関市長府新四王司町
-
JR山陽本線長府
-
-
-

-
- 中古一戸建て
- 1,590万円
-
鹿児島市坂之上7丁目
-
JR指宿枕崎線坂之上
-
-
-

-
- 新築一戸建て
- 3,350万円
-
豊橋市牟呂町字北汐田
-
豊橋鉄道渥美線小池
-
千葉県中古マンション新着物件
- お近くの店舗を探す
-
おすすめ物件
-
-

-
- 中古マンション
- 1,500万円
-
松戸市南花島4丁目
-
京成電鉄松戸線上本郷
-
-
-

-
- 中古マンション
- 1,380万円
-
印旛郡酒々井町東酒々井6丁目
-
JR成田線酒々井
-
-
-

-
- 中古マンション
- 2,780万円
-
松戸市久保平賀
-
JR千代田・常磐緩行線北小金
-
-
-

-
- 中古マンション
- 2,690万円
-
流山市加3丁目
-
つくばエクスプレス流山セントラルパーク
-
-
-

-
- 中古マンション
- 1,380万円
-
松戸市小金きよしケ丘3丁目
-
JR千代田・常磐緩行線北小金
-
-
-

-
- 中古マンション
- 950万円
-
千葉市緑区土気町
-
JR外房線土気
-
-
-

-
- 中古マンション
- 2,398万円
-
松戸市新松戸7丁目
-
JR千代田・常磐緩行線新松戸
-
-
-

-
- 中古マンション
- 880万円
-
松戸市松戸
-
JR常磐線松戸
-
-
-

-
- 中古マンション
- 1,930万円
-
船橋市習志野5丁目
-
京成本線実籾
-
-
-

-
- 中古マンション
- 1,640万円
-
千葉市中央区都町6丁目
-
JR総武・中央緩行線千葉
-



































