小金井ハイツ 708号室
掲載情報更新日:2026年01月23日 次回更新予定日:2026年02月06日
- 2,698万円
-
- 借入ご希望金額
万円 - 借入期間
年 - 借入金利
% - 月々のお支払い金額
円
- 借入ご希望金額
※ 月々のお支払例は目安の試算となりますので、実際の金額とは異なる場合がございます。詳しくは店舗までお問合わせください。
- 小金井市本町4丁目
-
JR中央本線『武蔵小金井』 徒歩8分 (約640m)
小金井ハイツ 708号室マンション | 物件情報
【仲介手数料50キャンペーン対象物件】仲介手数料が半額です。賢くお家を買うならハウスドゥ立川北で
・ローンシュミレーションからライフプランの設計まで無料で作成いたします。お家の見るチェックポイントや住宅ローンの事などなんでもお尋ねください。ご納得いただける物件が見つかるまでご提案させていただきます。ぜひ一度お越しください。お待ちしております。
物件の設備
- 公営水道
- 公共下水
- 都市ガス
- 浄水器
- コンロ二口
- グリル
- システムキッチン
- ユニットバス
- 追焚機能
- 浴室乾燥機
- シャワー
- トイレ
- 温水洗浄便座
- 室内洗濯機置場
- 洗面所独立
- 照明器具
- ダウンライト
- モニタ付インターホン
- 火災警報器/報知機
- 全室フローリング
- フローリング張替
- クローゼット
- 全居室収納
- シューズボックス
- バルコニー
- エレベーター
- 駐輪場
- バイク置場
物件の特徴
- 管理人巡回
- 内装リフォーム済
- 駅まで平坦
- 小学校徒歩10分以内
- スーパーが近い
- 市街地が近い
- 都市近郊
- 通風良好
- 陽当り良好
- 平坦地
- 即入居可
- ペット相談
物件詳細情報
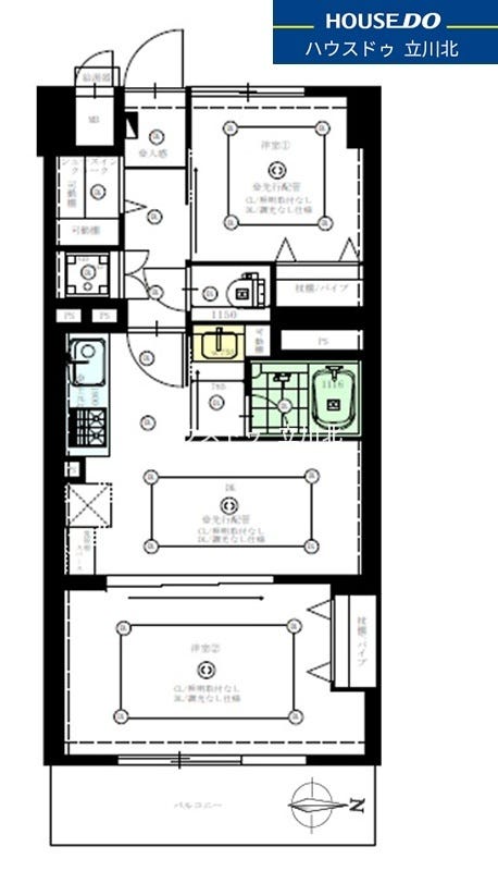
| 価格 | 2,698万円 | 間取り | 2LDK |
|---|---|---|---|
| 物件種別 | 中古マンション | ||
| 所在地 | 東京都小金井市本町4丁目1-1 | ||
| アクセス |
|
||
| 専有面積 | 壁芯 42.50㎡ | 所在階 | 7階建/7階部分 |
| 主要採光 | 東向 | バルコニー | 東向2.00㎡ |
| その他 | |||
| 権利 | 所有権 |
||
| 保証・評価 | |||
| リフォーム | 【水回り】2025年08月 キッチン・浴室・トイレ・洗面・給湯器 交換 【内装】2025年08月 壁、天井 ・床 ・建具 貼替、交換(モニター付きインターホン、スイッチパネル、火災警報器、カーテンレール)、ダウンライト新設 |
||
| 総戸数 | 56戸 | 面積 | |
| 築年月 | 1970年(昭和45年)11月築 | 建物構造 | RC |
| 施工会社 | |||
| 管理会社 | 日本ハウズイング株式会社 | 管理方式 | 全部委託 巡回管理 |
| 駐車場 | 【駐車場】空無 【バイク置き場】空有 料金:500円/月 【駐輪場】空有 料金:200円/月 |
||
| 都市計画 | 市街化区域 |
用途地域 | 1種低層(一部近隣商業 含む) |
| 建ぺい/容積率 | 50%(一部80% 含む) / 80%(一部300% 含む) | 土地国土法 | |
| 法令制限 | 高度地区・準防火地域・法22条区域 | ||
| 小学区 | 小金井第二小学校 徒歩10分 (約740m) | 中学区 | 小金井第一中学校 徒歩12分 (約940m) |
| 現況 | 空 | 引渡 | 即 |
| 管理費 | 5,000円/月 | 修繕積立金 | 8,700円/月 |
| その他費用 | |||
| 備考 | いなげや・・・徒歩4分/イトーヨーカドー・・・徒歩9分/サンドラッグ・・・徒歩7分/セブンイレブン・・・徒歩2分 ヤマダデンキ・・・徒歩7分/武蔵小金井クリニック・・・徒歩6分/本町さくら公園・・・徒歩6分/しんあい保育園・・・徒歩4分 |
||
| 物件番号 | 4324728 | 取引態様 | 媒介 |
取扱店舗情報
ハウスドゥ 立川北 株式会社シティリノベーション 店舗詳細ページへ
| 電話番号 | 042-537-9361 |
|---|---|
| 所在地 | 〒190-0004 東京都立川市柏町3-19-14 フレンテ1F |
| 営業時間 | 9:00~18:00 |
| 定休日 | GW、夏季、冬季 |
| 宅建免許番号 | 東京都知事(2)第100954号 |
| アクセス | 店舗への地図はこちら |

来店ご予約
- 東京都
マイページ物件数 - 5,262件
東京都中古マンション新着物件
- お近くの店舗を探す
-
おすすめ物件
-
-

-
- 中古マンション
- 1億990万円
-
台東区東上野5丁目
-
東京メトロ銀座線稲荷町
-
-
-

-
- 中古マンション
- 9,599万円
-
世田谷区上北沢5丁目
-
京王線八幡山
-
-
-

-
- 中古マンション
- 4,998万円
-
葛飾区金町1丁目
-
JR千代田・常磐緩行線金町
-
-
-

-
- 中古マンション
- 3,480万円
-
葛飾区白鳥2丁目
-
京成本線お花茶屋
-
-
-

-
- 中古マンション
- 6,798万円
-
西東京市谷戸町2丁目
-
西武池袋・豊島線ひばりケ丘
-
-
-

-
- 中古マンション
- 3,780万円
-
葛飾区亀有2丁目
-
JR千代田・常磐緩行線亀有
-
-
-

-
- 中古マンション
- 1億3,980万円
-
台東区浅草橋5丁目
-
JR総武・中央緩行線浅草橋
-
-
-

-
- 中古マンション
- 5,680万円
-
練馬区関町南2丁目
-
西武新宿線武蔵関
-
-
-

-
- 中古マンション
- 2,280万円
-
葛飾区南水元1丁目
-
JR千代田・常磐緩行線金町
-
-
-

-
- 中古マンション
- 3,090万円
-
葛飾区水元3丁目
-
JR千代田・常磐緩行線金町
-


































担当エージェント:板谷 和友樹
ハウスドゥ立川北のホームページをご覧頂きありがとうございます。
お客様の多くがお家を買うのに不安があるかと思われます。ハウスドゥではお客様の不安や問題解決に一つ一つ誠心誠意お答えいたします。また、お家探しに役立つ多くの物件に関する情報を掲載しております。
ハウスドゥ立川北ではお客様お一人お一人にあったご提案を心がけており、ローンシュミレーションや人工知能を使ったライフプランの作成(要予約)を行いお客様の不安を解決いたします
■頭金は必要なのか?
■ローンは払っていけるのか?
■どのタイミングで住み替えや引越しが出来るのか?etc
お気軽に相談できるハウスドゥ立川北へお問い合わせ下さい
◆ご予約方法◆
直接お電話ください。【0120-537-936】
メールでのご予約も承ります。お気軽にご来店ください。
物件によっては事前に鍵の手配が必要な場合がありますので、お早目にご連絡をいただけるとご案内がスムーズです。
◆ご案内方法◆
①ご自宅へお迎え②最寄駅や周辺地での待ち合わせ③ハウスドゥ立川北店へのご来店などご相談ください。