Loading
  1. TOP>
  2. 中古マンション>
  3. 関東>
  4. 東京都>
  5. 足立区>
  6. 西新井本町4丁目>
  7. 藤和シティコープ西新井 足立区西新井本町4丁目の中古マンション

藤和シティコープ西新井 足立区西新井本町4丁目の中古マンション

掲載情報更新日:2025年10月17日 次回更新予定日:2025年10月31日

  • 3,099万円
    • 借入ご希望金額
      万円
    • 借入期間
    • 借入金利
    • 月々のお支払い金額

※ 月々のお支払例は目安の試算となりますので、実際の金額とは異なる場合がございます。詳しくは店舗までお問合わせください。

  • 足立区西新井本町4丁目
  • 東武伊勢崎・大師線『大師前』 徒歩12分 (約900m)
    日暮里舎人ライナー『江北』 徒歩13分 (約1010m)
    東武伊勢崎・大師線『西新井』 徒歩17分 (約1290m)
取扱会社:ハウスドゥ 千住曙町  株式会社カクシンライフ
  • この物件に資料請求・問い合わせをする
  • ■お電話はこちら 通話料無料 0120-388-208

足立区西新井本町4丁目マンション | 物件情報

【ペット可/角部屋】小中学校が近く子育て世代におすすめ!2025年7月新規リフォーム完了の3LDK。

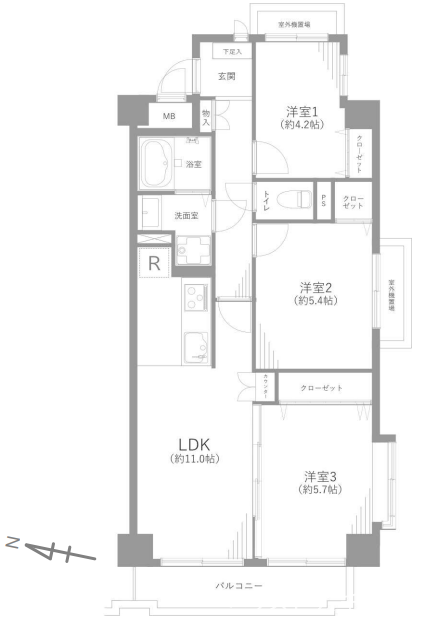
【間取り】

【間取り】

【居間・リビング】
豊かな光が照らすこの場所は、たわいもない会話を楽しみ、ゆったりとした時間を過ごす場所。
この場所から、家族の記憶が紡がれるでしょう。

【居間・リビング】
豊かな光が照らすこの場所は、たわいもない会話を楽しみ、ゆったりとした時間を過ごす場所。 この場所から、家族の記憶が紡がれるでしょう。

取扱会社
ハウスドゥ 千住曙町  
  • この物件に資料請求・問い合わせをする
  • ■お電話はこちら 通話料無料 0120-388-208

アピールポイント

♪♪朝9時から対応可能♪♪
◎急な見学でも可能な限り対応させていただきます!◎

◆2025年7月末に室内を全面的にリフォーム完了予定!
◆キッチン(浄水器付)や浴室(追焚・乾燥機付)、トイレなどの水回りをはじめ、フローリングや壁紙も新しくなり、気持ちよくお住まいいただけます。
◆小中学校が徒歩圏内にあり、お子様の通学も安心。
◆ペット飼育も可能(規約有)です。

全居室にエアコン設置可能、角部屋で快適な暮らしをサポートします。

物件の設備

  • 公営水道
  • 公共下水
  • 都市ガス
  • 給湯
  • 浄水器
  • コンロ三口
  • システムキッチン
  • バス
  • ユニットバス
  • オートバス
  • 追焚機能
  • 浴室乾燥機
  • トイレ
  • 温水洗浄便座
  • B/T別室
  • 室内洗濯機置場
  • 洗面所独立
  • オートロック
  • モニタ付オートロック
  • 防犯カメラ
  • フローリング
  • 全室フローリング
  • 網戸
  • クローゼット
  • クローゼット3箇所
  • 全居室収納
  • シューズボックス
  • バルコニー
  • エレベーター

物件の特徴

  • 管理人巡回
  • 角部屋
  • 始発駅
  • 2沿線利用可
  • 駅まで平坦
  • 小学校徒歩10分以内
  • スーパーが近い
  • 閑静な住宅街
  • 平坦地
  • 外観タイル張
  • ペット対応

物件詳細情報

担当エージェント:濱 有慶

子育て中のご家族にぴったりの住環境です。アフターサービス保証付きで入居後も安心。お気軽にお問い合わせください。

価格 3,099万円 間取り 3LDK
物件種別 中古マンション
所在地 東京都足立区西新井本町4丁目
アクセス
  • 東武伊勢崎・大師線『大師前』 徒歩12分 (約900m)
  • 日暮里舎人ライナー『江北』 徒歩13分 (約1010m)
  • 東武伊勢崎・大師線『西新井』 徒歩17分 (約1290m)
専有面積 壁芯 60.78㎡ 所在階 5階建/2階部分
主要採光 南西向 バルコニー 南西向4.68㎡
その他
権利 所有権
保証・評価
リフォーム
総戸数 29戸 面積
築年月 1991年(平成3年)03月築 建物構造 RC
施工会社
管理会社 三菱地所コミュニティ株式会社 管理方式 全部委託 巡回管理 管理組合あり
駐車場
都市計画
用途地域
建ぺい/容積率 土地国土法
法令制限
小学区 西新井小学校 徒歩4分 (約310m) 中学区 第五中学校 徒歩8分 (約620m)
現況 引渡 相談
管理費 15,550円/月 修繕積立金 15,840円/月
その他費用
周辺環境 ローソン 興野一丁目店 徒歩4分 (約310m)
西新井小学校 徒歩4分 (約310m)
ココカラファインヨークプライス西新井店 徒歩7分 (約560m)
東武ストア大師前店 徒歩9分 (約670m)
アリオ西新井店 徒歩8分 (約640m)
第五中学校 徒歩8分 (約620m)
大師前駅 徒歩12分 (約900m)
江北駅東口 徒歩13分 (約1010m)
西新井駅西口 徒歩17分 (約1290m)
備考
物件番号 4334408 取引態様 媒介

取扱店舗情報

ハウスドゥ 千住曙町  株式会社カクシンライフ 店舗詳細ページへ

電話番号 03-6806-2375
所在地 〒120-0023
東京都足立区千住曙町37-33
営業時間 9:30~18:30
定休日 火曜日・水曜日・年末年始
宅建免許番号 東京都知事(1)第109143号
アクセス 店舗への地図はこちら

ハウスドゥ  千住曙町の外観

この物件に関する資料請求・お問合せ

通話料無料 0120-388-208

お問い合わせの際に「ホームページを見た」といっていただくとお話がスムーズになります。

来店ご予約

ウィンドウを閉じる

ハウスドゥ 千住曙町  株式会社カクシンライフへの地図

  • ハウスドゥ  千住曙町の地図
  • ハウスドゥ  千住曙町の外観

GoogleMapで地図を見る

ウィンドウを閉じる

東京都足立区で価格が似ている物件はこちら

戻る

次へ

東京都足立区の 中古マンション 一覧から探す

東京都足立区で種別を変更して探す

東京都
マイページ物件数
5,718

マイページサービス

新規登録(無料)
  • 物件探しがもっと便利に
  • 希望情報をいち早くお届け
  • マイページ物件が閲覧可能

東京都中古マンション新着物件

お近くの店舗を探す

おすすめ物件

無料アプリ