ライオンズヒルズ参宮橋 渋谷区代々木4丁目の中古マンション
掲載情報更新日:2025年10月29日 次回更新予定日:2025年11月12日
- 1億8,990万円
-
- 借入ご希望金額
万円 - 借入期間
年 - 借入金利
% - 月々のお支払い金額
円
- 借入ご希望金額
※ 月々のお支払例は目安の試算となりますので、実際の金額とは異なる場合がございます。詳しくは店舗までお問合わせください。
- 渋谷区代々木4丁目
-
小田急小田原線『参宮橋』 徒歩3分 (約240m)
京王線『初台』 徒歩8分 (約640m)
JR総武・中央緩行線『代々木』 徒歩15分 (約1200m)
渋谷区代々木4丁目マンション | 物件情報
物件の設備
- 公営水道
- 下水道
- 公共下水
- 都市ガス
- 給湯
- 食器洗浄乾燥機
- コンロ三口
- グリル
- カウンターキッチン
- システムキッチン
- ユニットバス
- 追焚機能
- 浴室乾燥機
- シャワー
- 温水洗浄便座
- 室内洗濯機置場
- 洗髪洗面化粧台
- 洗面所独立
- エアコン
- 照明器具
- インターネット接続可
- 人感照明センサー
- オートロック
- モニタ付インターホン
- 防犯カメラ
- 全室フローリング
- フローリング張替
- クローゼット2箇所
- ウォークインクローゼット2箇所
- シューズボックス
- バルコニー
- 宅配BOX
- 駐輪場
- バイク置場
物件の特徴
- 管理人日勤
- 内装リフォーム済
- 内装リフォーム後渡
- 角部屋
- 3方角住戸
- 3沿線以上利用可
- 即入居可
- 小型犬可
- 中型犬可
- 大型犬可
- 多頭飼い可
- 猫可
- 事務所不可
物件詳細情報
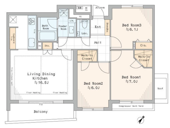
| 価格 | 1億8,990万円 | 間取り | 3LDK+S |
|---|---|---|---|
| 物件種別 | 中古マンション | ||
| 所在地 | 東京都渋谷区代々木4丁目13-8 | ||
| アクセス |
|
||
| 専有面積 | 壁芯 78.98㎡ | 所在階 | 5階建/5階部分 |
| 主要採光 | 南東向 | バルコニー | 南東向7.31㎡ |
| その他 | |||
| 権利 | 所有権 |
||
| 保証・評価 | |||
| リフォーム | 【水回り】2025年03月 キッチン・浴室・トイレ・洗面・給湯器・他[LIXILキッチンと洗面、TOTOトイレとユニット] 【内装】2025年03月 壁、天井 ・床 ・全室クロス ・建具 ・他[玄関収納、照明器具、エアコン] |
||
| 総戸数 | 面積 | ||
| 築年月 | 2000年(平成12年)09月築 | 建物構造 | RC |
| 施工会社 | |||
| 管理会社 | (株)大京アステージ | 管理方式 | 全部委託 日勤管理 |
| 駐車場 | 【駐車場】空有 料金:30,000円/月 料金帯:30,000円/月~32,000円/月 【バイク置き場】空有 【駐輪場】空無 |
||
| 都市計画 | 用途地域 | 2種低層 | |
| 建ぺい/容積率 | 土地国土法 | ||
| 法令制限 | |||
| 小学区 | 中学区 | ||
| 現況 | 空 | 引渡 | 即 |
| 管理費 | 23,690円/月 | 修繕積立金 | 15,800円/月 |
| その他費用 | |||
| 備考 | ◆地上5階建の最上階・東南角部屋 ◆新規内装リノベーション(2025年3月)完了済 ◆参宮橋公園・代々木公園向き 良好な採光条件 ◆耐震構造(壁式工法) ◆LDに床暖房 ◆ペット飼育可(規約有) ◆収納豊富な2WIC付 |
||
| 物件番号 | 4340320 | 取引態様 | 媒介 |
取扱店舗情報
| 電話番号 | 03-3988-3321 |
|---|---|
| 所在地 | 〒170-0013 東京都豊島区東池袋3丁目15-7 |
| 営業時間 | 9:00~18:00 |
| 定休日 | 日曜日、祝日、年末年始 |
| 宅建免許番号 | 東京都知事(1)第110290号 |
| アクセス | 店舗への地図はこちら |

来店ご予約
- 東京都
マイページ物件数 - 5,476件
最近見た物件
-
-

-
- 中古一戸建て
- 2,150万円
-
米原市顔戸
-
JR北陸本線坂田
-
-
-

-
- 中古マンション
- 3,030万円
-
名古屋市東区泉1丁目
-
名古屋市桜通線高岳
-
-
-

-
- 中古マンション
- 5,090万円
-
市川市新井3丁目
-
東京メトロ東西線南行徳
-
東京都中古マンション新着物件
- お近くの店舗を探す
-
おすすめ物件
-
-

-
- 中古マンション
- 7,990万円
-
大田区大森北5丁目
-
JR京浜東北・根岸線大森
-
-
-

-
- 中古マンション
- 1,980万円
-
葛飾区柴又5丁目
-
北総鉄道新柴又
-
-
-

-
- 中古マンション
- 1億4,990万円
-
世田谷区経堂5丁目
-
小田急小田原線千歳船橋
-
-
-

-
- 中古マンション
- 4,299万円
-
世田谷区砧2丁目
-
小田急小田原線千歳船橋
-
-
-

-
- 中古マンション
- 3,490万円
-
調布市多摩川3丁目
-
京王相模原線京王多摩川
-
-
-

-
- 中古マンション
- 4,398万円
-
足立区谷在家3丁目
-
日暮里舎人ライナー谷在家
-
-
-

-
- 中古マンション
- 3,799万円
-
小平市大沼町6丁目
-
西武新宿線小平
-
-
-

-
- 中古マンション
- 2,060万円
-
葛飾区新宿1丁目
-
JR千代田・常磐緩行線金町
-
-
-

-
- 中古マンション
- 1億3,990万円
-
台東区上野桜木1丁目
-
東京メトロ千代田線根津
-
-
-

-
- 中古マンション
- 4,290万円
-
調布市多摩川1丁目
-
京王相模原線京王多摩川
-

























