フォルム桃ヶ池公園 大阪市阿倍野区桃ケ池町1丁目の中古マンション
掲載情報更新日:2026年03月27日 次回更新予定日:2026年04月10日
- 2,780万円
-
- 借入ご希望金額
万円 - 借入期間
年 - 借入金利
% - 月々のお支払い金額
円
- 借入ご希望金額
※ 月々のお支払例は目安の試算となりますので、実際の金額とは異なる場合がございます。詳しくは店舗までお問合わせください。
- 大阪市阿倍野区桃ケ池町1丁目
-
大阪市御堂筋線『昭和町』 徒歩9分 (約720m)
JR阪和線『南田辺』 徒歩7分 (約560m)
大阪市谷町線『田辺』 徒歩10分 (約800m)
大阪市阿倍野区桃ケ池町1丁目マンション | 物件情報
■徒歩10分圏内に駅、スーパー、郵便局等、便利な立地! ■3路線利用可! ■小学校徒歩10分!
◆マンションを買うなら【ハウスドゥ長居公園東】へ!◆
全国700店舗以上を展開し、売買専門店舗数No.1のハウスドゥグループ。
その中でも当店は、不動産売買に特化した専門店舗として、地域密着で信頼あるサービスを提供しています。
特に東住吉区に強く、地元ならではの情報力と提案力が自慢です。学区・周辺環境・資産性など、細かなご希望に対しても的確にご提案可能です。
◇ 新築戸建て・中古住宅
◇ 中古+リフォームのご提案
◇ 投資用物件・収益不動産
◇ 住宅ローン相談・事前審査
◇ 売却・買替え・住み替え相談
ご購入からローン、リフォームまでワンストップで対応可能。お客様専属エージェントが、お客様の理想の住まい探しを全力でサポートします。
さらに、店舗限定の非公開物件も多数ご用意しております。「良い物件が見つからない」とお悩みの方も、ぜひ一度ご相談ください。
◆住宅ローン相談会も随時開催中!
「まずは話だけでも聞いてみたい」そんな方も大歓迎です。
【ハウスドゥ長居公園東】へお問合せください!
無料問い合わせ→【0120-885-123】
物件の設備
- 公営水道
- 下水道
- 公共下水
- 都市ガス
- 食器洗浄乾燥機
- バス
- トイレ
- 室内洗濯機置場
- 洗面所独立
- 全室フローリング
- 全居室収納
物件の特徴
- 管理人日勤
- 3沿線以上利用可
- 即入居可
オープンハウス・イベント情報
開催日時:毎週土日祝 10:00~17:00
開催場所:大阪府大阪市阿倍野区
(事前に必ずお問い合わせください) ■現地内覧会■ 『ローン相談だけ』『お家の中だけ見てみたい』などご要望にお応え致します! おおよその所要時間は下記をご参考ください ・現地/物件見学(約30分~) ・ご希望条件のご相談(約30分~) ・資金計画やローンのご相談(約30分~) …
物件詳細情報
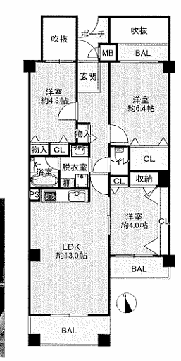
| 価格 | 2,780万円 | 間取り | 3LDK |
|---|---|---|---|
| 物件種別 | 中古マンション | ||
| 所在地 | 大阪府大阪市阿倍野区桃ケ池町1丁目 | ||
| アクセス |
|
||
| 専有面積 | 壁芯 66.28㎡ | 所在階 | 5階建/4階部分 |
| 主要採光 | 南向 | バルコニー | |
| その他 | |||
| 権利 | 所有権 |
||
| 保証・評価 | |||
| リフォーム | |||
| 総戸数 | 14戸 | 面積 | |
| 築年月 | 1986年(昭和61年)07月築 | 建物構造 | RC |
| 施工会社 | 大新建設工業株式会社 | ||
| 管理会社 | 大和ライフネクスト株式会社 | 管理方式 | 全部委託 日勤管理 管理組合あり |
| 駐車場 | |||
| 都市計画 | 用途地域 | ||
| 建ぺい/容積率 | 土地国土法 | ||
| 法令制限 | |||
| 小学区 | 長池小学校 徒歩10分 (約800m) | 中学区 | 昭和中学校 徒歩5分 (約350m) |
| 現況 | 空 | 引渡 | 即 |
| 管理費 | 18,030円/月 | 修繕積立金 | 14,051円/月 |
| その他費用 | |||
| 周辺環境 | 東住吉田辺郵便局 徒歩9分 (約680m) 谷町線 田辺駅 徒歩10分 (約770m) サンディ 南田辺店 徒歩9分 (約720m) ローソンストア100東住吉田辺店 徒歩10分 (約760m) 山坂公園 徒歩12分 (約900m) 長池公園 徒歩11分 (約840m) 西田辺駅 徒歩13分 (約1030m) 田辺本通商店街 徒歩14分 (約1120m) 東和病院 徒歩15分 (約1180m) 北田辺駅 徒歩17分 (約1360m) |
||
| 備考 | |||
| 物件番号 | 4346355 | 取引態様 | 媒介 |
取扱店舗情報
| 電話番号 | 06-6657-5963 |
|---|---|
| 所在地 | 〒546-0014 大阪府大阪市東住吉区鷹合1丁目13-3 KIDビル1階 |
| 営業時間 | 10:00~19:00 |
| 定休日 | 水曜日 |
| 宅建免許番号 | 大阪府知事(1)第65144号 |
| アクセス | 店舗への地図はこちら |

来店ご予約
大阪府大阪市阿倍野区で価格が似ている物件はこちら
- 大阪府
マイページ物件数 - 18,121件
大阪府中古マンション新着物件
-
-

-
- 中古マンション
- 5,880万円
-
大阪市城東区東中浜9丁目
-
大阪市中央線緑橋駅
-
-
-

-
- 中古マンション
- 2,498万円
-
松原市天美東7丁目
-
近鉄南大阪線河内天美駅
-
-
-

-
- 中古マンション
- 3,698万円
-
大阪市淀川区新北野1丁目
-
阪急電鉄神戸線十三駅
-
-
-

-
- 中古マンション
- 3,498万円
-
大阪市淀川区西宮原3丁目
-
阪急電鉄宝塚線三国駅
-
-
-

-
- 中古マンション
- 3,680万円
-
堺市北区北花田町2丁
-
大阪市御堂筋線北花田駅
-
-
-

-
- 中古マンション
- 1,690万円
-
茨木市藤の里1丁目
-
JR東海道線茨木駅
-
-
-

-
- 中古マンション
- 2,590万円
-
茨木市水尾3丁目
-
阪急電鉄京都線南茨木駅
-
- お近くの店舗を探す
-
おすすめ物件
-
-

-
- 中古マンション
- 4,199万円
-
茨木市美穂ケ丘
-
大阪モノレール彩都阪大病院前
-
-
-

-
- 中古マンション
- 630万円
-
大阪市住之江区粉浜西3丁目
-
南海電鉄本線住吉大社
-
-
-

-
- 中古マンション
- 2,890万円
-
吹田市末広町
-
JR東海道線吹田
-
-
-

-
- 中古マンション
- 1,780万円
-
吹田市山手町3丁目
-
阪急電鉄千里線関大前
-
-
-

-
- 中古マンション
- 1,990万円
-
八尾市永畑町3丁目
-
JR関西本線八尾
-
-
-

-
- 中古マンション
- 1,350万円
-
摂津市千里丘6丁目
-
JR東海道線岸辺
-
-
-

-
- 中古マンション
- 3,700万円
-
大阪市住吉区南住吉4丁目
-
JR阪和線我孫子町
-
-
-

-
- 中古マンション
- 4,580万円
-
茨木市上穂積1丁目
-
JR東海道線茨木
-
-
-

-
- 中古マンション
- 2,880万円
-
豊中市大黒町2丁目
-
阪急電鉄神戸線神崎川
-
-
-

-
- 中古マンション
- 1,380万円
-
高槻市真上町5丁目
-
JR東海道線高槻
-











「購入後すぐに不具合があったらどうしよう・・・」
そんな中古住宅の不安解消をハウスドゥがサポート。
◆住宅設備あんしん保証プラス5つの安心サポート!
◇修理無制限
修理回数制限なしOK!契約期間中は、同じ部位の故障も何度でも修理可能です。
◇出張費・工賃無料
出張費、施工料、技術料0円!メーカー保証対象の修理は全て保証いたします。
◇経年劣化対応
消耗品以外なら、住宅設備の経年劣化による故障、自然故障にも対応。
◇事前審査なし
面倒な事前審査は一切ございません。今すぐといったご要望に対応可能です。
◇24時間365日コール受付
お電話一本で、簡単修理受付。全国対応24時間365日、コールセンターにてお電話受付対応いたします。
◆ハウスドゥなら確かな保証のおまもりDoで充実サポート!
◇3つのおまもりで安心プラス!
1.インスペクション
2.既存住宅保険
3.設備機器保証
※詳細、費用については担当者へお問合せください。
築年数や構造等により保証の対象とならない場合がございますので事前に必ずご確認ください。