GSハイム巣鴨 豊島区巣鴨3丁目の中古マンション
掲載情報更新日:2025年10月30日 次回更新予定日:2025年11月13日
- 3,590万円
-
- 借入ご希望金額
万円 - 借入期間
年 - 借入金利
% - 月々のお支払い金額
円
- 借入ご希望金額
※ 月々のお支払例は目安の試算となりますので、実際の金額とは異なる場合がございます。詳しくは店舗までお問合わせください。
- 豊島区巣鴨3丁目
-
JR山手線『巣鴨』 徒歩4分 (約320m)
都営三田線『巣鴨』 徒歩3分 (約240m)
JR山手線『大塚』 徒歩13分 (約1040m)
豊島区巣鴨3丁目マンション | 物件情報
物件の設備
- 公営水道
- 公共下水
- 都市ガス
- 給湯
- グリル
- カウンターキッチン
- システムキッチン
- ユニットバス
- 追焚機能
- 浴室乾燥機
- シャワー
- 温水洗浄便座
- 室内洗濯機置場
- 洗髪洗面化粧台
- 洗面所独立
- 照明器具
- 人感照明センサー
- モニタ付インターホン
- 防犯カメラ
- 全室フローリング
- クローゼット
- 玄関収納
- バルコニー
物件の特徴
- 管理人日勤
- 内装リフォーム済
- 内装リフォーム後渡
- 角部屋
- 3沿線以上利用可
物件詳細情報
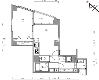
| 価格 | 3,590万円 | 間取り | 1LDK |
|---|---|---|---|
| 物件種別 | 中古マンション | ||
| 所在地 | 東京都豊島区巣鴨3丁目33-6 | ||
| アクセス |
|
||
| 専有面積 | 37.80㎡ | 所在階 | 11階建/5階部分 |
| 主要採光 | 東向 | バルコニー | 東向2.88㎡ |
| その他 | |||
| 権利 | 所有権 |
||
| 保証・評価 | |||
| リフォーム | 【水回り】2025年07月 キッチン・トイレ 【内装】2025年07月 壁、天井 |
||
| 総戸数 | 46戸 | 面積 | |
| 築年月 | 1982年(昭和57年)05月築 | 建物構造 | SRC |
| 施工会社 | 鉄建建設株式会社 | ||
| 管理会社 | 管理方式 | 自主管理 日勤管理 | |
| 駐車場 | |||
| 都市計画 | 用途地域 | ||
| 建ぺい/容積率 | 土地国土法 | ||
| 法令制限 | |||
| 小学区 | 仰高小学校 徒歩6分 (約480m) | 中学区 | 駒込中学校 徒歩13分 (約970m) |
| 現況 | 空 | 引渡 | 相談 |
| 管理費 | 10,600円/月 | 修繕積立金 | 1,060円/月 |
| その他費用 | |||
| 備考 | ◆2025年7月中旬フルリノベーション工事完成 ◆6駅3路線利用可能!6駅全て徒歩圏内! |
||
| 物件番号 | 4349296 | 取引態様 | 媒介 |
取扱店舗情報
| 電話番号 | 03-3988-3321 |
|---|---|
| 所在地 | 〒170-0013 東京都豊島区東池袋3丁目15-7 |
| 営業時間 | 9:00~18:00 |
| 定休日 | 日曜日、祝日、年末年始 |
| 宅建免許番号 | 東京都知事(1)第110290号 |
| アクセス | 店舗への地図はこちら |

来店ご予約
- 東京都
マイページ物件数 - 5,462件
最近見た物件
-
-

-
- 中古マンション
- 2,080万円
-
足立区西新井本町2丁目
-
日暮里舎人ライナー西新井大師西
-
-
-

-
- 中古マンション
- 3,100万円
-
松山市勝山町1丁目
-
伊予鉄道環状線勝山町
-
東京都中古マンション新着物件
- お近くの店舗を探す
-
おすすめ物件
-
-

-
- 中古マンション
- 1億6,980万円
-
台東区西浅草3丁目
-
つくばエクスプレス浅草
-
-
-

-
- 中古マンション
- 7,990万円
-
大田区大森北5丁目
-
JR京浜東北・根岸線大森
-
-
-

-
- 中古マンション
- 4,890万円
-
足立区千住東2丁目
-
東武伊勢崎・大師線牛田
-
-
-

-
- 中古マンション
- 2,050万円
-
市原市ちはら台西4丁目
-
京成千原線ちはら台
-
-
-

-
- 中古マンション
- 4,199万円
-
葛飾区南水元1丁目
-
JR千代田・常磐緩行線金町
-
-
-

-
- 中古マンション
- 1,790万円
-
足立区東和5丁目
-
東京メトロ千代田線北綾瀬
-
-
-

-
- 中古マンション
- 2,080万円
-
江戸川区中葛西3丁目
-
東京メトロ東西線葛西
-
-
-

-
- 中古マンション
- 5,990万円
-
台東区元浅草4丁目
-
東京メトロ銀座線田原町
-
-
-

-
- 中古マンション
- 1億980万円
-
台東区上野7丁目
-
JR山手線上野
-
-
-

-
- 中古マンション
- 9,980万円
-
豊島区東池袋3丁目
-
東京メトロ有楽町線東池袋
-







