ダイアパレス草加旭町 草加市旭町5丁目の中古マンション
掲載情報更新日:2025年10月23日 次回更新予定日:2025年11月06日
- 2,695万円
-
- 借入ご希望金額
万円 - 借入期間
年 - 借入金利
% - 月々のお支払い金額
円
- 借入ご希望金額
※ 月々のお支払例は目安の試算となりますので、実際の金額とは異なる場合がございます。詳しくは店舗までお問合わせください。
- 草加市旭町5丁目
-
東武伊勢崎・大師線『獨協大学前』 徒歩12分 (約960m)
東武伊勢崎・大師線『新田』 徒歩12分 (約960m)
草加市旭町5丁目マンション | 物件情報
・東武伊勢崎線「獨協大学前」駅より徒歩12分の立地~フルリノベーションの3LDK
~只今キャンペーン中~ご成約頂いたお客様にもれなく1万円分のクオカードを進呈中~
・東武伊勢崎線「獨協大学前」駅より徒歩12分の立地
・南向きにつき日当たり良好です
・お料理のしやすい3口コンロのシステムキッチン
・浴室乾燥機付きで雨の日もお洗濯出来ます
・顔認証型最新オートロック完備
・周辺環境充実した立地
・令和7年7月中旬フルリノベーション完了
~お気軽にお問い合わせ下さい~
物件の設備
- コンロ三口
- システムキッチン
- バス
- 追焚機能
- 浴室乾燥機
- シャワー
- トイレ
- 室内洗濯機置場
- 洗面所独立
- 人感照明センサー
- オートロック
- フローリング
- 全室フローリング
- クローゼット
- クローゼット2箇所
- クローゼット3箇所
- 収納スペース
- 全居室収納
- シューズボックス
- バルコニー
- ワイドバルコニー
- 南面バルコニー
- 2WAYバルコニー
- 駐輪場
物件の特徴
- 管理人日勤
- リノベーション
- 南向
- 小学校徒歩10分以内
- スーパーが近い
- 閑静な住宅街
- 通風良好
- 陽当り良好
- ペット不可
物件詳細情報
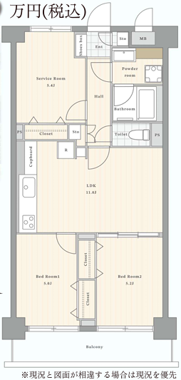
| 価格 | 2,695万円 | 間取り | 3LDK |
|---|---|---|---|
| 物件種別 | 中古マンション | ||
| 所在地 | 埼玉県草加市旭町5丁目 | ||
| アクセス |
|
||
| 専有面積 | 壁芯 60.50㎡ | 所在階 | 5階建/4階部分 |
| 主要採光 | 南向 | バルコニー | 南向5.00㎡ |
| その他 | |||
| 権利 | 所有権 |
||
| 保証・評価 | |||
| リフォーム | 【その他】2025年07月 玄関収納・人感センサー付照明、システムキッチン新規交換、ユニットバス、洗面化粧台、トイレ新規交換、全室廊下クロス貼替え、全室フローリング・フロアタイル張替え、建具全交換、給湯器交換、専用部給排水管更新 |
||
| 総戸数 | 56戸 | 面積 | |
| 築年月 | 1995年(平成7年)04月築 | 建物構造 | RC |
| 施工会社 | |||
| 管理会社 | 株式会社東急コミュニティー | 管理方式 | 全部委託 日勤管理 管理組合あり |
| 駐車場 | 【駐車場】空有 料金:9,000円/月 料金帯:6,500円/月~9,000円/月 【駐輪場】空有 |
||
| 都市計画 | 用途地域 | ||
| 建ぺい/容積率 | 土地国土法 | ||
| 法令制限 | |||
| 小学区 | 中学区 | ||
| 現況 | 空 | 引渡 | 相談 |
| 管理費 | 15,190円/月 | 修繕積立金 | 8,350円/月 |
| その他費用 | |||
| 周辺環境 | まつばらきた保育園 徒歩9分 (約660m) ひかり幼稚園 徒歩10分 (約770m) 草加市立新田小学校 徒歩10分 (約800m) 草加市立新田中学校 徒歩10分 (約800m) ファミリーマート 草加旭町二丁目店 徒歩6分 (約450m) イトーヨーカドー 新田店 徒歩7分 (約560m) マルエツ 松原店 徒歩10分 (約750m) ドラッグストア セキ 新善町店 徒歩10分 (約750m) 草加郵便局 徒歩12分 (約890m) いまじょうクリニック 徒歩5分 (約350m) |
||
| 備考 | 駐車場あり(機械式上段:月額7,500円、下段:月額6,500円、平置き:月額9,000円、7,500円) 駐輪場あり(1台目:月額200円、2台目:月額300円、3台目:月額400円) ※駐車場等の空き状況要確認 |
||
| 物件番号 | 4349299 | 取引態様 | 媒介 |
取扱店舗情報
ハウスドゥ 上福岡 GLOBAL HOLDINGS株式会社 店舗詳細ページへ
| 電話番号 | 049-264-1010 |
|---|---|
| 所在地 | 〒356-0006 埼玉県ふじみ野市霞ケ丘1丁目2番27 ココネ上福岡1F |
| 営業時間 | 9:00~19:00 |
| 定休日 | 水曜日、年末年始 |
| 宅建免許番号 | 埼玉県知事(3)第22701号 |
| アクセス | 店舗への地図はこちら |

来店ご予約
埼玉県草加市で価格が似ている物件はこちら
- 埼玉県
マイページ物件数 - 3,567件
埼玉県中古マンション新着物件
- お近くの店舗を探す
-
おすすめ物件
-
-

-
- 中古マンション
- 2,980万円
-
越谷市宮本町1丁目
-
東武伊勢崎・大師線越谷
-
-
-

-
- 中古マンション
- 2,390万円
-
越谷市千間台西5丁目
-
東武伊勢崎・大師線せんげん台
-
-
-

-
- 中古マンション
- 2,890万円
-
さいたま市北区櫛引町2丁目
-
埼玉新都市交通鉄道博物館(大成)
-
-
-

-
- 中古マンション
- 3,190万円
-
さいたま市北区宮原町2丁目
-
埼玉新都市交通東宮原
-
-
-

-
- 中古マンション
- 940万円
-
上尾市上町1丁目
-
JR高崎線上尾
-
-
-

-
- 中古マンション
- 4,490万円
-
さいたま市大宮区土手町1丁目
-
東武野田線北大宮
-
-
-

-
- 中古マンション
- 2,480万円
-
さいたま市緑区大字大間木
-
JR武蔵野線東浦和
-
-
-

-
- 中古マンション
- 2,390万円
-
越谷市蒲生寿町
-
東武伊勢崎・大師線蒲生
-
-
-

-
- 中古マンション
- 3,280万円
-
さいたま市緑区東浦和3丁目
-
JR武蔵野線東浦和
-
-
-

-
- 中古マンション
- 1,999万円
-
越谷市谷中町1丁目
-
東武伊勢崎・大師線新越谷
-











担当エージェント:島野 大
弊社はより多くの方が購入し易いリーズナブルな価格の中古物件を取り揃えております。お客様一人一人のニーズに合った物件探しをモットーに全力でサポート致します。是非お気軽にご相談下さい。