多摩川久地パークハイツ 川崎市多摩区堰1丁目の中古マンション
掲載情報更新日:2026年02月10日 次回更新予定日:2026年02月24日
- 3,790万円
-
- 借入ご希望金額
万円 - 借入期間
年 - 借入金利
% - 月々のお支払い金額
円
- 借入ご希望金額
※ 月々のお支払例は目安の試算となりますので、実際の金額とは異なる場合がございます。詳しくは店舗までお問合わせください。
- 川崎市多摩区堰1丁目
-
JR南武線『宿河原』 徒歩17分 (約1360m)
JR南武線『登戸』 徒歩26分 (約2070m)
小田急小田原線『向ヶ丘遊園』 徒歩35分 (約2760m)
川崎市多摩区堰1丁目マンション | 物件情報
物件の設備
- 都市ガス
- 浄水器
- 食器洗浄乾燥機
- コンロ三口
- システムキッチン
- ユニットバス
- 追焚機能
- 浴室暖房
- 浴室乾燥機
- 温水洗浄便座
- 室内洗濯機置場
- 洗髪洗面化粧台
- 照明器具
- ダウンライト
- モニタ付インターホン
- 防犯カメラ
- 複層ガラス
- 全室フローリング
- クローゼット
- クローゼット3箇所
- シューズボックス
- バルコニー
- 3面バルコニー
- 施設内貸会議室
- エレベーター
- 駐輪場
- バイク置場
物件の特徴
- 管理人日勤
- 内装リフォーム後渡
- 通風良好
- 陽当り良好
- 前面棟無
- 即入居可
物件詳細情報
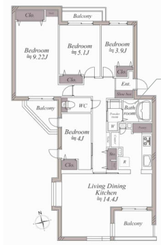
| 価格 | 3,790万円 | 間取り | 4LDK |
|---|---|---|---|
| 物件種別 | 中古マンション | ||
| 所在地 | 神奈川県川崎市多摩区堰1丁目 | ||
| アクセス |
|
||
| 専有面積 | 壁芯 95.00㎡ | 所在階 | 5階建/3階部分 |
| 主要採光 | 南西向 | バルコニー | 南西向11.44㎡ |
| その他 | |||
| 権利 | 所有権 |
||
| 保証・評価 | |||
| リフォーム | |||
| 総戸数 | 68戸 | 面積 | |
| 築年月 | 1986年(昭和61年)03月築 | 建物構造 | RC |
| 施工会社 | 鹿島建設 | ||
| 管理会社 | 日本管財住宅管理 | 管理方式 | 一部管理 日勤管理 |
| 駐車場 | 【駐車場】空無 【バイク置き場】空有 料金:3000円/年 【駐輪場】空有 料金:1000円/年 |
||
| 都市計画 | 用途地域 | 1種住居 | |
| 建ぺい/容積率 | 土地国土法 | ||
| 法令制限 | |||
| 小学区 | 中学区 | ||
| 現況 | 空 | 引渡 | 即 |
| 管理費 | 12,430円/月 | 修繕積立金 | 22,800円/月 |
| その他費用 | |||
| 周辺環境 | 久地駅 徒歩12分 (約890m) ローソン川崎宿河原店 徒歩7分 (約520m) 川崎堰郵便局 徒歩9分 (約700m) ファミリーマート 堰3丁目店 徒歩10分 (約750m) まいばすけっと 久地駅北店 徒歩9分 (約660m) フレスコベンガベンガ 久地店 徒歩9分 (約720m) セブンイレブン 川崎宿河原店 徒歩14分 (約1080m) |
||
| 備考 | |||
| 物件番号 | 4351622 | 取引態様 | 媒介 |
取扱店舗情報
ハウスドゥ 向ヶ丘遊園 株式会社パワーラッシュ 店舗詳細ページへ
| 電話番号 | 044-299-8081 |
|---|---|
| 所在地 | 〒214-0014 神奈川県川崎市多摩区登戸2777-2 N100ビル201号室 |
| 営業時間 | 9:00~18:00 |
| 定休日 | 水曜日、年末年始 |
| 宅建免許番号 | 神奈川県知事(1)第32601号 |
| アクセス | 店舗への地図はこちら |

来店ご予約
神奈川県川崎市多摩区で価格が似ている物件はこちら
- 神奈川県
マイページ物件数 - 3,183件
神奈川県中古マンション新着物件
-
-

-
- 中古マンション
- 2,180万円
-
厚木市恩名1丁目
-
小田急小田原線本厚木駅
-
-
-

-
- 中古マンション
- 1,200万円
-
横浜市南区六ツ川2丁目
-
京急本線弘明寺駅
-
-
-

-
- 中古マンション
- 4,480万円
-
横浜市中区本牧原
-
JR京浜東北・根岸線石川町駅
-
-
-

-
- 中古マンション
- 5,980万円
-
川崎市麻生区百合丘2丁目
-
小田急小田原線新百合ヶ丘駅
-
-
-

-
- 中古マンション
- 2,900万円
-
川崎市宮前区宮崎1丁目
-
東急田園都市線宮崎台駅
-
-
-

-
- 中古マンション
- 1,380万円
-
横浜市磯子区西町
-
JR京浜東北・根岸線根岸駅
-
-
-

-
- 中古マンション
- 1,380万円
-
平塚市南原3丁目
-
JR東海道本線平塚駅
-
- お近くの店舗を探す
-
おすすめ物件
-
-

-
- 中古マンション
- 3,790万円
-
横浜市中区新山下3丁目
-
横浜高速鉄道みなとみらい線元町・中華街
-
-
-

-
- 中古マンション
- 4,480万円
-
横浜市中区本牧原
-
JR京浜東北・根岸線石川町
-
-
-

-
- 中古マンション
- 3,280万円
-
平塚市宝町
-
JR東海道本線平塚
-
-
-

-
- 中古マンション
- 3,490万円
-
横浜市中区根岸旭台
-
JR根岸線根岸
-
-
-

-
- 中古マンション
- 4,580万円
-
横浜市中区伊勢佐木町5丁目
-
JR京浜東北・根岸線関内
-
-
-

-
- 中古マンション
- 2,980万円
-
横浜市中区山下町
-
JR根岸線石川町
-
-
-

-
- 中古マンション
- 3,899万円
-
横浜市中区新山下3丁目
-
横浜高速鉄道みなとみらい線元町・中華街
-
-
-

-
- 中古マンション
- 3,480万円
-
横浜市中区豆口台
-
JR京浜東北・根岸線山手
-
-
-

-
- 中古マンション
- 4,280万円
-
平塚市見附町
-
JR東海道本線平塚
-
-
-

-
- 中古マンション
- 1,580万円
-
厚木市森の里2丁目
-
小田急小田原線本厚木
-




































