砧グリーンハイム
掲載情報更新日:2026年01月11日 次回更新予定日:2026年01月25日
- 2,680万円
-
- 借入ご希望金額
万円 - 借入期間
年 - 借入金利
% - 月々のお支払い金額
円
- 借入ご希望金額
※ 月々のお支払例は目安の試算となりますので、実際の金額とは異なる場合がございます。詳しくは店舗までお問合わせください。
- 世田谷区砧4丁目
-
小田急小田原線『祖師ヶ谷大蔵』 徒歩12分 (約960m)
小田急小田原線『成城学園前』 バス乗車9分 NHK技術研究所 停 徒歩7分 (約560m)
東急田園都市線『用賀』 バス乗車14分 砧町 停 徒歩9分 (約720m)
砧グリーンハイムマンション | 物件情報
■2階南東向き角住戸 日当たり・眺望・通風良好◎ ■内装フルリノベーション予定!
《Access》
・小田急線「祖師ヶ谷大蔵駅」歩12分
・同線「成城学園前駅」バス9分、「NHK技術研究所停」歩7分
・東急田園都市線「用賀駅」バス14分「砧町停」歩9分
《Point》
・2沿線利用可能
・緑豊かな住環境
・角部屋・南東向き住戸につき、日当たり・通風・眺望良好◎
・新規内装デザインリフォーム予定!
《Remodeling》2025年10月29日完工予定
キッチン:浄水器付システムキッチン交換
浴室:追い焚き・浴室乾燥機能付ユニットバス交換
トイレ:温水洗浄機能付トイレ交換
洗面台:洗面化粧台交換
床材:全室フローリング張替え
クロス:壁・天井全面張替え
建具:全室交換
その他:ダウンライト新設、火災警報器交換、配管更新・・・など
良さを体感いただける充実したリフォーム内容です♪
物件の設備
- 公営水道
- 下水道
- 都市ガス
- 給湯
- 浄水器
- グリル
- システムキッチン
- バス
- ユニットバス
- オートバス
- 追焚機能
- 浴室暖房
- 浴室乾燥機
- 温水洗浄便座
- B/T別室
- 室内洗濯機置場
- 洗面所独立
- 照明器具
- BS
- CS
- ネット専用回線
- ダウンライト
- 省エネ給湯器
- モニタ付インターホン
- 火災警報器/報知機
- フローリング
- 全室フローリング
- フローリング張替
- 24時間換気システム
- クローゼット
- シューズボックス
- バルコニー
物件の特徴
- 管理人巡回
- 内装リフォーム済
- 内装リフォーム後渡
- 角部屋
- 南東角部屋
- 2沿線利用可
- 駅まで平坦
- 小学校徒歩10分以内
- 緑豊かな住宅地
- スーパーが近い
- 眺望良好
- 通風良好
- 陽当り良好
- 平坦地
- 修繕
- 点検記録
物件詳細情報
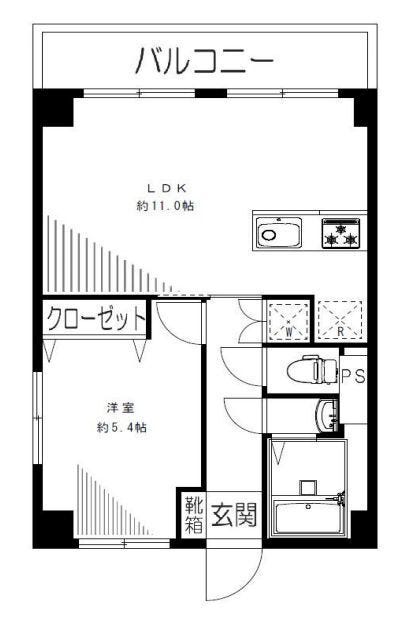
| 価格 | 2,680万円 | 間取り | 1LDK |
|---|---|---|---|
| 物件種別 | 中古マンション | ||
| 所在地 | 東京都世田谷区砧4丁目 | ||
| アクセス |
|
||
| 専有面積 | 壁芯 40.29㎡ | 所在階 | 5階建/2階部分 |
| 主要採光 | 南東向 | バルコニー | 南東向4.89㎡ |
| その他 | |||
| 権利 | 所有権 |
||
| 保証・評価 | |||
| リフォーム | 【水回り】2025年10月 キッチン・浴室・トイレ・洗面・給湯器・給排水管 【内装】2025年10月 壁、天井 ・床 ・全室クロス ・建具 |
||
| 総戸数 | 15戸 | 面積 | |
| 築年月 | 1975年(昭和50年)06月築 | 建物構造 | RC |
| 施工会社 | |||
| 管理会社 | 砧グリーンハイム管理組合 | 管理方式 | 自主管理 巡回管理 |
| 駐車場 | |||
| 都市計画 | 用途地域 | ||
| 建ぺい/容積率 | 土地国土法 | ||
| 法令制限 | |||
| 小学区 | 山野小学校 徒歩9分 (約680m) | 中学区 | 砧中学校 徒歩23分 (約1780m) |
| 現況 | 空 | 引渡 | 相談 |
| 管理費 | 10,000円/月 | 修繕積立金 | |
| その他費用 | |||
| 周辺環境 | まいばすけっと砧店 徒歩4分 (約250m) セブンイレブン世田谷砧4丁目店 徒歩4分 (約300m) 世田谷砧郵便局 徒歩6分 (約460m) 太陽の子世田谷きぬた保育園 徒歩6分 (約460m) 山野小学校 徒歩9分 (約680m) ウエルシア世田谷砧店 徒歩9分 (約700m) 医療法人社団井上外科記念会世田谷井上病院 徒歩11分 (約820m) プラッツ砧 徒歩11分 (約860m) 日本大学商学部図書館 徒歩12分 (約900m) 桜丘すみれば自然庭園 徒歩13分 (約1000m) |
||
| 備考 | |||
| 物件番号 | 4363083 | 取引態様 | 媒介 |
取扱店舗情報
ハウスドゥ 千歳船橋 R2-CONNECT株式会社 店舗詳細ページへ
| 電話番号 | 03-5799-7621 |
|---|---|
| 所在地 | 〒156-0054 東京都世田谷区桜丘5丁目47-19 |
| 営業時間 | 9:00~19:00 |
| 定休日 | 火曜日、水曜日 |
| 宅建免許番号 | 東京都知事(1)第107079号 |
| アクセス | 店舗への地図はこちら |

来店ご予約
東京都世田谷区で価格が似ている物件はこちら
- 東京都
マイページ物件数 - 5,071件
最近見た物件
東京都中古マンション新着物件
-
-

-
- 中古マンション
- 4,699万円
-
狛江市岩戸北1丁目
-
小田急小田原線狛江駅
-
-
-

-
- 中古マンション
- 2,999万円
-
港区西新橋3丁目
-
都営三田線御成門駅
-
-
-

-
- 中古マンション
- 5,130万円
-
新宿区下落合1丁目
-
東京メトロ東西線高田馬場駅
-
-
-

-
- 中古マンション
- 5,690万円
-
江戸川区西葛西6丁目
-
東京メトロ東西線西葛西駅
-
-
-

-
- 中古マンション
- 4,580万円
-
中央区日本橋浜町1丁目
-
都営新宿線浜町駅
-
-
-

-
- 中古マンション
- 9,980万円
-
世田谷区千歳台1丁目
-
小田急小田原線千歳船橋駅
-
-
-

-
- 中古マンション
- 6,699万円
-
江東区豊洲1丁目
-
東京メトロ有楽町線豊洲駅
-
- お近くの店舗を探す
-
おすすめ物件
-
-

-
- 中古マンション
- 6,798万円
-
西東京市谷戸町2丁目
-
西武池袋・豊島線ひばりケ丘
-
-
-

-
- 中古マンション
- 3,980万円
-
練馬区関町南4丁目
-
西武新宿線武蔵関
-
-
-

-
- 中古マンション
- 3,980万円
-
葛飾区高砂1丁目
-
京成本線青砥
-
-
-

-
- 中古マンション
- 1億4,980万円
-
世田谷区玉川台2丁目
-
東急田園都市線用賀
-
-
-

-
- 中古マンション
- 3,630万円
-
板橋区前野町4丁目
-
都営三田線志村坂上
-
-
-

-
- 中古マンション
- 2,480万円
-
葛飾区東金町1丁目
-
JR千代田・常磐緩行線金町
-
-
-

-
- 中古マンション
- 3,290万円
-
練馬区関町南4丁目
-
西武新宿線武蔵関
-
-
-

-
- 中古マンション
- 2,280万円
-
葛飾区南水元1丁目
-
JR千代田・常磐緩行線金町
-
-
-

-
- 中古マンション
- 7,680万円
-
調布市東つつじケ丘2丁目
-
京王線つつじヶ丘
-
-
-

-
- 中古マンション
- 3,980万円
-
板橋区大谷口北町
-
東武東上線中板橋
-

























世田谷区物件はハウスドゥ千歳船橋へお任せください。
物件、資金計画、周辺環境もご案内させて頂きます♪
内装工事中も内見可能です!
お気軽にお問合せください。