ガーデングラス川口中青木 川口市中青木2丁目の中古マンション
掲載情報更新日:2026年01月05日 次回更新予定日:2026年01月19日
- 4,150万円
-
- 借入ご希望金額
万円 - 借入期間
年 - 借入金利
% - 月々のお支払い金額
円
- 借入ご希望金額
※ 月々のお支払例は目安の試算となりますので、実際の金額とは異なる場合がございます。詳しくは店舗までお問合わせください。
- 川口市中青木2丁目
-
JR京浜東北・根岸線『川口』 徒歩20分 (約1530m)
JR京浜東北・根岸線『西川口』 徒歩22分 (約1690m)
埼玉高速鉄道『川口元郷』 徒歩24分 (約1890m)
川口市中青木2丁目マンション | 物件情報
★人気エリアのマンションが登場です★専用庭付き★
☆☆☆本日、ご案内可能です☆☆☆
人気エリアのマンションが登場です!
◆専用庭付き1階住戸
◆ペット可のマンションです
物件の設備
- テラス
- 専用庭
物件の特徴
- 管理人巡回
物件詳細情報
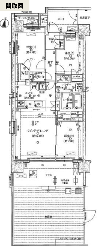
| 価格 | 4,150万円 | 間取り | 3LDK |
|---|---|---|---|
| 物件種別 | 中古マンション | ||
| 所在地 | 埼玉県川口市中青木2丁目 | ||
| アクセス |
|
||
| 専有面積 | 壁芯 71.91㎡ | 所在階 | 10階建/1階部分 |
| 主要採光 | 南向 | バルコニー | |
| その他 | 32.81㎡ 990円/月 12.50㎡ | ||
| 権利 | 所有権 |
||
| 保証・評価 | |||
| リフォーム | |||
| 総戸数 | 60戸 | 面積 | |
| 築年月 | 2014年(平成26年)01月築 | 建物構造 | RC |
| 施工会社 | |||
| 管理会社 | フージャースリビングサービス | 管理方式 | 全部委託 巡回管理 管理組合あり |
| 駐車場 | |||
| 都市計画 | 用途地域 | ||
| 建ぺい/容積率 | 土地国土法 | ||
| 法令制限 | |||
| 小学区 | 青木中央小学校 徒歩4分 (約260m) | 中学区 | 青木中学校 徒歩8分 (約640m) |
| 現況 | 空 | 引渡 | 相談 |
| 管理費 | 9,920円/月 | 修繕積立金 | 10,800円/月 |
| その他費用 | |||
| 周辺環境 | スギドラッグ 中青木店 徒歩4分 (約260m) ベルク 中青木店 徒歩4分 (約260m) サンライズ中青木医療モール 徒歩4分 (約260m) やまや 青木店 徒歩4分 (約260m) 小坂医院 徒歩4分 (約260m) 川口市立青木中央小学校 徒歩4分 (約260m) 中青木公園 徒歩5分 (約380m) 青木信用金庫 本店 徒歩6分 (約460m) 埼玉県立川口高等技術専門校 徒歩5分 (約370m) セブンイレブン 川口青木中学校前店 徒歩5分 (約380m) |
||
| 備考 | |||
| 物件番号 | 4370390 | 取引態様 | 媒介 |
取扱店舗情報
ハウスドゥ 鳩ヶ谷坂下町 株式会社ウェルカムホーム 店舗詳細ページへ
| 電話番号 | 048-242-5180 |
|---|---|
| 所在地 | 〒334-0003 埼玉県川口市坂下町3丁目32-21 |
| 営業時間 | 9:00~18:00 |
| 定休日 | 火曜日、水曜日、年末年始 |
| 宅建免許番号 | 埼玉県知事(1)第25389号 |
| アクセス | 店舗への地図はこちら |

来店ご予約
埼玉県川口市で価格が似ている物件はこちら
- 埼玉県
マイページ物件数 - 3,137件
最近見た物件
-
-

-
- 中古一戸建て
- 2,650万円
-
豊橋市多米東町3丁目
-
「多米東町二丁目」停 徒歩
-
-
-

-
- 事業用
- 6,480万円
-
大阪市阿倍野区王子町1丁目
-
大阪市谷町線阿倍野
-
-
-

-
- 中古一戸建て
- 1,180万円
-
泉佐野市中庄
-
南海電鉄本線泉佐野
-
埼玉県中古マンション新着物件
-
-

-
- 中古マンション
- 880万円
-
上尾市本町2丁目
-
JR高崎線上尾駅
-
-
-

-
- 中古マンション
- 1,580万円
-
川口市上青木1丁目
-
JR京浜東北・根岸線西川口駅
-
-
-

-
- 収益
- 600万円
-
川口市上青木1丁目
-
JR京浜東北・根岸線西川口駅
-
-
-

-
- 中古マンション
- 4,290万円
-
越谷市赤山町3丁目
-
東武伊勢崎・大師線越谷駅
-
-
-

-
- 中古マンション
- 3,980万円
-
川口市南鳩ヶ谷4丁目
-
埼玉高速鉄道南鳩ヶ谷駅
-
-
-

-
- 中古マンション
- 3,090万円
-
さいたま市北区宮原町2丁目
-
埼玉新都市交通東宮原駅
-
-
-

-
- 中古マンション
- 1,490万円
-
川越市岸町2丁目
-
東武東上線川越駅
-
- お近くの店舗を探す
-
おすすめ物件
-
-

-
- 中古マンション
- 4,799万円
-
川口市末広1丁目
-
埼玉高速鉄道川口元郷
-
-
-

-
- 中古マンション
- 510万円
-
越谷市赤山町1丁目
-
東武伊勢崎・大師線越谷
-
-
-

-
- 中古マンション
- 2,180万円
-
川口市末広1丁目
-
埼玉高速鉄道川口元郷
-
-
-

-
- 中古マンション
- 3,098万円
-
川口市本町4丁目
-
JR京浜東北・根岸線川口
-
-
-

-
- 中古マンション
- 2,980万円
-
川口市弥平1丁目
-
埼玉高速鉄道川口元郷
-
-
-

-
- 中古マンション
- 2,290万円
-
さいたま市北区日進町1丁目
-
JR東北本線大宮
-
-
-

-
- 中古マンション
- 3,150万円
-
吉川市大字保
-
JR武蔵野線吉川
-
-
-

-
- 中古マンション
- 2,690万円
-
越谷市南越谷4丁目
-
東武伊勢崎・大師線新越谷
-
-
-

-
- 中古マンション
- 2,890万円
-
さいたま市北区櫛引町2丁目
-
埼玉新都市交通鉄道博物館(大成)
-
-
-

-
- 中古マンション
- 4,199万円
-
戸田市上戸田2丁目
-
JR埼京線戸田公園
-






担当エージェント:富重 隆文
お客様に「寄り添う」会社です。不動産の購入は金額も大きく、不安なことがたくさんあると思います。ぜひ、一度ご連絡ください。不動産に関するプロとして、お客様の課題に一つ一つ向き合っていきます。