セルシオシティ鳴海 名古屋市緑区鳴海町字乙子山の中古マンション
掲載情報更新日:2026年01月26日 次回更新予定日:2026年02月09日
- 3,499万円
-
- 借入ご希望金額
万円 - 借入期間
年 - 借入金利
% - 月々のお支払い金額
円
- 借入ご希望金額
※ 月々のお支払例は目安の試算となりますので、実際の金額とは異なる場合がございます。詳しくは店舗までお問合わせください。
- 名古屋市緑区鳴海町字乙子山
-
名鉄名古屋本線『鳴海』 徒歩17分 (約1360m)
名鉄名古屋本線『本星崎』 徒歩23分 (約1840m)
名古屋市桜通線『野並』 徒歩26分 (約2080m)
名古屋市緑区鳴海町字乙子山マンション | 物件情報
物件の設備
- バルコニー
物件の特徴
- 管理人巡回
- 2沿線利用可
- 3沿線以上利用可
- 即入居可
物件詳細情報
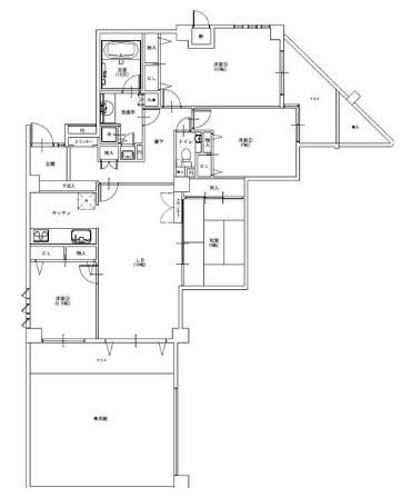
| 価格 | 3,499万円 | 間取り | 4LDK |
|---|---|---|---|
| 物件種別 | 中古マンション | ||
| 所在地 | 愛知県名古屋市緑区鳴海町字乙子山 | ||
| アクセス |
|
||
| 専有面積 | 壁芯 109.37㎡ | 所在階 | 3階建/1階部分 |
| 主要採光 | バルコニー | 15.71㎡ | |
| その他 | |||
| 権利 | 所有権 |
||
| 保証・評価 | |||
| リフォーム | |||
| 総戸数 | 53戸 | 面積 | |
| 築年月 | 2001年(平成13年)02月築 | 建物構造 | RC |
| 施工会社 | |||
| 管理会社 | 管理方式 | 全部委託 巡回管理 | |
| 駐車場 | 【駐車場】空有 料金:7,000円/月 |
||
| 都市計画 | 用途地域 | ||
| 建ぺい/容積率 | 土地国土法 | ||
| 法令制限 | |||
| 小学区 | 片平小学校 徒歩6分 (約450m) | 中学区 | 千鳥丘中学校 徒歩9分 (約700m) |
| 現況 | 空 | 引渡 | 即 |
| 管理費 | 7,100円/月 | 修繕積立金 | 10,400円/月 |
| その他費用 | |||
| 備考 | ●なるぱーく鳴海まで約1126m 徒歩約15分 ●セブンイレブン名古屋鳴海町薬師山店まで約327m 徒歩約4分 ●鳴海みその園まで約473m 徒歩約6分 |
||
| 物件番号 | 4372716 | 取引態様 | 媒介 |
取扱店舗情報
ハウスドゥ 緑区鳴海駅前 株式会社エム・ケイ 店舗詳細ページへ
| 電話番号 | 052-825-3531 |
|---|---|
| 所在地 | 〒458-0835 愛知県名古屋市緑区鳴海町上汐田17番地 阪野ビル1階 |
| 営業時間 | 9:30~18:30 |
| 定休日 | 火曜日・水曜日 |
| 宅建免許番号 | 愛知県知事(3)第23053号 |
| アクセス | 店舗への地図はこちら |

来店ご予約
愛知県名古屋市緑区で価格が似ている物件はこちら
- 愛知県
マイページ物件数 - 32,157件
最近見た物件
-
-

-
- 中古マンション
- 1,680万円
-
豊中市西緑丘3丁目
-
大阪モノレール少路
-
愛知県中古マンション新着物件
-
-

-
- 中古マンション
- 1,900万円
-
一宮市奥町字下口西
-
名鉄尾西線奥町駅
-
-
-

-
- 中古マンション
- 1,900万円
-
一宮市奥町字下口西
-
名鉄尾西線奥町駅
-
-
-

-
- 中古マンション
- 1,090万円
-
知多郡東浦町大字緒川字稗田
-
JR武豊線緒川駅
-
-
-

-
- 中古マンション
- 298万円
-
名古屋市港区港陽3丁目
-
名古屋市名港線築地口駅
-
-
-

-
- 中古マンション
- 1,590万円
-
春日井市出川町7丁目
-
JR中央本線神領駅
-
-
-

-
- 中古マンション
- 498万円
-
名古屋市緑区有松町大字桶狭間字生山
-
名鉄名古屋本線有松駅
-
-
-

-
- 中古マンション
- 1,680万円
-
豊田市田中町4丁目
-
名鉄豊田線豊田市駅
-
- お近くの店舗を探す
-
おすすめ物件
-
-

-
- 中古マンション
- 1,380万円
-
名古屋市中川区山王2丁目
-
JR東海道本線尾頭橋
-
-
-

-
- 中古マンション
- 2,200万円
-
名古屋市港区稲永4丁目
-
名古屋臨海高速鉄道稲永
-
-
-

-
- 中古マンション
- 5,380万円
-
名古屋市東区泉3丁目
-
名古屋市桜通線高岳
-
-
-

-
- 中古マンション
- 2,990万円
-
名古屋市守山区守山1丁目
-
名鉄瀬戸線守山自衛隊前
-
-
-

-
- 中古マンション
- 2,140万円
-
海部郡蟹江町大字蟹江新田字下山
-
近鉄名古屋線近鉄蟹江
-
-
-

-
- 中古マンション
- 298万円
-
名古屋市緑区黒沢台1丁目
-
名古屋市桜通線神沢
-
-
-

-
- 中古マンション
- 1,980万円
-
小牧市堀の内4丁目
-
名鉄小牧線小牧
-
-
-

-
- 中古マンション
- 1,780万円
-
名古屋市港区川間町3丁目
-
名古屋臨海高速鉄道港北
-
-
-

-
- 中古マンション
- 1,350万円
-
岡崎市柱町字東荒子
-
JR東海道本線岡崎
-
-
-

-
- 中古マンション
- 1,280万円
-
名古屋市中川区西伏屋2丁目
-
JR関西本線春田
-



