ユーベル花小金井 中古マンション 小平市花小金井1丁目の中古マンション
掲載情報更新日:2025年10月27日 次回更新予定日:2025年11月10日
- 6,500万円
-
- 借入ご希望金額
万円 - 借入期間
年 - 借入金利
% - 月々のお支払い金額
円
- 借入ご希望金額
※ 月々のお支払例は目安の試算となりますので、実際の金額とは異なる場合がございます。詳しくは店舗までお問合わせください。
- 小平市花小金井1丁目
-
西武新宿線『花小金井』 徒歩5分 (約400m)
小平市花小金井1丁目マンション | 物件情報
西武新宿線「花小金井」駅徒歩5分!オーナーチェンジ物件!
物件詳細情報
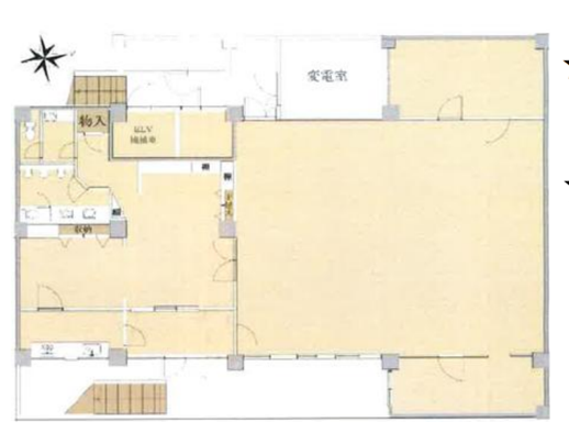
| 価格 | 6,500万円 | 間取り | 3LDK |
|---|---|---|---|
| 物件種別 | 中古マンション | ||
| 所在地 | 東京都小平市花小金井1丁目 | ||
| アクセス |
|
||
| 専有面積 | 249.87㎡ | 所在階 | 5階建 |
| 主要採光 | バルコニー | ||
| その他 | |||
| 権利 | 所有権 |
||
| 保証・評価 | |||
| リフォーム | |||
| 総戸数 | 面積 | ||
| 築年月 | 1989年(平成1年)11月築 | 建物構造 | RC |
| 施工会社 | |||
| 管理会社 | 株式会社東急コミュニティー | 管理方式 | 全部委託 なし(不在) |
| 駐車場 | |||
| 都市計画 | 用途地域 | 1種中高 | |
| 建ぺい/容積率 | 土地国土法 | ||
| 法令制限 | |||
| 小学区 | 第五小学校 徒歩9分 (約700m) | 中学区 | 花小金井南中学校 徒歩4分 (約250m) |
| 現況 | 賃貸中 | 引渡 | 相談 |
| 管理費 | 63,900円/月 | 修繕積立金 | 43,440円/月 |
| その他費用 | |||
| 周辺環境 | 花小金井ふれあい第1公園 徒歩2分 (約110m) りんどう幼稚園 徒歩2分 (約160m) コインランドリー/ピエロ花小金井店 徒歩2分 (約160m) 花小金井薬局 徒歩4分 (約260m) 花小金井駅前郵便局 徒歩3分 (約240m) いなげや花小金井駅前店 徒歩4分 (約270m) 三井住友銀行 花小金井支店 徒歩5分 (約340m) ファミリーマート 花小金井駅北口店 徒歩5分 (約340m) 小平市立小平第五小学校 徒歩8分 (約610m) |
||
| 備考 | ※オーナーチェンジ物件 ※現状賃料:月額38万円 ※表面利回り:約7.2% |
||
| 物件番号 | 4377738 | 取引態様 | 媒介 |
取扱店舗情報
ハウスドゥ 国分寺本町4丁目 株式会社エンジョイパパ 店舗詳細ページへ
| 電話番号 | 042-313-9555 |
|---|---|
| 所在地 | 〒185-0012 東京都国分寺市本町4丁目3番16号サンクレストビル101 |
| 営業時間 | 10:00~14:00 |
| 定休日 | 水曜日、土曜日、日曜日 |
| 宅建免許番号 | 東京都知事(1)第111593号 |
| アクセス | 店舗への地図はこちら |

来店ご予約
- 東京都
マイページ物件数 - 5,476件
最近見た物件
-
-

-
- 中古マンション
- 2,999万円
-
大阪市生野区勝山南2丁目
-
JR大阪環状線桃谷
-
-
-

-
- 中古マンション
- 4,780万円
-
足立区綾瀬6丁目
-
東京メトロ千代田線綾瀬
-
-
-

-
- 中古マンション
- 3,600万円
-
荒川区東日暮里5丁目
-
JR山手線日暮里
-
東京都中古マンション新着物件
- お近くの店舗を探す
-
おすすめ物件
-
-

-
- 中古マンション
- 7,990万円
-
大田区大森北5丁目
-
JR京浜東北・根岸線大森
-
-
-

-
- 中古マンション
- 2,480万円
-
葛飾区東金町1丁目
-
JR千代田・常磐緩行線金町
-
-
-

-
- 中古マンション
- 6,490万円
-
台東区蔵前4丁目
-
都営浅草線蔵前
-
-
-

-
- 中古マンション
- 4,199万円
-
葛飾区南水元1丁目
-
JR千代田・常磐緩行線金町
-
-
-

-
- 中古マンション
- 1,390万円
-
青梅市千ヶ瀬町1丁目
-
JR青梅線河辺
-
-
-

-
- 中古マンション
- 6,698万円
-
江戸川区中葛西2丁目
-
東京メトロ東西線葛西
-
-
-

-
- 中古マンション
- 3,680万円
-
千葉市中央区千葉港
-
千葉都市モノレール市役所前
-
-
-

-
- 中古マンション
- 1億1,490万円
-
台東区東上野5丁目
-
東京メトロ銀座線稲荷町
-
-
-

-
- 中古マンション
- 1億1,800万円
-
大田区下丸子2丁目
-
東急多摩川線下丸子
-
-
-

-
- 中古マンション
- 1,790万円
-
足立区東和5丁目
-
東京メトロ千代田線北綾瀬
-





