鳴海グランドハイツD棟 名古屋市緑区大将ケ根2丁目の中古マンション
掲載情報更新日:2025年10月02日 次回更新予定日:2025年10月16日
- 780万円
-
- 借入ご希望金額
万円 - 借入期間
年 - 借入金利
% - 月々のお支払い金額
円
- 借入ご希望金額
※ 月々のお支払例は目安の試算となりますので、実際の金額とは異なる場合がございます。詳しくは店舗までお問合わせください。
- 名古屋市緑区大将ケ根2丁目
-
名鉄名古屋本線『中京競馬場前』 徒歩5分 (約400m)
名鉄名古屋本線『有松』 徒歩17分 (約1360m)
名鉄名古屋本線『前後』 徒歩26分 (約2080m)
名古屋市緑区大将ケ根2丁目マンション | 物件情報
物件の設備
- フローリング張替
- バルコニー
- 南面バルコニー
物件の特徴
- 管理人日勤
- 内装リフォーム済
- 角部屋
- 小学校徒歩10分以内
- 閑静な住宅街
- 周辺交通量少なめ
- 高台に立地
物件詳細情報
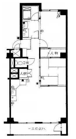
価格 | 780万円 | 間取り | 3DK |
---|---|---|---|
物件種別 | 中古マンション | ||
所在地 | 愛知県名古屋市緑区大将ケ根2丁目 | ||
アクセス |
|
||
専有面積 | 壁芯 56.86㎡ | 所在階 | 4階建/2階部分 |
主要採光 | 南向 | バルコニー | 南向6.00㎡ |
その他 | |||
権利 | 所有権 |
||
保証・評価 | |||
リフォーム | 【水回り】2025年08月 キッチン・トイレ 【内装】2025年08月 床 ・他[壁] |
||
総戸数 | 面積 | ||
築年月 | 1976年(昭和51年)03月築 | 建物構造 | RC |
施工会社 | |||
管理会社 | 日本ハウズイング㈱ | 管理方式 | 全部委託 日勤管理 |
駐車場 | 【駐車場】空有 料金:4,500円/月 |
||
都市計画 | 用途地域 | ||
建ぺい/容積率 | 土地国土法 | ||
法令制限 | |||
小学区 | 太子小学校 徒歩7分 (約554m) | 中学区 | 東陵中学校 徒歩24分 (約1903m) |
現況 | 空 | 引渡 | 相談 |
管理費 | 6,540円/月 | 修繕積立金 | 8,900円/月 |
その他費用 | |||
備考 | 名古屋境松郵便局まで約350m(徒歩約5分) セブンイレブン中京競馬場駅前店まで約400m(徒歩約5分) ファミリーマート緑境松店まで約650m(徒歩約9分) イオン有松店まで約1300m(徒歩約17分) |
||
物件番号 | 4379941 | 取引態様 | 媒介 |
取扱店舗情報
ハウスドゥ 緑区鳴海駅前 株式会社エム・ケイ 店舗詳細ページへ
電話番号 | 052-825-3531 |
---|---|
所在地 | 〒458-0835 愛知県名古屋市緑区鳴海町上汐田17番地 阪野ビル1階 |
営業時間 | 9:30~18:30 |
定休日 | 火曜日・水曜日 |
宅建免許番号 | 愛知県知事(3)第23053号 |
アクセス | 店舗への地図はこちら |
来店ご予約
愛知県名古屋市緑区で価格が似ている物件はこちら
- 愛知県
マイページ物件数 - 30,534件
愛知県中古マンション新着物件
-
-
-
- 中古マンション
- 3,180万円
-
稲沢市下津北山1丁目
-
JR東海道本線稲沢駅
-
-
-
-
- 中古マンション
- 2,090万円
-
豊田市広久手町3丁目
-
愛知環状鉄道新豊田駅
-
-
-
-
- 中古マンション
- 4,680万円
-
名古屋市北区柳原3丁目
-
名古屋市名城線名城公園駅
-
-
-
-
- 中古マンション
- 1,598万円
-
名古屋市名東区貴船1丁目
-
名古屋市東山線上社駅
-
-
-
-
- 中古マンション
- 2,155万円
-
名古屋市千種区菊坂町2丁目
-
名古屋市東山線覚王山駅
-
-
-
-
- 中古マンション
- 3,190万円
-
名古屋市南区豊田2丁目
-
名鉄常滑線道徳駅
-
-
-
-
- 中古マンション
- 2,200万円
-
豊田市田中町4丁目
-
名鉄豊田線豊田市駅
-
- お近くの店舗を探す
-
おすすめ物件
-
-
-
- 中古マンション
- 1,180万円
-
瀬戸市下陣屋町
-
名鉄瀬戸線瀬戸市役所前
-
-
-
-
- 中古マンション
- 1,200万円
-
尾張旭市瀬戸川町1丁目
-
名鉄瀬戸線三郷
-
-
-
-
- 中古マンション
- 1,850万円
-
豊田市前山町3丁目
-
愛知環状鉄道三河豊田
-
-
-
-
- 中古マンション
- 690万円
-
名古屋市千種区竹越1丁目
-
名古屋市名城線茶屋ヶ坂
-
-
-
-
- 中古マンション
- 2,180万円
-
名古屋市港区木場町
-
名古屋市名港線港区役所
-
-
-
-
- 中古マンション
- 1,430万円
-
名古屋市熱田区六番3丁目
-
名古屋市名港線六番町
-
-
-
-
- 中古マンション
- 2,080万円
-
蒲郡市中央本町
-
JR東海道本線蒲郡
-
-
-
-
- 中古マンション
- 888万円
-
名古屋市緑区大将ケ根2丁目
-
名鉄名古屋本線中京競馬場前
-
-
-
-
- 中古マンション
- 1,050万円
-
岡崎市大西町字仁田
-
名鉄名古屋本線男川
-
-
-
-
- 中古マンション
- 1,380万円
-
豊田市秋葉町7丁目
-
名鉄豊田線豊田市
-