ダイアパレス川口新井宿 川口市大字新井宿の中古マンション
掲載情報更新日:2025年10月27日 次回更新予定日:2025年11月10日
- 4,490万円
-
- 借入ご希望金額
万円 - 借入期間
年 - 借入金利
% - 月々のお支払い金額
円
- 借入ご希望金額
※ 月々のお支払例は目安の試算となりますので、実際の金額とは異なる場合がございます。詳しくは店舗までお問合わせください。
- 川口市大字新井宿
-
埼玉高速鉄道『新井宿』 徒歩11分 (約850m)
川口市大字新井宿マンション | 物件情報
令和7年10月末リフォーム完了予定☆11階建ての5階部分、眺望・陽当たり・通風良好!ペット飼育可
総戸数188戸の大規模マンション★
◆5階部分につき眺望・陽当たり・通風良好!
◆令和7年10月末リフォーム完了予定
物件の設備
- 公営水道
- 都市ガス
- 給湯
- 浄水器
- 食器洗浄乾燥機
- ガスコンロ付
- システムキッチン
- 追焚機能
- 浴室乾燥機
- 温水洗浄便座
- 室内洗濯機置場
- エアコン
- 照明器具
- CATVインターネット
- ディンプルキー
- モニタ付インターホン
- モニタ付オートロック
- フローリング
- ウォークインクローゼット
- 共用パーティールーム
- 宅配BOX
- エレベーター
物件の特徴
- 管理人日勤
- ペット相談
- ペット対応
- コンシェルジュサービス
物件詳細情報
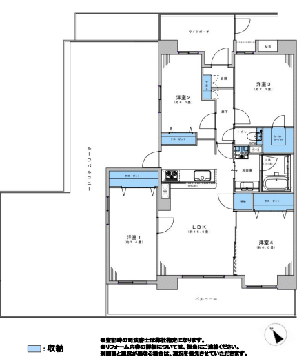
| 価格 | 4,490万円 | 間取り | 4LDK |
|---|---|---|---|
| 物件種別 | 中古マンション | ||
| 所在地 | 埼玉県川口市大字新井宿 | ||
| アクセス |
|
||
| 専有面積 | 壁芯 90.05㎡ | 所在階 | 10階建/5階部分 |
| 主要採光 | 南西向 | バルコニー | |
| その他 | |||
| 権利 | 所有権 |
||
| 保証・評価 | |||
| リフォーム | 【その他】2025年10月 リフォーム内容( 2025年10月末完成予定) ・フローリング新規貼 ・キッチン(タカラスタンダード製)新規交換 ・トイレ( TOTO製)新規交換 ・ユニットバス(積水製)新規交換 ・洗面台( Panasonic製)新規交換 ・建具新規交換 ・防水パン/洗濯水栓交換 ・天井・壁クロス新規張替 ハウスクリーニング など |
||
| 総戸数 | 188戸 | 面積 | |
| 築年月 | 2003年(平成15年)03月築 | 建物構造 | SRC (一部 RC ) |
| 施工会社 | 三平建設 | ||
| 管理会社 | 東急コミュニティー | 管理方式 | 全部委託 日勤管理 |
| 駐車場 | |||
| 都市計画 | 用途地域 | 1種住居 | |
| 建ぺい/容積率 | 土地国土法 | ||
| 法令制限 | |||
| 小学区 | 神根東小学校 徒歩28分 (約2220m) | 中学区 | 神根中学校 徒歩28分 (約2220m) |
| 現況 | 空 | 引渡 | 相談 |
| 管理費 | 16,700円/月 | 修繕積立金 | 14,580円/月 |
| その他費用 | |||
| 周辺環境 | ドン・キホーテ 川口新井宿店 徒歩5分 (約340m) 埼玉県立川口高等学校 徒歩3分 (約180m) セブンイレブン川口西新井宿店 徒歩6分 (約460m) かわぐち新井宿透析クリニック 徒歩5分 (約330m) スギドラッグ川口西新井宿店 徒歩11分 (約840m) 川口市立里保育所 徒歩9分 (約690m) 鳩ヶ谷桜町郵便局 徒歩9分 (約710m) 新井宿駅 徒歩11分 (約850m) メディカルガーデン川口 徒歩9分 (約670m) apollostationセルフ川口ジャンクション 徒歩11分 (約850m) |
||
| 備考 | |||
| 物件番号 | 4381222 | 取引態様 | 媒介 |
取扱店舗情報
ハウスドゥ 鳩ヶ谷坂下町 株式会社ウェルカムホーム 店舗詳細ページへ
| 電話番号 | 048-242-5180 |
|---|---|
| 所在地 | 〒334-0003 埼玉県川口市坂下町3丁目32-21 |
| 営業時間 | 9:00~18:00 |
| 定休日 | 火曜日、水曜日、年末年始 |
| 宅建免許番号 | 埼玉県知事(1)第25389号 |
| アクセス | 店舗への地図はこちら |

来店ご予約
埼玉県川口市で価格が似ている物件はこちら
- 埼玉県
マイページ物件数 - 3,583件
最近見た物件
-
-

-
- 中古一戸建て
- 2,349万円
-
米子市旗ヶ崎1丁目
-
JR境線三本松口
-
-
-

-
- 中古マンション
- 1,480万円
-
川口市大字安行領根岸
-
埼玉高速鉄道新井宿
-
-
-

-
- 中古一戸建て
- 1,850万円
-
豊川市大崎町宮之坪
-
名鉄豊川線諏訪町
-
埼玉県中古マンション新着物件
- お近くの店舗を探す
-
おすすめ物件
-
-

-
- 中古マンション
- 2,480万円
-
さいたま市緑区大字大間木
-
JR武蔵野線東浦和
-
-
-

-
- 中古マンション
- 2,390万円
-
越谷市蒲生寿町
-
東武伊勢崎・大師線蒲生
-
-
-

-
- 中古マンション
- 940万円
-
上尾市上町1丁目
-
JR高崎線上尾
-
-
-

-
- 中古マンション
- 2,980万円
-
越谷市宮本町1丁目
-
東武伊勢崎・大師線越谷
-
-
-

-
- 中古マンション
- 3,150万円
-
吉川市大字保
-
JR武蔵野線吉川
-
-
-

-
- 中古マンション
- 2,390万円
-
越谷市千間台西5丁目
-
東武伊勢崎・大師線せんげん台
-
-
-

-
- 中古マンション
- 2,999万円
-
さいたま市北区植竹町1丁目
-
東武野田線大宮公園
-
-
-

-
- 中古マンション
- 3,090万円
-
三郷市半田
-
JR武蔵野線新三郷
-
-
-

-
- 中古マンション
- 3,890万円
-
新座市東北1丁目
-
東武東上線志木
-
-
-

-
- 中古マンション
- 1,999万円
-
越谷市谷中町1丁目
-
東武伊勢崎・大師線新越谷
-











担当エージェント:富重 隆文
お客様に「寄り添う」会社です。不動産の購入は金額も大きく、不安なことがたくさんあると思います。ぜひ、一度ご連絡ください。不動産に関するプロとして、お客様の課題に一つ一つ向き合っていきます。