ダイアパレスプラザ本通り 福山市笠岡町の中古マンション
掲載情報更新日:2025年11月21日 次回更新予定日:2025年12月05日
- 1,998万円
-
- 借入ご希望金額
万円 - 借入期間
年 - 借入金利
% - 月々のお支払い金額
円
- 借入ご希望金額
※ 月々のお支払例は目安の試算となりますので、実際の金額とは異なる場合がございます。詳しくは店舗までお問合わせください。
- 福山市笠岡町
-
JR山陽本線『福山』 徒歩9分 (約650m)
福山市笠岡町マンション | 物件情報
☆福山市笠岡町☆~駅近!高層階角部屋!人気エリア中古マンション~
■ 駅近かつ利便性良好!人気エリアの笠岡町!
□ コンビニ、スーパー、飲食店等、周辺商業施設も充実!
■ 高層階角部屋のため通風、陽当り、眺望も抜群!
□ マンションとは思えないほどの豊富な収納力!
■ 福山駅まで徒歩9分の好立地!
【内見の流れ】
〇 お電話にて内見のご希望日時をお知らせください
〇 現地集合・もしくはピックアップいたします
【その他物件のご相談】
ご希望の金額で、エリアで、サイズ、毎月の返済などなど、
お客様のニーズに合った物件を一緒にお探しします。
お電話の方がすぐに対応可能です!
成華公式LINE(@857rnlip)
物件の設備
- カウンターキッチン
- システムキッチン
- バス1坪以上
- 室内洗濯機置場
- 洗髪洗面化粧台
- モニタ付インターホン
- 和室
- 全居室収納
- バルコニー
- 2面バルコニー
- ワイドバルコニー
- 宅配BOX
- エレベーター
物件の特徴
- 管理人日勤
- 角部屋
- 2沿線利用可
- 駅まで平坦
- 小学校徒歩10分以内
- スーパーが近い
- 市街地が近い
- 眺望良好
- 通風良好
- 陽当り良好
- 高層階
物件詳細情報
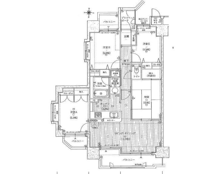
| 価格 | 1,998万円 | 間取り | 4LDK |
|---|---|---|---|
| 物件種別 | 中古マンション | ||
| 所在地 | 広島県福山市笠岡町 | ||
| アクセス |
|
||
| 専有面積 | 壁芯 78.19㎡ | 所在階 | 15階建/13階部分 |
| 主要採光 | 南向 | バルコニー | 13.36㎡ |
| その他 | |||
| 権利 | 所有権 |
||
| 保証・評価 | |||
| リフォーム | |||
| 総戸数 | 70戸 | 面積 | |
| 築年月 | 1998年(平成10年)03月築 | 建物構造 | RC |
| 施工会社 | |||
| 管理会社 | ベッセルテクノサービス | 管理方式 | 全部委託 日勤管理 |
| 駐車場 | |||
| 都市計画 | 市街化区域 |
用途地域 | 商業 |
| 建ぺい/容積率 | 80% / 500% | 土地国土法 | |
| 法令制限 | 防火地域 | ||
| 小学区 | 旭小学校 徒歩9分 (約700m) | 中学区 | 東中学校 徒歩13分 (約1000m) |
| 現況 | 空 | 引渡 | 相談 |
| 管理費 | 10,000円/月 | 修繕積立金 | 10,620円/月 |
| その他費用 | |||
| 周辺環境 | 福山市立東中学校 徒歩13分 (約1000m) | ||
| 備考 | |||
| 物件番号 | 4386345 | 取引態様 | 媒介 |
取扱店舗情報
| 電話番号 | 084-983-0011 |
|---|---|
| 所在地 | 〒721-0955 広島県福山市新涯町5丁目36-1 |
| 営業時間 | 9:30~18:30 |
| 定休日 | 年末年始・GW・夏季休暇 |
| 宅建免許番号 | 広島県知事(1)第11246号 |
| アクセス | 店舗への地図はこちら |

来店ご予約
広島県福山市で価格が似ている物件はこちら
- 広島県
マイページ物件数 - 4,657件
広島県中古マンション新着物件
-
-

-
- 中古マンション
- 2,695万円
-
東広島市西条御条町
-
JR山陽本線西条駅
-
-
-

-
- 中古マンション
- 3,600万円
-
三原市東町2丁目
-
JR山陽本線三原駅
-
-
-

-
- 中古マンション
- 1,280万円
-
東広島市八本松町飯田
-
JR山陽本線八本松駅
-
-
-

-
- 中古マンション
- 5,480万円
-
広島市東区光町2丁目
-
JR山陽本線広島駅
-
-
-

-
- 中古マンション
- 1,680万円
-
福山市南手城町1丁目
-
JR山陽本線福山駅
-
-
-

-
- 中古マンション
- 1,680万円
-
福山市南手城町1丁目
-
JR山陽本線福山駅
-
-
-

-
- 中古マンション
- 1,680万円
-
福山市南手城町1丁目
-
JR山陽本線福山駅
-
- お近くの店舗を探す
-
おすすめ物件
-
-

-
- 中古マンション
- 2,000万円
-
三原市館町2丁目
-
JR山陽新幹線三原
-
-
-

-
- 中古マンション
- 2,400万円
-
福山市神辺町大字新道上
-
JR福塩線道上
-









