ジェイパーク北千住モナクレイス 足立区千住曙町の中古マンション
掲載情報更新日:2025年10月23日 次回更新予定日:2025年11月06日
- 5,099万円
-
- 借入ご希望金額
万円 - 借入期間
年 - 借入金利
% - 月々のお支払い金額
円
- 借入ご希望金額
※ 月々のお支払例は目安の試算となりますので、実際の金額とは異なる場合がございます。詳しくは店舗までお問合わせください。
- 足立区千住曙町
-
東武伊勢崎・大師線『堀切』 徒歩3分 (約220m)
京成本線『京成関屋』 徒歩7分 (約550m)
JR常磐線『北千住』 徒歩18分 (約1410m)
足立区千住曙町マンション | 物件情報
「堀切」駅徒歩2分の好立地!ペットと暮らせるリフォーム済み2SLDK。充実設備で快適な新生活を。
♪♪朝9時から対応可能♪♪
◎急な見学でも可能な限り対応させていただきます!◎
■大切なペットと一緒に暮らせるのも嬉しいポイントです(規約による制限あり)。
■北千住の利便性を享受する立地に、リフォーム済みの2SLDK物件が登場。
■全居室6帖以上を確保したゆとりの間取りで、快適な居住空間を提供。
■食洗機付き対面キッチンは、お料理中もご家族との会話が弾みます。
■追焚機能、浴室乾燥機も完備しており、日々の暮らしをサポート。
スーパーや小学校も近く、生活施設が充実しています。ぜひ一度、ご内覧ください。
物件の設備
- 公営水道
- 下水道
- 公共下水
- 都市ガス
- 給湯
- 食器洗浄乾燥機
- コンロ三口
- グリル
- ガスコンロ付
- カウンターキッチン
- システムキッチン
- バス
- オートバス
- 追焚機能
- 浴室暖房
- 浴室乾燥機
- シャワー
- トイレ
- 温水洗浄便座
- B/T別室
- 室内洗濯機置場
- 洗髪洗面化粧台
- 洗面所独立
- オートロック
- モニタ付インターホン
- LDK18畳以上
- 和室
- 全居室6畳以上
- フローリング
- 全室フローリング
- 一部フローリング
- クローゼット
- ウォークインクローゼット
- 押入
- 全居室収納
- シューズボックス
- バルコニー
- 南面バルコニー
- キッズルーム
- 共用パーティールーム
- エレベーター
- 駐輪場
物件の特徴
- 管理人日勤
- 2沿線利用可
- 駅まで平坦
- 総合病院徒歩10分以内
- 小学校徒歩10分以内
- 緑豊かな住宅地
- スーパーが近い
- 閑静な住宅街
- 周辺交通量少なめ
- 市街地が近い
- 陽当り良好
- 外観タイル張
- ペット相談
- ペット対応
物件詳細情報
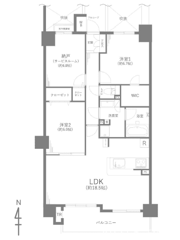
| 価格 | 5,099万円 | 間取り | 2LDK+S |
|---|---|---|---|
| 物件種別 | 中古マンション | ||
| 所在地 | 東京都足立区千住曙町 | ||
| アクセス |
|
||
| 専有面積 | 壁芯 83.00㎡ | 所在階 | 10階建/3階部分 |
| 主要採光 | 南向 | バルコニー | 南向9.23㎡ |
| その他 | |||
| 権利 | 旧法地上権 借地料15510円/月 期限2040年12月20日 |
||
| 保証・評価 | |||
| リフォーム | |||
| 総戸数 | 89戸 | 面積 | |
| 築年月 | 2000年(平成12年)11月築 | 建物構造 | RC |
| 施工会社 | ㈱長谷工コーポレーション | ||
| 管理会社 | MMSマンションマネージメントサービス | 管理方式 | 全部委託 日勤管理 |
| 駐車場 | 【駐車場】空有 料金帯:21,000円/月~25,000円/月 【駐輪場】空有 |
||
| 都市計画 | 用途地域 | 準工業 | |
| 建ぺい/容積率 | 土地国土法 | ||
| 法令制限 | |||
| 小学区 | 千寿第八小学校 徒歩15分 (約1190m) | 中学区 | 千寿桜堤中学校 徒歩15分 (約1200m) |
| 現況 | 空 | 引渡 | 相談 |
| 管理費 | 5,950円/月 | 修繕積立金 | 15,300円/月 |
| その他費用 | 区分所有者変更手数料:50000円 借地料15510円/月 期限2040年12月20日 |
||
| 周辺環境 | 柳原病院 徒歩2分 (約150m) セブン-イレブン 足立千住曙町店 徒歩3分 (約240m) ダイエー 千住曙町 徒歩3分 (約240m) マツモトキヨシ千住曙町店 徒歩4分 (約270m) 足立郵便局 徒歩7分 (約520m) 堀切駅西口 徒歩3分 (約220m) 京成関屋駅 徒歩7分 (約550m) 北千住駅 出入口1 徒歩18分 (約1410m) 千寿第八小学校 徒歩15分 (約1190m) 足立区立千寿桜堤中学校 徒歩15分 (約1200m) |
||
| 備考 | ・柳原病院まで徒歩2分(約150m) ・セブン-イレブン 足立千住曙町店まで徒歩3分(約240m) ・ダイエー 千住曙町まで徒歩3分(約240m) ・マツモトキヨシ千住曙町店まで徒歩4分(約270m) ・足立郵便局まで徒歩7分(約520m) ・堀切駅西口まで徒歩3分(約220m) ・京成関屋駅まで徒歩7分(約550m) ・北千住駅 出入口1まで徒歩18分(約1410m) ・千寿第八小学校まで徒歩15分(約1190m) ・足立区立千寿桜堤中学校まで徒歩15分(約1200m) |
||
| 物件番号 | 4401178 | 取引態様 | 媒介 |
取扱店舗情報
ハウスドゥ 千住曙町 株式会社カクシンライフ 店舗詳細ページへ
| 電話番号 | 03-6806-2375 |
|---|---|
| 所在地 | 〒120-0023 東京都足立区千住曙町37-33 |
| 営業時間 | 9:30~18:30 |
| 定休日 | 火曜日・水曜日・年末年始 |
| 宅建免許番号 | 東京都知事(1)第109143号 |
| アクセス | 店舗への地図はこちら |

来店ご予約
東京都足立区で価格が似ている物件はこちら
- 東京都
マイページ物件数 - 5,476件
最近見た物件
-
-

-
- 中古マンション
- 4,780万円
-
足立区千住曙町
-
東武伊勢崎・大師線堀切
-
-
-

-
- 中古マンション
- 3,600万円
-
荒川区東日暮里5丁目
-
JR山手線日暮里
-
-
-

-
- 中古マンション
- 6,180万円
-
江東区清澄2丁目
-
都営大江戸線清澄白河
-
東京都中古マンション新着物件
- お近くの店舗を探す
-
おすすめ物件
-
-

-
- 中古マンション
- 7,990万円
-
大田区大森北5丁目
-
JR京浜東北・根岸線大森
-
-
-

-
- 中古マンション
- 1,980万円
-
葛飾区柴又5丁目
-
北総鉄道新柴又
-
-
-

-
- 中古マンション
- 1億4,990万円
-
世田谷区経堂5丁目
-
小田急小田原線千歳船橋
-
-
-

-
- 中古マンション
- 4,299万円
-
世田谷区砧2丁目
-
小田急小田原線千歳船橋
-
-
-

-
- 中古マンション
- 3,490万円
-
調布市多摩川3丁目
-
京王相模原線京王多摩川
-
-
-

-
- 中古マンション
- 4,398万円
-
足立区谷在家3丁目
-
日暮里舎人ライナー谷在家
-
-
-

-
- 中古マンション
- 3,799万円
-
小平市大沼町6丁目
-
西武新宿線小平
-
-
-

-
- 中古マンション
- 2,060万円
-
葛飾区新宿1丁目
-
JR千代田・常磐緩行線金町
-
-
-

-
- 中古マンション
- 1億3,990万円
-
台東区上野桜木1丁目
-
東京メトロ千代田線根津
-
-
-

-
- 中古マンション
- 4,290万円
-
調布市多摩川1丁目
-
京王相模原線京王多摩川
-





























担当エージェント:伊藤 丈博
駅からのアクセスが良く、周辺環境も充実、ファミリー層にもおすすめです。室内は美しくリフォームされており、すぐに新生活を始められます。ペットと一緒に穏やかな時間を過ごせる、そんな魅力が詰まった一戸です。