ラミーユ勝田台ハイライズ・イーストヒル 八千代市村上の中古マンション
掲載情報更新日:2025年11月03日 次回更新予定日:2025年11月17日
- 3,480万円
-
- 借入ご希望金額
万円 - 借入期間
年 - 借入金利
% - 月々のお支払い金額
円
- 借入ご希望金額
※ 月々のお支払例は目安の試算となりますので、実際の金額とは異なる場合がございます。詳しくは店舗までお問合わせください。
- 八千代市村上
-
東葉高速鉄道『村上』 徒歩9分 (約720m)
東葉高速鉄道『東葉勝田台』 徒歩13分 (約1040m)
八千代市村上マンション | 物件情報
物件の特徴
- 管理人日勤
物件詳細情報
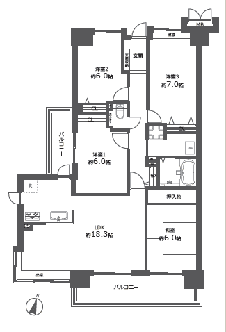
| 価格 | 3,480万円 | 間取り | 4LDK |
|---|---|---|---|
| 物件種別 | 中古マンション | ||
| 所在地 | 千葉県八千代市村上 | ||
| アクセス |
|
||
| 専有面積 | 壁芯 93.68㎡ | 所在階 | 8階建 |
| 主要採光 | バルコニー | ||
| その他 | |||
| 権利 | 所有権 |
||
| 保証・評価 | |||
| リフォーム | |||
| 総戸数 | 面積 | ||
| 築年月 | 1997年(平成9年)03月築 | 建物構造 | RC |
| 施工会社 | |||
| 管理会社 | 株式会社日鉄コミュニティ | 管理方式 | 全部委託 日勤管理 管理組合あり |
| 駐車場 | 【駐車場】空有 |
||
| 都市計画 | 用途地域 | ||
| 建ぺい/容積率 | 土地国土法 | ||
| 法令制限 | |||
| 小学区 | 村上東小学校 徒歩6分 (約430m) | 中学区 | |
| 現況 | 空 | 引渡 | 期日指定:2025年10月上旬 |
| 管理費 | 9,110円/月 | 修繕積立金 | 26,230円/月 |
| その他費用 | |||
| 周辺環境 | ファミリーマート八千代村上店 徒歩4分 (約270m) セブンイレブン八千代村上団地入口店 徒歩4分 (約280m) 八千代市立 村上東小学校 徒歩6分 (約430m) ヨークマート八千代村上店 徒歩8分 (約590m) 八千代市立村上東中学校 徒歩8分 (約640m) ローソン村上駅前店 徒歩10分 (約740m) 村上駅 徒歩10分 (約790m) ジョイフル本田 八千代店 徒歩13分 (約980m) フルルガーデン八千代 徒歩11分 (約850m) イトーヨーカドー 八千代店 徒歩11分 (約850m) |
||
| 備考 | ・ペット飼育可(ペット飼育時に近隣住戸に同意書必要あり) | ||
| 物件番号 | 4404023 | 取引態様 | 媒介 |
取扱店舗情報
ハウスドゥ 薬園台駅前 合同会社ネクステージ 店舗詳細ページへ
| 電話番号 | 047-401-0440 |
|---|---|
| 所在地 | 〒274-0077 千葉県船橋市薬円台6丁目5-1 |
| 営業時間 | 10:00~18:00 |
| 定休日 | 火曜日、水曜日 |
| 宅建免許番号 | 千葉県知事(1)第18892号 |
| アクセス | 店舗への地図はこちら |

来店ご予約
- 千葉県
マイページ物件数 - 2,818件
最近見た物件
千葉県中古マンション新着物件
- お近くの店舗を探す
-
おすすめ物件
-
-

-
- 中古マンション
- 650万円
-
船橋市緑台1丁目
-
京成電鉄松戸線高根公団
-
-
-

-
- 中古マンション
- 1,250万円
-
松戸市松戸新田
-
JR常磐線松戸
-
-
-

-
- 中古マンション
- 1,380万円
-
松戸市小金きよしケ丘3丁目
-
JR千代田・常磐緩行線北小金
-
-
-

-
- 中古マンション
- 1,500万円
-
松戸市南花島4丁目
-
京成電鉄松戸線上本郷
-
-
-

-
- 中古マンション
- 2,690万円
-
流山市加3丁目
-
つくばエクスプレス流山セントラルパーク
-
-
-

-
- 中古マンション
- 2,798万円
-
松戸市新松戸3丁目
-
JR千代田・常磐緩行線新松戸
-
-
-

-
- 中古マンション
- 1,480万円
-
印旛郡酒々井町東酒々井6丁目
-
JR成田線酒々井
-
-
-

-
- 中古マンション
- 330万円
-
松戸市小金原6丁目
-
JR千代田・常磐緩行線北小金
-
-
-

-
- 中古マンション
- 880万円
-
松戸市松戸
-
JR常磐線松戸
-
-
-

-
- 中古マンション
- 2,999万円
-
松戸市栄町7丁目
-
JR千代田・常磐緩行線馬橋
-












