インペリアル御茶の水 千代田区神田小川町3丁目の中古マンション
掲載情報更新日:2025年11月06日 次回更新予定日:2025年11月20日
- 2,630万円
-
- 借入ご希望金額
万円 - 借入期間
年 - 借入金利
% - 月々のお支払い金額
円
- 借入ご希望金額
※ 月々のお支払例は目安の試算となりますので、実際の金額とは異なる場合がございます。詳しくは店舗までお問合わせください。
- 千代田区神田小川町3丁目
-
都営新宿線『小川町』 徒歩3分 (約240m)
東京メトロ半蔵門線『神保町』 徒歩4分 (約320m)
東京メトロ千代田線『新御茶ノ水』 徒歩4分 (約320m)
千代田区神田小川町3丁目マンション | 物件情報
駅まで徒歩3分の好立地◆事務所利用可◆新規フルリノベーション物件です。
●複数駅・複数路線利用可
●オートロック、宅配ボックス
●事務所利用可能
***皆様のお問い合わせをお待ちしております!***
<弊社の営業時間9:30~18:30>
◆お電話でのお問い合わせは0120-666-498におかけください。
◆当物件以外に、ご条件に近い物件も合わせてご紹介させていただくことも可能です。
弊社ホームページに掲載されていない物件も、ご紹介可能です。
◆ローンに関するご相談もお受けいたします。
どうぞお気軽にお問い合わせください。
物件の設備
- 公営水道
- 公共下水
- 都市ガス
- 給湯
- システムキッチン
- ユニットバス
- シャワー
- トイレ
- B/T別室
- 室内洗濯機置場
- オートロック
- モニタ付インターホン
- 防犯カメラ
- 全室フローリング
- フローリング張替
- バルコニー
- 南面バルコニー
- 宅配BOX
- エレベーター2基
物件の特徴
- 管理人日勤
- 内装リフォーム済
- 3沿線以上利用可
- 通風良好
- 陽当り良好
- 即入居可
- 事務所不可
物件詳細情報
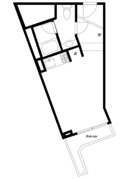
| 価格 | 2,630万円 | 間取り | 1R |
|---|---|---|---|
| 物件種別 | 中古マンション | ||
| 所在地 | 東京都千代田区神田小川町3丁目 | ||
| アクセス |
|
||
| 専有面積 | 壁芯 21.97㎡ | 所在階 | 12階建/3階部分 |
| 主要採光 | バルコニー | 南向3.81㎡ | |
| その他 | |||
| 権利 | 所有権 |
||
| 保証・評価 | |||
| リフォーム | 【水回り】2025年08月 キッチン・浴室・トイレ・洗面 【内装】2025年08月 床 ・全室クロス ・建具 |
||
| 総戸数 | 200戸 | 面積 | |
| 築年月 | 1980年(昭和55年)08月築 | 建物構造 | SRC |
| 施工会社 | |||
| 管理会社 | 管理方式 | 全部委託 日勤管理 | |
| 駐車場 | |||
| 都市計画 | 用途地域 | ||
| 建ぺい/容積率 | 土地国土法 | ||
| 法令制限 | |||
| 小学区 | 中学区 | ||
| 現況 | 空 | 引渡 | 即 |
| 管理費 | 9,900円/月 | 修繕積立金 | 6,590円/月 |
| その他費用 | 給湯基本料 2000円/月 |
||
| 周辺環境 | ファミリーマート内神田一丁目店 徒歩9分 (約670m) サミットストア神田スクエア店 徒歩7分 (約550m) |
||
| 備考 | |||
| 物件番号 | 4407714 | 取引態様 | 媒介 |
取扱店舗情報
ハウスドゥ 江東区役所前 Keep up home株式会社 店舗詳細ページへ
| 電話番号 | 03-6666-0705 |
|---|---|
| 所在地 | 〒135-0016 東京都江東区東陽5丁目30-16 とびたビル5F |
| 営業時間 | 10:00~18:30 |
| 定休日 | 水曜日 |
| 宅建免許番号 | 東京都知事(1)第107913号 |
| アクセス | 店舗への地図はこちら |

来店ご予約
- 東京都
マイページ物件数 - 5,451件
東京都中古マンション新着物件
-
-

-
- 中古マンション
- 2,998万円
-
大田区田園調布本町
-
東急池上線雪が谷大塚駅
-
-
-

-
- 収益
- 2,880万円
-
中央区東日本橋2丁目
-
JR総武本線馬喰町駅
-
-
-

-
- 中古マンション
- 1,999万円
-
足立区島根1丁目
-
東武伊勢崎・大師線梅島駅
-
-
-

-
- 中古マンション
- 2,490万円
-
足立区一ツ家3丁目
-
つくばエクスプレス六町駅
-
-
-

-
- 中古マンション
- 2,980万円
-
八王子市堀之内3丁目
-
京王相模原線京王堀之内駅
-
-
-

-
- 中古マンション
- 4,280万円
-
台東区浅草5丁目
-
つくばエクスプレス浅草駅
-
-
-

-
- 中古マンション
- 2,598万円
-
葛飾区亀有2丁目
-
JR千代田・常磐緩行線亀有駅
-
- お近くの店舗を探す
-
おすすめ物件
-
-

-
- 中古マンション
- 2,890万円
-
足立区大谷田4丁目
-
東京メトロ千代田線北綾瀬
-
-
-

-
- 中古マンション
- 3,500万円
-
板橋区常盤台3丁目
-
東武東上線ときわ台
-
-
-

-
- 中古マンション
- 4,190万円
-
葛飾区亀有3丁目
-
JR千代田・常磐緩行線亀有
-
-
-

-
- 中古マンション
- 4,980万円
-
足立区千住関屋町
-
京成本線京成関屋
-
-
-

-
- 中古マンション
- 9,990万円
-
台東区竜泉2丁目
-
東京メトロ日比谷線三ノ輪
-
-
-

-
- 中古マンション
- 780万円
-
青梅市新町9丁目
-
JR青梅線小作
-
-
-

-
- 中古マンション
- 1億980万円
-
台東区上野7丁目
-
JR山手線上野
-
-
-

-
- 中古マンション
- 1,980万円
-
葛飾区柴又5丁目
-
北総鉄道新柴又
-
-
-

-
- 中古マンション
- 6,490万円
-
台東区蔵前4丁目
-
都営浅草線蔵前
-
-
-

-
- 中古マンション
- 2,060万円
-
葛飾区新宿1丁目
-
JR千代田・常磐緩行線金町
-












