グリーンコーポ多摩ニュータウン南大沢 506号室
掲載情報更新日:2026年01月25日 次回更新予定日:2026年02月08日
- 3,199万円
-
- 借入ご希望金額
万円 - 借入期間
年 - 借入金利
% - 月々のお支払い金額
円
- 借入ご希望金額
※ 月々のお支払例は目安の試算となりますので、実際の金額とは異なる場合がございます。詳しくは店舗までお問合わせください。
- 八王子市松木
-
京王相模原線『南大沢』 徒歩14分 (約1120m)
グリーンコーポ多摩ニュータウン南大沢 506号室マンション | 物件情報
【仲介手数料無料のハウスドゥ立川北】仲介手数料が無料です。賢くお家を買うならハウスドゥ立川北で
こちらの物件は【ハウスドゥ立川北限定のゼロキャンペーン対象物件】です。ご購入の際の仲介手数料が【無料】の0円です。大変お得なキャンペーンなのでぜひご利用ください。さらにローンシュミレーションからライフプランの設計も【無料】で作成いたします。賢く買うならハウスドゥ立川北で検索!
物件の設備
- 公営水道
- 公共下水
- 都市ガス
- 給湯
- 浄水器
- 食器洗浄乾燥機
- コンロ三口
- グリル
- カウンターキッチン
- システムキッチン
- ユニットバス
- 追焚機能
- 浴室暖房
- 浴室乾燥機
- 浴室に窓
- シャワー
- トイレ
- 温水洗浄便座
- 室内洗濯機置場
- 洗髪洗面化粧台
- 洗面所独立
- モニタ付インターホン
- 火災警報器/報知機
- 2面採光
- 全室フローリング
- フローリング張替
- クローゼット
- シューズボックス
- バルコニー
- ルーフバルコニー
- 南面バルコニー
- バイク置場
- アルコーブ
物件の特徴
- 管理人日勤
- 内装リフォーム済
- 3方角住戸
- 閑静な住宅街
- 市街地が近い
- 都市近郊
- 眺望良好
- 通風良好
- 陽当り良好
- 即入居可
- ペット相談
- 小型犬可
- 猫可
物件詳細情報
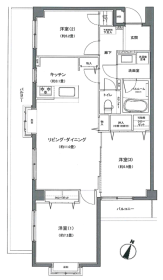
| 価格 | 3,199万円 | 間取り | 3LDK |
|---|---|---|---|
| 物件種別 | 中古マンション | ||
| 所在地 | 東京都八王子市松木69-4 | ||
| アクセス |
|
||
| 専有面積 | 壁芯 67.90㎡ | 所在階 | 6階建/5階部分 |
| 主要採光 | 南東向 | バルコニー | 南向7.21㎡ |
| その他 | 35.20㎡ 1410円/月 | ||
| 権利 | 所有権 |
||
| 保証・評価 | |||
| リフォーム | 【水回り】2025年09月 キッチン・浴室・トイレ・洗面・給湯器 交換 【内装】2024年09月 壁、天井 ・床 ・建具 ・他[ハウスクリーニング] 張替え、交換 |
||
| 総戸数 | 44戸 | 面積 | |
| 築年月 | 1995年(平成7年)07月築 | 建物構造 | RC |
| 施工会社 | |||
| 管理会社 | 株式会社長谷工コミュニティ | 管理方式 | 全部委託 日勤管理 |
| 駐車場 | 【駐車場】空有 料金帯:8,000円/月~12,000円/月 【バイク置き場】空有 料金:4800円/年 |
||
| 都市計画 | 用途地域 | 2種中高 | |
| 建ぺい/容積率 | 土地国土法 | ||
| 法令制限 | |||
| 小学区 | 松木小学校 徒歩13分 (約1000m) | 中学区 | 松木中学校 徒歩5分 (約400m) |
| 現況 | 空 | 引渡 | 即 |
| 管理費 | 16,020円/月 | 修繕積立金 | 12,270円/月 |
| その他費用 | |||
| 備考 | イトーヨーカドー・・・徒歩15分/生協・・・徒歩8分/ローソン・・・徒歩8分 | ||
| 物件番号 | 4414043 | 取引態様 | 媒介 |
取扱店舗情報
ハウスドゥ 立川北 株式会社シティリノベーション 店舗詳細ページへ
| 電話番号 | 042-537-9361 |
|---|---|
| 所在地 | 〒190-0004 東京都立川市柏町3-19-14 フレンテ1F |
| 営業時間 | 9:00~18:00 |
| 定休日 | GW、夏季、冬季 |
| 宅建免許番号 | 東京都知事(2)第100954号 |
| アクセス | 店舗への地図はこちら |

来店ご予約
東京都八王子市で価格が似ている物件はこちら
- 東京都
マイページ物件数 - 5,209件
最近見た物件
-
-

-
- 土地
- 1,833万円
-
豊橋市忠興2丁目
-
豊橋鉄道東田本線赤岩口
-
-
-

-
- 新築一戸建て
- 4,680万円
-
小平市美園町3丁目
-
西武新宿線小平
-
-
-

-
- 新築一戸建て
- 2,880万円
-
熊本市南区良町5丁目
-
JR豊肥本線南熊本
-
東京都中古マンション新着物件
-
-

-
- 中古マンション
- 7,480万円
-
江戸川区南小岩8丁目
-
JR総武・中央緩行線小岩駅
-
-
-

-
- 中古マンション
- 2,990万円
-
葛飾区奥戸6丁目
-
JR総武・中央緩行線小岩駅
-
-
-

-
- 中古マンション
- 3,798万円
-
練馬区関町北5丁目
-
西武新宿線東伏見駅
-
-
-

-
- 中古マンション
- 2,499万円
-
葛飾区お花茶屋1丁目
-
京成本線お花茶屋駅
-
-
-

-
- 中古マンション
- 1,198万円
-
日野市東豊田3丁目
-
JR中央本線豊田駅
-
-
-

-
- 中古マンション
- 1億5,980万円
-
港区南麻布1丁目
-
東京メトロ南北線白金高輪駅
-
-
-

-
- 中古マンション
- 6,980万円
-
港区三田1丁目
-
東京メトロ南北線麻布十番駅
-
- お近くの店舗を探す
-
おすすめ物件
-
-

-
- 中古マンション
- 7,899万円
-
大田区大森西5丁目
-
京急本線大森町
-
-
-

-
- 中古マンション
- 6,980万円
-
練馬区立野町
-
西武新宿線武蔵関
-
-
-

-
- 中古マンション
- 1億3,999万円
-
世田谷区松原3丁目
-
京王線下高井戸
-
-
-

-
- 中古マンション
- 2,280万円
-
葛飾区南水元1丁目
-
JR千代田・常磐緩行線金町
-
-
-

-
- 中古マンション
- 2,990万円
-
千葉市中央区問屋町
-
JR京葉線千葉みなと
-
-
-

-
- 中古マンション
- 9,980万円
-
台東区北上野2丁目
-
東京メトロ日比谷線入谷
-
-
-

-
- 中古マンション
- 5,980万円
-
練馬区関町北1丁目
-
西武新宿線武蔵関
-
-
-

-
- 中古マンション
- 3,690万円
-
板橋区前野町6丁目
-
東武東上線上板橋
-
-
-

-
- 中古マンション
- 4,290万円
-
葛飾区青戸7丁目
-
京成押上線青砥
-
-
-

-
- 中古マンション
- 9,599万円
-
世田谷区上北沢5丁目
-
京王線八幡山
-




























担当エージェント:板谷 和友樹
ハウスドゥ立川北のホームページをご覧頂きありがとうございます。
お客様の多くがお家を買うのに不安があるかと思われます。ハウスドゥではお客様の不安や問題解決に一つ一つ誠心誠意お答えいたします。また、お家探しに役立つ多くの物件に関する情報を掲載しております。
ハウスドゥ立川北ではお客様お一人お一人にあったご提案を心がけており、2級FP技能士によるローンシュミレーションや人工知能を使ったライフプランの作成(要予約)を行いお客様の不安を解決いたします
■頭金は必要なのか?
■ローンは払っていけるのか?
■どのタイミングで住み替えや引越しが出来るのか?etc
お気軽に相談できるハウスドゥ立川北へお問い合わせ下さい
◆ご予約方法◆
直接お電話ください。【0120-537-936】
メールでのご予約も承ります。お気軽にご来店ください。
物件によっては事前に鍵の手配が必要な場合がありますので、お早目にご連絡をいただけるとご案内がスムーズです。
◆ご案内方法◆
①最寄駅や周辺地での待ち合わせ②ハウスドゥ立川北へのご来店などご相談ください。