D’クラディア帯山 熊本市中央区帯山1丁目の中古マンション
掲載情報更新日:2026年04月17日 次回更新予定日:2026年05月01日
- 2,600万円
-
- 借入ご希望金額
万円 - 借入期間
年 - 借入金利
% - 月々のお支払い金額
円
- 借入ご希望金額
※ 月々のお支払例は目安の試算となりますので、実際の金額とは異なる場合がございます。詳しくは店舗までお問合わせください。
- 熊本市中央区帯山1丁目
-
JR豊肥本線『水前寺』 徒歩21分 (約1680m)
熊本市中央区帯山1丁目マンション | 物件情報
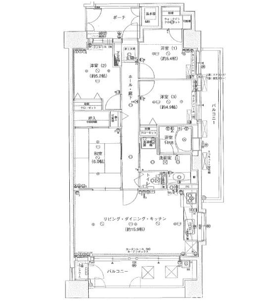
【専有85.39㎡×子育て世帯が検討しやすい立地×小学校徒歩9分】
・水前寺駅まで徒歩21分
・4LDKで、家族構成や暮らし方の変化にも対応しやすい間取り
・スーパー徒歩4分
・東には阿蘇、西は金峰山が見渡せるパノラマビュー
物件の設備
- IHクッキングヒータ
- グリル
- システムキッチン
- オートバス
- 浴室暖房
- 浴室乾燥機
- 温水洗浄便座
- 室内洗濯機置場
- 洗髪洗面化粧台
- 洗面所独立
- BS
- CS
- 人感照明センサー
- モニタ付インターホン
- モニタ付オートロック
- クローゼット
- ウォークインクローゼット
- 収納スペース
- バルコニー
- 2面バルコニー
- 南面バルコニー
- 来客用パーキング
- 宅配BOX
- エレベーター
- アルコーブ
物件の特徴
- 管理人日勤
オープンハウス・イベント情報
【熊本市中央区】オープンハウス公開中!地域密着のプロが教える「失敗しない家探し」現地見学会
開催日時:公開中
開催場所:熊本県熊本市中央区
現地案内会を開催しております。 公開中につき、すぐにご案内可能: 現在オープンハウスを開催しています。 まずは実際の建物を見て、暮らしのイメージを膨らませてみませんか? 事前お問い合わせ制: お一人おひとりに寄り添ったご提案ができるよう、個別でご案内いたします。 不動産のプロに相談:…
物件詳細情報
| 価格 | 2,600万円 | 間取り | 4LDK |
|---|---|---|---|
| 物件種別 | 中古マンション | ||
| 所在地 | 熊本県熊本市中央区帯山1丁目44-41 | ||
| アクセス |
|
||
| 専有面積 | 壁芯 85.39㎡ | 所在階 | 15階建/14階部分 |
| 主要採光 | 南向 | バルコニー | 南向85.39㎡ |
| その他 | |||
| 権利 | |||
| 保証・評価 | |||
| リフォーム | |||
| 総戸数 | 62戸 | 面積 | |
| 築年月 | 2006年(平成18年)08月築 | 建物構造 | RC |
| 施工会社 | 西松建設 | ||
| 管理会社 | 管理方式 | 全部委託 日勤管理 | |
| 駐車場 | |||
| 都市計画 | 用途地域 | 近隣商業 | |
| 建ぺい/容積率 | 土地国土法 | ||
| 法令制限 | |||
| 小学区 | 帯山西小学校 徒歩9分 (約650m) | 中学区 | 帯山中学校 徒歩2分 (約110m) |
| 現況 | 空 | 引渡 | 相談 |
| 管理費 | 10,250円/月 | 修繕積立金 | 11,150円/月 |
| その他費用 | |||
| 周辺環境 | 帯山中学校 徒歩2分 (約110m) マックスバリュ 帯山 徒歩4分 (約300m) マルショク保田窪店 徒歩9分 (約700m) 熊本銀行 新大江支店 徒歩10分 (約750m) |
||
| 備考 | 【専有85.39㎡×子育て世帯が検討しやすい立地×小学校徒歩9分】 ・水前寺駅まで徒歩21分 ・4LDKで、家族構成や暮らし方の変化にも対応しやすい間取り ・スーパー徒歩4分 ・東には阿蘇、西は金峰山が見渡せるパノラマビュー |
||
| 物件番号 | 4414405 | 取引態様 | 媒介 |
取扱店舗情報
| 電話番号 | 096-201-2905 |
|---|---|
| 所在地 | 〒861-8083 熊本県熊本市北区楡木2丁目11-95 |
| 営業時間 | 9:00~18:00 |
| 定休日 | 年末年始 |
| 宅建免許番号 | 熊本県知事(2)第5316号 |
| アクセス | 店舗への地図はこちら |

来店ご予約
熊本県熊本市中央区で価格が似ている物件はこちら
- 熊本県
マイページ物件数 - 3,114件
最近見た物件
-
-

-
- 中古マンション
- 8,398万円
-
横浜市中区花咲町2丁目
-
横浜市営地下鉄ブルーライン桜木町
-
-
-

-
- 土地
- 1,320万円
-
豊橋市西浜町
-
JR東海道本線豊橋
-
-
-

-
- 土地
- 1,050万円
-
八戸市根城2丁目
-
根城六丁目バス停
-
熊本県中古マンション新着物件
-
-

-
- 中古マンション
- 1,290万円
-
熊本市中央区坪井6丁目
-
熊本電気鉄道坪井川公園駅
-
-
-

-
- 中古マンション
- 2,999万円
-
熊本市中央区本山3丁目
-
熊本市健軍線祗園橋駅
-
-
-

-
- 中古マンション
- 1,899万円
-
熊本市中央区船場町下1丁目
-
熊本市上熊本線洗馬橋駅
-
-
-

-
- 中古マンション
- 2,299万円
-
熊本市中央区萩原町
-
JR豊肥本線南熊本駅
-
-
-

-
- 中古マンション
- 1,899万円
-
熊本市中央区新町1丁目
-
熊本市上熊本線蔚山町駅
-
-
-

-
- 中古マンション
- 1,899万円
-
熊本市中央区大江3丁目
-
JR豊肥本線水前寺駅
-
-
-

-
- 中古マンション
- 1,290万円
-
熊本市中央区坪井6丁目
-
熊本電気鉄道坪井川公園駅
-
- お近くの店舗を探す
-
おすすめ物件
-
-

-
- 中古マンション
- 1,298万円
-
熊本市東区保田窪5丁目
-
JR豊肥本線東海学園前
-
-
-

-
- 中古マンション
- 1,499万円
-
八代市新地町
-
JR鹿児島本線八代
-
-
-

-
- 中古マンション
- 1,799万円
-
熊本市中央区船場町下1丁目
-
熊本市上熊本線洗馬橋
-
-
-

-
- 中古マンション
- 1,698万円
-
熊本市中央区渡鹿4丁目
-
JR豊肥本線東海学園前
-
-
-

-
- 中古マンション
- 290万円
-
熊本市中央区船場町3丁目
-
熊本市健軍線慶徳校前
-
-
-

-
- 中古マンション
- 1,990万円
-
熊本市東区神園1丁目
-
JR豊肥本線武蔵塚
-
-
-

-
- 中古マンション
- 1,350万円
-
熊本市中央区九品寺3丁目
-
熊本市健軍線交通局前
-
-
-

-
- 中古マンション
- 1,840万円
-
熊本市東区新南部5丁目
-
JR豊肥本線竜田口
-






































担当エージェント:竹本 和恵
【住まい探しの進め方】
■ お問い合わせ後すぐに見学ではなく、先にヒアリング・資金計画・光熱費を整理してから物件ツアーへ進むため、条件に合う住まいを比較しやすくなります
■ ヒアリング後に資金計画や光熱費を整理し、住み始めてからの費用感まで確認できます
■ 太陽光やオール電化を含め、住んだ後の支出見直しまでご相談いただけます
■ 相談だけの段階でもお気軽にご相談ください