〈HN〉宝マンション白鳥
掲載情報更新日:2026年02月02日 次回更新予定日:2026年02月16日
- 2,099万円
-
- 借入ご希望金額
万円 - 借入期間
年 - 借入金利
% - 月々のお支払い金額
円
- 借入ご希望金額
※ 月々のお支払例は目安の試算となりますので、実際の金額とは異なる場合がございます。詳しくは店舗までお問合わせください。
- 名古屋市熱田区一番2丁目
-
名古屋市名城線『熱田神宮西』 徒歩15分 (約1200m)
名古屋市名港線『六番町』 徒歩16分 (約1250m)
〈HN〉宝マンション白鳥マンション | 物件情報
物件の設備
- コンロ三口
- システムキッチン
- ユニットバス
- 温水洗浄便座
- 室内洗濯機置場
- オートロック
- モニタ付インターホン
- 防犯カメラ
- フローリング張替
- バルコニー
- 南面バルコニー
- エレベーター
- 駐輪場
物件の特徴
- 管理人巡回
- 内装リフォーム済
- 陽当り良好
物件詳細情報
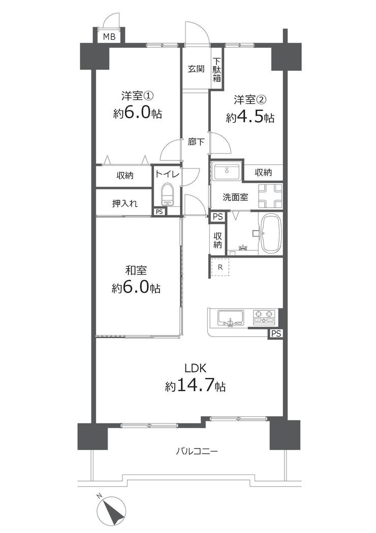
| 価格 | 2,099万円 | 間取り | 3LDK |
|---|---|---|---|
| 物件種別 | 中古マンション | ||
| 所在地 | 愛知県名古屋市熱田区一番2丁目41-3 | ||
| アクセス |
|
||
| 専有面積 | 壁芯 67.80㎡ | 所在階 | 10階建/2階部分 |
| 主要採光 | 南向 | バルコニー | 南向10.34㎡ |
| その他 | |||
| 権利 | 所有権 |
||
| 保証・評価 | |||
| リフォーム | 【水回り】2025年08月 キッチン・浴室・トイレ・洗面・給湯器 【内装】2025年08月 壁、天井 ・床 ・建具 畳表替、襖張替、障子張替 |
||
| 総戸数 | 33戸 | 面積 | |
| 築年月 | 1997年(平成9年)07月築 | 建物構造 | SRC (一部 RC ) |
| 施工会社 | |||
| 管理会社 | 宝コミュニティサービス株式会社 | 管理方式 | 全部委託 巡回管理 |
| 駐車場 | 【駐車場】空有 料金:7,000円/月 【駐輪場】空有 |
||
| 都市計画 | 市街化区域 |
用途地域 | 近隣商業 |
| 建ぺい/容積率 | 80% / 300% | 土地国土法 | |
| 法令制限 | 準防火地域・45m高度地区 | ||
| 小学区 | 船方小学校 徒歩11分 (約850m) | 中学区 | 日比野中学校 徒歩15分 (約1200m) |
| 現況 | 空 | 引渡 | 相談 |
| 管理費 | 4,500円/月 | 修繕積立金 | 21,412円/月 |
| その他費用 | その他負担金:1100円 顧客情報登録料:1,100 円(管理費初回請求時のみ) |
||
| 備考 | ・2 階部分南向きのため、陽当たり良好です。 ・ペット飼育:不可 ※2026 年12 月分より修繕積立金が23,339 円に改定予定。 ※図面と現況に相違がある場合は現況優先とします。 ※売主指定の司法書士をご利用いただきます。 |
||
| 物件番号 | 4417075 | 取引態様 | 媒介 |
取扱店舗情報
| 電話番号 | 0566-70-8335 |
|---|---|
| 所在地 | 〒447-0878 愛知県碧南市松本町36-2 |
| 営業時間 | 9:00~18:00 |
| 定休日 | 水曜日、日曜日、祝日 |
| 宅建免許番号 | 愛知県知事(1)第25578号 |
| アクセス | 店舗への地図はこちら |

来店ご予約
愛知県名古屋市熱田区で価格が似ている物件はこちら
- 愛知県
マイページ物件数 - 32,039件
最近見た物件
-
-

-
- 土地
- 893.80万円
-
尾道市向島町
-
田尻バス停
-
-
-

-
- 土地
- 630万円
-
河東郡音更町緑陽台南区
-
JR根室本線帯広
-
-
-

-
- 中古一戸建て
- 1,080万円
-
綾歌郡綾川町畑田
-
高松琴平電鉄琴平線畑田
-
愛知県中古マンション新着物件
-
-

-
- 中古マンション
- 1,980万円
-
岡崎市材木町1丁目
-
名鉄名古屋本線東岡崎駅
-
-
-

-
- 中古マンション
- 1,480万円
-
江南市古知野町広見
-
名鉄犬山線江南駅
-
-
-

-
- 中古マンション
- 3,630万円
-
名古屋市東区代官町
-
名古屋市桜通線高岳駅
-
-
-

-
- 中古マンション
- 2,200万円
-
知多市大草字四方田
-
名鉄常滑線大野町駅
-
-
-

-
- 中古マンション
- 1,480万円
-
名古屋市南区内田橋1丁目
-
名鉄常滑線豊田本町駅
-
-
-

-
- 中古マンション
- 1,499万円
-
豊田市御幸本町1丁目
-
愛知環状鉄道三河豊田駅
-
-
-

-
- 中古マンション
- 1,280万円
-
名古屋市南区豊4丁目
-
名古屋市名城線堀田駅
-
- お近くの店舗を探す
-
おすすめ物件
-
-

-
- 中古マンション
- 1,980万円
-
名古屋市中区金山2丁目
-
JR東海道本線金山
-
-
-

-
- 中古マンション
- 890万円
-
瀬戸市汗干町
-
名鉄瀬戸線新瀬戸
-
-
-

-
- 中古マンション
- 1,990万円
-
小牧市篠岡1丁目
-
JR中央本線春日井
-
-
-

-
- 中古マンション
- 1,499万円
-
海部郡蟹江町本町5丁目
-
JR関西本線蟹江
-
-
-

-
- 中古マンション
- 2,280万円
-
名古屋市中川区花塚町2丁目
-
名古屋市名港線日比野
-
-
-

-
- 中古マンション
- 2,980万円
-
名古屋市昭和区八事富士見
-
名古屋市名城線八事日赤
-
-
-

-
- 中古マンション
- 2,299万円
-
名古屋市熱田区花表町
-
名鉄名古屋本線神宮前
-
-
-

-
- 中古マンション
- 2,200万円
-
岡崎市大西町字南ケ原
-
名鉄名古屋本線男川
-
-
-

-
- 中古マンション
- 2,490万円
-
日進市栄3丁目
-
名鉄豊田線日進
-
-
-

-
- 中古マンション
- 2,880万円
-
名古屋市熱田区伝馬3丁目
-
名古屋市名城線熱田神宮伝馬町
-

















