レーベンハイムフォレチッタガーデン 朝霞市膝折町4丁目の中古マンション
NEW 09.22掲載情報更新日:2025年09月22日 次回更新予定日:2025年10月06日
- 2,880万円
-
- 借入ご希望金額
万円 - 借入期間
年 - 借入金利
% - 月々のお支払い金額
円
- 借入ご希望金額
※ 月々のお支払例は目安の試算となりますので、実際の金額とは異なる場合がございます。詳しくは店舗までお問合わせください。
- 朝霞市膝折町4丁目
-
東武東上線『朝霞』 徒歩30分 (約2400m)
東武東上線『朝霞』 バス乗車9分 膝折町1丁目 停 徒歩9分 (約720m)
朝霞市膝折町4丁目マンション | 物件情報
6階角部屋採光良好・全室エアコン完備・ペットと暮らせる物件・内装フルリフォーム
~只今キャンペーン中~ご成約頂いたお客様にもれなく1万円分のクオカードを進呈中~
・東武東上線「朝霞」駅徒歩徒歩30分、またはバス9分「膝折町一丁目」下車停歩9分の立地
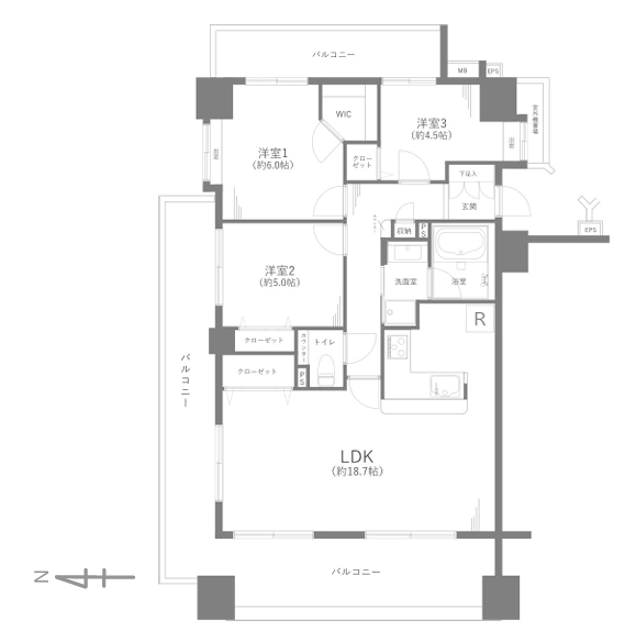
・専有面積76.97平米、バルコニー面積35.52平米の3LDK+WIC
・3方向角部屋につき通風良好
・全室にエアコン完備
・大切なペットと一緒に暮らせる物件
・2025年9月内装フルリノベーション
~お気軽にお問い合わせ下さい~
物件の設備
- 給湯
- 浄水器
- 食器洗浄乾燥機
- コンロ三口
- カウンターキッチン
- システムキッチン
- バス
- ユニットバス
- 追焚機能
- 浴室乾燥機
- トイレ
- 温水洗浄便座
- 室内洗濯機置場
- 洗髪洗面化粧台
- 洗面所独立
- エアコン
- エアコン4基以上
- 照明器具
- LDK18畳以上
- 2面採光
- 出窓
- フローリング
- 全室フローリング
- フローリング張替
- クローゼット
- クローゼット3箇所
- ウォークインクローゼット
- 収納スペース
- 全居室収納
- シューズボックス
- バルコニー
- 2面バルコニー
- 両面バルコニー
- 3面バルコニー
- ワイドバルコニー
- L字型バルコニー
- 駐輪場
- バイク置場
物件の特徴
- 管理人日勤
- 内装リフォーム済
- 角部屋
- スーパーが近い
- 眺望良好
- 通風良好
- 陽当り良好
- ペット相談
- ペット対応
物件詳細情報
価格 | 2,880万円 | 間取り | 3LDK |
---|---|---|---|
物件種別 | 中古マンション | ||
所在地 | 埼玉県朝霞市膝折町4丁目 | ||
アクセス |
|
||
専有面積 | 壁芯 76.97㎡ | 所在階 | 12階建/6階部分 |
主要採光 | 西向 | バルコニー | 西向35.52㎡ |
その他 | |||
権利 | 所有権 |
||
保証・評価 | |||
リフォーム | 【水回り】2025年09月 キッチン・浴室・トイレ・洗面 水回り交換 【内装】2025年09月 壁、天井 ・床 ・全室クロス ・建具 ・他[照明器具設置・ハウスクリーニング 等] |
||
総戸数 | 97戸 | 面積 | |
築年月 | 2002年(平成14年)02月築 | 建物構造 | SRC (一部 RC ) |
施工会社 | |||
管理会社 | 株式会社レーベンコミュニティ | 管理方式 | 全部委託 日勤管理 |
駐車場 | 【駐車場】空有 料金:8,000円/月 料金帯:3,000円/月~8,000円/月 カースペース 【バイク置き場】空有 料金:500円/月 【駐輪場】空有 料金:0円/月 |
||
都市計画 | 用途地域 | 工業 | |
建ぺい/容積率 | 土地国土法 | ||
法令制限 | |||
小学区 | 中学区 | ||
現況 | 空 | 引渡 | 相談 |
管理費 | 15,400円/月 | 修繕積立金 | 23,090円/月 |
その他費用 | |||
周辺環境 | 朝霞市立朝霞第一小学校 徒歩5分 (約350m) 朝霞市立朝霞第一中学校 徒歩19分 (約1470m) いずみばし保育園 徒歩8分 (約580m) ゆりの木保育園 徒歩9分 (約660m) ファミリーマート 朝霞膝折一丁目店 徒歩8分 (約620m) ビッグ・エー朝霞膝折団地店 徒歩10分 (約770m) マルエツ 朝霞溝沼店 徒歩10分 (約780m) ドラッグセイムス 膝折店 徒歩7分 (約510m) 膝折郵便局 徒歩9分 (約690m) 塩味クリニック 徒歩7分 (約520m) |
||
備考 | |||
物件番号 | 4421355 | 取引態様 | 媒介 |
取扱店舗情報
ハウスドゥ 上福岡 GLOBAL HOLDINGS株式会社 店舗詳細ページへ
電話番号 | 049-264-1010 |
---|---|
所在地 | 〒356-0006 埼玉県ふじみ野市霞ケ丘1丁目2番27 ココネ上福岡1F |
営業時間 | 9:00~19:00 |
定休日 | 水曜日、年末年始 |
宅建免許番号 | 埼玉県知事(3)第22701号 |
アクセス | 店舗への地図はこちら |
来店ご予約
- 埼玉県
マイページ物件数 - 3,893件
最近見た物件
-
-
-
- 中古マンション
- 2,890万円
-
福津市花見が丘1丁目
-
JR鹿児島本線福間
-
-
-
-
- 中古一戸建て
- 3,790万円
-
宇都宮市西一の沢町
-
JR東北本線宇都宮
-
-
-
-
- 中古一戸建て
- 1,399万円
-
瀬戸市西山町2丁目
-
名鉄瀬戸線水野
-
埼玉県中古マンション新着物件
-
-
-
- 中古マンション
- 2,880万円
-
朝霞市膝折町4丁目
-
東武東上線朝霞駅
-
-
-
-
- 中古マンション
- 1,190万円
-
春日部市備後東6丁目
-
東武伊勢崎・大師線武里駅
-
-
-
-
- 中古マンション
- 4,780万円
-
戸田市新曽南1丁目
-
JR埼京線戸田駅
-
-
-
-
- 中古マンション
- 2,890万円
-
戸田市中町1丁目
-
JR京浜東北・根岸線西川口駅
-
-
-
-
- 収益
- 1,480万円
-
三郷市三郷1丁目
-
JR武蔵野線三郷駅
-
-
-
-
- 中古マンション
- 1,850万円
-
草加市柳島町
-
東武伊勢崎・大師線草加駅
-
-
-
-
- 中古マンション
- 2,990万円
-
越谷市千間台西2丁目
-
東武伊勢崎・大師線せんげん台駅
-
- お近くの店舗を探す
-
おすすめ物件
-
-
-
- 中古マンション
- 1,799万円
-
越谷市大字下間久里
-
東武伊勢崎・大師線大袋
-
-
-
-
- 中古マンション
- 2,890万円
-
さいたま市北区櫛引町2丁目
-
埼玉新都市交通鉄道博物館(大成)
-
-
-
-
- 中古マンション
- 3,890万円
-
新座市東北1丁目
-
東武東上線志木
-
-
-
-
- 中古マンション
- 2,480万円
-
さいたま市緑区大字大間木
-
JR武蔵野線東浦和
-
-
-
-
- 中古マンション
- 5,480万円
-
上尾市柏座3丁目
-
JR高崎線上尾
-
-
-
-
- 中古マンション
- 2,498万円
-
川越市熊野町
-
東武東上線上福岡
-
-
-
-
- 中古マンション
- 1,999万円
-
越谷市谷中町1丁目
-
東武伊勢崎・大師線新越谷
-
-
-
-
- 中古マンション
- 980万円
-
北本市朝日2丁目
-
JR高崎線北本
-
-
-
-
- 中古マンション
- 1,890万円
-
さいたま市見沼区東大宮4丁目
-
湘南新宿ライン宇須東大宮
-
-
-
-
- 中古マンション
- 3,488万円
-
越谷市赤山町4丁目
-
東武伊勢崎・大師線新越谷
-
担当エージェント:谷川 晴奈
弊社はより多くの方が購入し易いリーズナブルな価格の中古物件を取り揃えております。お客様一人一人のニーズに合った物件探しをモットーに全力でサポート致します。是非お気軽にご相談下さい。