日商岩井自由が丘マンション
NEW 10.02掲載情報更新日:2025年10月02日 次回更新予定日:2025年10月16日
- 5,780万円
-
- 借入ご希望金額
万円 - 借入期間
年 - 借入金利
% - 月々のお支払い金額
円
- 借入ご希望金額
※ 月々のお支払例は目安の試算となりますので、実際の金額とは異なる場合がございます。詳しくは店舗までお問合わせください。
- 世田谷区奥沢2丁目
-
東急大井町線『自由が丘』 徒歩5分 (約400m)
東急目黒線『奥沢』 徒歩6分 (約480m)
東急大井町線『緑が丘』 徒歩9分 (約720m)
日商岩井自由が丘マンションマンション | 物件情報
■3沿線利用可能♪ ■3階南向き2DK ■内装リノベーション
《Access》
・東横線・大井町線「自由が丘駅」歩5分
・目黒線「奥沢駅」歩6分
・大井町線「緑が丘駅」歩9分
《Point》
・3沿線利用可能!
・閑静な住宅街の緑豊かな住環境
・オートロック・エレベーター完備
・常駐管理 管理体制良好
・南向き 日当たり・通風良好◎
・各居室収納あり
・TVモニターフォン、食洗機、温水洗浄便座・・設備充実
《Remodeling》
・キッチン、バス、トイレ、洗面化粧台新規交換
・建具新規交換
・給湯器新規交換、配管新設
・クロス、フローリング張替え
・エアコン2機新規取付
・クリーニング・・・など
良さを体感いただける充実したリフォーム内容です♪
物件の設備
- 公営水道
- 公共下水
- 都市ガス
- 給湯
- 食器洗浄乾燥機
- グリル
- システムキッチン
- バス
- ユニットバス
- オートバス
- 追焚機能
- トイレ
- 温水洗浄便座
- B/T別室
- 室内洗濯機置場
- 洗面所独立
- エアコン2基
- 照明器具
- BS
- CS
- ネット専用回線
- 省エネ給湯器
- オートロック
- モニタ付インターホン
- 防犯カメラ
- 火災警報器/報知機
- フローリング
- 全室フローリング
- フローリング張替
- 24時間換気システム
- クローゼット
- クローゼット2箇所
- 全居室収納
- シューズボックス
- バルコニー
- 南面バルコニー
- エレベーター
物件の特徴
- 管理人常駐
- 内装リフォーム済
- 内装リフォーム後渡
- 南向
- 2沿線利用可
- 3沿線以上利用可
- 緑豊かな住宅地
- 閑静な住宅街
- 周辺交通量少なめ
- 眺望良好
- 通風良好
- 陽当り良好
- 平坦地
- 24時間ゴミ出可
- 修繕
- 点検記録
- 即入居可
- ペット不可
物件詳細情報
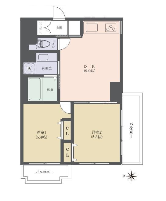
価格 | 5,780万円 | 間取り | 2DK |
---|---|---|---|
物件種別 | 中古マンション | ||
所在地 | 東京都世田谷区奥沢2丁目 | ||
アクセス |
|
||
専有面積 | 壁芯 45.22㎡ | 所在階 | 8階建/3階部分 |
主要採光 | 南向 | バルコニー | 南向7.83㎡ |
その他 | |||
権利 | 所有権 |
||
保証・評価 | |||
リフォーム | 【水回り】2018年03月 キッチン・浴室・トイレ・洗面・給湯器・給排水管 【内装】2018年03月 壁、天井 ・床 ・建具 |
||
総戸数 | 72戸 | 面積 | |
築年月 | 1971年(昭和46年)03月築 | 建物構造 | RC |
施工会社 | 不二建設㈱ | ||
管理会社 | ㈱グローバルコミュニティ | 管理方式 | 全部委託 常駐管理 管理組合あり |
駐車場 | |||
都市計画 | 用途地域 | ||
建ぺい/容積率 | 土地国土法 | ||
法令制限 | |||
小学区 | 八幡小学校 徒歩12分 (約930m) | 中学区 | 八幡中学校 徒歩15分 (約1140m) |
現況 | 空 | 引渡 | 即 |
管理費 | 9,000円/月 | 修繕積立金 | 9,950円/月 |
その他費用 | |||
周辺環境 | 八幡小学校 徒歩12分 (約930m) 世田谷区立八幡中学校 徒歩15分 (約1140m) |
||
備考 | |||
物件番号 | 4433144 | 取引態様 | 媒介 |
取扱店舗情報
ハウスドゥ 千歳船橋 R2-CONNECT株式会社 店舗詳細ページへ
電話番号 | 03-5799-7621 |
---|---|
所在地 | 〒156-0054 東京都世田谷区桜丘5丁目47-19 |
営業時間 | 9:00~19:00 |
定休日 | 火曜日、水曜日 |
宅建免許番号 | 東京都知事(1)第107079号 |
アクセス | 店舗への地図はこちら |
来店ご予約
東京都世田谷区で価格が似ている物件はこちら
- 東京都
マイページ物件数 - 5,848件
最近見た物件
-
-
-
- 中古マンション
- 1億2,580万円
-
杉並区荻窪3丁目
-
東京メトロ丸ノ内線南阿佐ヶ谷
-
東京都中古マンション新着物件
- お近くの店舗を探す
-
おすすめ物件
-
-
-
- 中古マンション
- 2,590万円
-
葛飾区金町3丁目
-
JR千代田・常磐緩行線金町
-
-
-
-
- 中古マンション
- 4,099万円
-
品川区南大井6丁目
-
JR京浜東北・根岸線大森
-
-
-
-
- 中古マンション
- 2,490万円
-
葛飾区柴又1丁目
-
京成本線京成高砂
-
-
-
-
- 中古マンション
- 4,680万円
-
台東区台東3丁目
-
東京メトロ日比谷線仲御徒町
-
-
-
-
- 中古マンション
- 3,680万円
-
千葉市中央区千葉港
-
千葉都市モノレール市役所前
-
-
-
-
- 中古マンション
- 3,399万円
-
足立区梅田8丁目
-
東武伊勢崎・大師線梅島
-
-
-
-
- 中古マンション
- 3,280万円
-
葛飾区水元3丁目
-
JR千代田・常磐緩行線金町
-
-
-
-
- 中古マンション
- 2,880万円
-
世田谷区桜上水4丁目
-
京王線桜上水
-
-
-
-
- 中古マンション
- 2,050万円
-
市原市ちはら台西4丁目
-
京成千原線ちはら台
-
-
-
-
- 中古マンション
- 3,280万円
-
板橋区南常盤台1丁目
-
東武東上線ときわ台
-
世田谷区物件はハウスドゥ千歳船橋へお任せください。
物件、資金計画、周辺環境もご案内させて頂きます♪
資料請求、ご見学お気軽にお問合せください。