サンパークパレス浦添 浦添市城間3丁目の中古マンション
掲載情報更新日:2026年02月05日 次回更新予定日:2026年02月19日
- 3,490万円
-
- 借入ご希望金額
万円 - 借入期間
年 - 借入金利
% - 月々のお支払い金額
円
- 借入ご希望金額
※ 月々のお支払例は目安の試算となりますので、実際の金額とは異なる場合がございます。詳しくは店舗までお問合わせください。
- 浦添市城間3丁目
-
沖縄都市モノレール『浦添前田』 徒歩43分 (約3440m)
【バス停】『城間三丁目』 徒歩3分 (約240m)
浦添市城間3丁目マンション | 物件情報
和室も洋室も楽しめる物件です^^♪15畳以上の広々とした洋室あり♪小学校も徒歩圏内!
店舗キッズスペースあり!夕方からや土日祝日のご内覧も可能です♪お気軽にお問い合わせください☆
物件の設備
- 公営水道
- 下水道
- 給湯
- コンロ三口
- ガスコンロ付
- システムキッチン
- バス
- バス1坪以上
- シャワー
- 温水洗浄便座
- B/T別室
- 室内洗濯機置場
- 洗髪洗面化粧台
- 洗面所独立
- オートロック
- モニタ付インターホン
- フローリング
- クローゼット
- 全居室収納
- シューズボックス
- 2面バルコニー
- エレベーター
物件の特徴
- 管理人巡回
- 角部屋
- 小学校徒歩10分以内
- スーパーが近い
- 閑静な住宅街
- 通風良好
- 陽当り良好
物件詳細情報
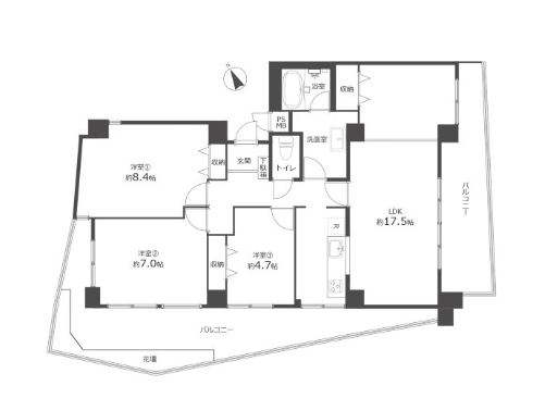
| 価格 | 3,490万円 | 間取り | 3LDK |
|---|---|---|---|
| 物件種別 | 中古マンション | ||
| 所在地 | 沖縄県浦添市城間3丁目25-6 | ||
| アクセス |
|
||
| 専有面積 | 91.69㎡ | 所在階 | 8階建/2階部分 |
| 主要採光 | バルコニー | ||
| その他 | |||
| 権利 | 所有権 |
||
| 保証・評価 | |||
| リフォーム | |||
| 総戸数 | 15戸 | 面積 | |
| 築年月 | 1993年(平成5年)11月築 | 建物構造 | RC |
| 施工会社 | 有限会社大濱建設 | ||
| 管理会社 | クラシテ株式会社 | 管理方式 | 全部委託 巡回管理 |
| 駐車場 | 【駐車場】空有 料金:8,800円/月 |
||
| 都市計画 | 市街化区域 |
用途地域 | 商業 |
| 建ぺい/容積率 | 80% / 400% | 土地国土法 | |
| 法令制限 | |||
| 小学区 | 浦城小学校 徒歩7分 (約550m) | 中学区 | 仲西中学校 徒歩13分 (約1000m) |
| 現況 | 空 | 引渡 | 相談 |
| 管理費 | 11,900円/月 | 修繕積立金 | 10,730円/月 |
| その他費用 | |||
| 周辺環境 | ビックワン城間店 徒歩3分 (約210m) うらそえショッピングセンター 徒歩5分 (約380m) メイクマン浦添本店 徒歩11分 (約820m) イオンタウン伊祖店 徒歩8分 (約630m) マンガ倉庫浦添店 徒歩9分 (約710m) ザ・ダイソー イオンタウン伊祖店 徒歩8分 (約600m) 浦城小学校 徒歩11分 (約810m) てだこボウル 徒歩10分 (約760m) ドラッグイレブン伊祖店 徒歩10分 (約740m) |
||
| 備考 | 設計会社:有限会社ロフト建築設計 | ||
| 物件番号 | 4433653 | 取引態様 | 媒介 |
取扱店舗情報
ハウスドゥ サンパーク通り浦添 株式会社R-JAPAN 店舗詳細ページへ
| 電話番号 | 098-876-5454 |
|---|---|
| 所在地 | 〒901-2133 沖縄県浦添市城間4丁目6-2 |
| 営業時間 | 10:00~19:00 |
| 定休日 | 水曜日、年末年始 |
| 宅建免許番号 | 国土交通大臣(2)第9251号 |
| アクセス | 店舗への地図はこちら |

来店ご予約
沖縄県浦添市で価格が似ている物件はこちら
- 沖縄県
マイページ物件数 - 3,625件
沖縄県中古マンション新着物件
-
-

-
- 中古マンション
- 5,850万円
-
那覇市西2丁目
-
沖縄都市モノレール旭橋駅
-
-
-

-
- 中古マンション
- 3,880万円
-
中頭郡中城村字南上原
-
バス停琉大東口
-
-
-

-
- 中古マンション
- 5,750万円
-
浦添市字港川
-
港川バス停
-
-
-

-
- 中古マンション
- 5,180万円
-
那覇市垣花町
-
沖縄都市モノレール奥武山公園駅
-
-
-

-
- 中古マンション
- 9,280万円
-
那覇市牧志3丁目
-
沖縄都市モノレール牧志駅
-
-
-

-
- 中古マンション
- 2,190万円
-
那覇市首里金城町4丁目
-
バス停保地原
-
-
-

-
- 中古マンション
- 7,798万円
-
那覇市おもろまち1丁目
-
沖縄都市モノレールおもろまち駅
-
- お近くの店舗を探す
-
おすすめ物件
-
-

-
- 中古マンション
- 2,598万円
-
那覇市繁多川3丁目
-
沖縄都市モノレール首里
-
-
-

-
- 中古マンション
- 4,600万円
-
島尻郡八重瀬町字伊覇
-
伊覇バス停
-
-
-

-
- 中古マンション
- 2,980万円
-
豊見城市字高嶺
-
沖縄都市モノレール奥武山公園
-
-
-

-
- 中古マンション
- 3,398万円
-
浦添市港川2丁目
-
バス停 港川 徒歩
-
-
-

-
- 中古マンション
- 3,398万円
-
浦添市城間4丁目
-
バス停 第2城間
-
-
-

-
- 中古マンション
- 5,850万円
-
中頭郡北谷町美浜3丁目
-
【バス停】桑江 徒歩
-
-
-

-
- 中古マンション
- 4,250万円
-
豊見城市字豊崎
-
沖縄都市モノレール赤嶺
-
-
-

-
- 中古マンション
- 4,480万円
-
那覇市泉崎2丁目
-
沖縄都市モノレール壺川
-
-
-

-
- 中古マンション
- 4,180万円
-
中頭郡中城村字南上原
-
中城南小学校前バス停
-
-
-

-
- 中古マンション
- 4,350万円
-
中頭郡北谷町桑江1丁目
-
バス停桑江
-




担当エージェント:崎原 惇
~ご入居までの流れ~
①ご相談:お客様のご希望条件を、ぜひお気軽に担当エージェントへお申し付けください。
②資金計画・住宅ローン事前審査:お客様に応じた必要な資金を明確にし、綿密な資金計画を立てることで、無理のない具体的なビジョンを描くことができます。
③物件選び、現地内覧:いよいよ物件ツアーの始まりです!実際に物件をご内覧いただき、ご家族の住んだ後のイメージをお持ちいただきます。
④お申し込み:気に入った物件が見つかりましたら、購入申込書を売主様へお届けします。売主様と条件交渉、契約内容の調整を行います。
⑤契約・重要事項の説明:引き渡し後トラブルが無いよう、事前に物件や契約の内容をしっかりご確認いただきます。無事契約が完了しましたら、住宅ローンや火災保険等のお申込みまで弊社にてご案内いたします。
⑥残代金支払い・鍵の引き渡し:待ちに待ったお引越しです!その後のアフターサポートもぜひハウスドゥへお任せくださいませ。
◇リフォーム工事や引越し業者の手配、住宅ローン(地銀・ネットバンク)受付等、サポート体制も万全です。