レジオン豊中・千里中央 豊中市上新田2丁目の中古マンション
掲載情報更新日:2026年05月18日 次回更新予定日:2026年06月01日
- 3,980万円
-
- 借入ご希望金額
万円 - 借入期間
年 - 借入金利
% - 月々のお支払い金額
円
- 借入ご希望金額
※ 月々のお支払例は目安の試算となりますので、実際の金額とは異なる場合がございます。詳しくは店舗までお問合わせください。
- 豊中市上新田2丁目
-
大阪モノレール『千里中央』 徒歩12分 (約960m)
北大阪急行南北線『千里中央』 徒歩13分 (約1040m)
北大阪急行南北線『桃山台』 徒歩20分 (約1590m)
豊中市上新田2丁目マンション | 物件情報
最上階につき眺望良好!!「千里中央」駅徒歩12分の閑静で緑豊かな住環境!!
◎「千里中央」駅から徒歩12分の閑静な住宅街!
◎8階(最上階)・南東向きにつき陽当り・風通し・眺望良好!
◎エントランスはオートロック&宅配ボックス付!
◎周辺環境充実につき、3人家族や老後のお住まいにもピッタリなお部屋!
物件の設備
- 公営水道
- 下水道
- 公共下水
- 都市ガス
- ユニットバス
- 追焚機能
- シャワー
- トイレ
- B/T別室
- 室内洗濯機置場
- 洗面所独立
- オートロック
- モニタ付インターホン
- 和室
- フローリング
- 一部フローリング
- クローゼット
- 収納スペース
- 押入
- シューズボックス
- バルコニー
- 宅配BOX
- エレベーター
物件の特徴
- 管理人日勤
- 南向
- 小学校徒歩10分以内
- 整備された歩道
- 緑豊かな住宅地
- 閑静な住宅街
- 眺望良好
- 通風良好
- 陽当り良好
- 最上階
- 高層階
- 上階無
- 外観タイル張
- 即入居可
- ペット相談
物件詳細情報
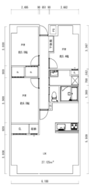
| 価格 | 3,980万円 | 間取り | 2LDK |
|---|---|---|---|
| 物件種別 | 中古マンション | ||
| 所在地 | 大阪府豊中市上新田2丁目 | ||
| アクセス |
|
||
| 専有面積 | 壁芯 64.03㎡ | 所在階 | 8階建/8階部分 |
| 主要採光 | 南東向 | バルコニー | 南東向9.87㎡ |
| その他 | |||
| 権利 | 所有権 |
||
| 保証・評価 | |||
| リフォーム | |||
| 総戸数 | 78戸 | 面積 | |
| 築年月 | 1997年(平成9年)07月築 | 建物構造 | RC |
| 施工会社 | 株式会社長谷工コーポレーション | ||
| 管理会社 | 管理方式 | 全部委託 日勤管理 管理組合あり | |
| 駐車場 | 【駐車場】空有 料金:15,000円/月 料金帯:15,000円/月~15,000円/月 |
||
| 都市計画 | 用途地域 | 1種中高 | |
| 建ぺい/容積率 | 土地国土法 | ||
| 法令制限 | |||
| 小学区 | 新田小学校 徒歩4分 (約260m) | 中学区 | 第九中学校 徒歩21分 (約1660m) |
| 現況 | 空 | 引渡 | 即 |
| 管理費 | 7,810円/月 | 修繕積立金 | 10,240円/月 |
| その他費用 | |||
| 周辺環境 | セブン-イレブン 豊中上新田4丁目店 徒歩5分 (約360m) 豊中市立新田小学校 徒歩5分 (約330m) キリン堂 千中上新田店 徒歩6分 (約420m) 新田南公園 徒歩9分 (約710m) イヅミヤ上新田店 徒歩7分 (約520m) 豊中市立しんでんこども園 徒歩11分 (約860m) 豊中市立第九中学校 徒歩21分 (約1660m) 豊中新千里東郵便局 徒歩18分 (約1410m) 北大阪急行南北線 桃山台 徒歩20分 (約1590m) トナリエ南千里 徒歩26分 (約2020m) |
||
| 備考 | |||
| 物件番号 | 4453426 | 取引態様 | 媒介 |
取扱店舗情報
ハウスドゥ 豊中上野 株式会社アマネハウジング 店舗詳細ページへ
| 電話番号 | 06-6842-7837 |
|---|---|
| 所在地 | 〒560-0013 大阪府豊中市上野東1丁目1-97 |
| 営業時間 | 9:30~20:00 |
| 定休日 | 毎週水曜日・年末年始 |
| 宅建免許番号 | 大阪府知事(1)第65576号 |
| アクセス | 店舗への地図はこちら |

来店ご予約
大阪府豊中市で価格が似ている物件はこちら
- 大阪府
マイページ物件数 - 18,919件
最近見た物件
-
-

-
- 中古マンション
- 1,699万円
-
名古屋市港区小割通1丁目
-
名古屋臨海高速鉄道港北
-
-
-

-
- 中古一戸建て
- 1,730万円
-
岡山市北区加茂
-
JR吉備線吉備津
-
-
-

-
- 中古マンション
- 4,180万円
-
名古屋市中区丸の内1丁目
-
名古屋市鶴舞線丸の内
-
大阪府中古マンション新着物件
-
-

-
- 中古マンション
- 2,790万円
-
和泉市和気町2丁目
-
JR阪和線和泉府中駅
-
-
-

-
- 中古マンション
- 3,290万円
-
吹田市桃山台2丁目
-
北大阪急行南北線桃山台駅
-
-
-

-
- 中古マンション
- 980万円
-
貝塚市澤
-
南海電鉄本線二色浜駅
-
-
-

-
- 中古マンション
- 9,980万円
-
大阪市港区南市岡3丁目
-
JR大阪環状線弁天町駅
-
-
-

-
- 中古マンション
- 2,395万円
-
堺市堺区大浜中町1丁
-
南海電鉄本線湊駅
-
-
-

-
- 中古マンション
- 1,298万円
-
大阪市淀川区東三国3丁目
-
JR東海道線東淀川駅
-
-
-

-
- 中古マンション
- 2,790万円
-
和泉市和気町2丁目
-
JR阪和線和泉府中駅
-
- お近くの店舗を探す
-
おすすめ物件
-
-

-
- 中古マンション
- 2,698万円
-
茨木市天王2丁目
-
阪急電鉄京都線南茨木
-
-
-

-
- 中古マンション
- 1,980万円
-
茨木市東太田1丁目
-
JR東海道線JR総持寺
-
-
-

-
- 中古マンション
- 3,180万円
-
八尾市安中町3丁目
-
JR関西本線八尾
-
-
-

-
- 中古マンション
- 1,480万円
-
高槻市古曽部町2丁目
-
JR東海道線高槻
-
-
-

-
- 中古マンション
- 5,950万円
-
川西市中央町
-
阪急電鉄宝塚線川西能勢口
-
-
-

-
- 中古マンション
- 2,390万円
-
吹田市千里山月が丘
-
阪急電鉄千里線千里山
-
-
-

-
- 中古マンション
- 2,090万円
-
東大阪市上石切町1丁目
-
近鉄難波・奈良線石切
-
-
-

-
- 中古マンション
- 2,680万円
-
茨木市天王2丁目
-
阪急電鉄京都線南茨木
-
-
-

-
- 中古マンション
- 1,199万円
-
高石市羽衣4丁目
-
南海電鉄本線羽衣
-
-
-

-
- 中古マンション
- 1,080万円
-
茨木市東太田1丁目
-
JR東海道線JR総持寺
-
























担当エージェント:曽我 優樹
◇お家探しに不安をお持ちのお客様へ◇
ハウスドゥでは豊富な物件量でお応えします!
物件に関するご質問はもちろん、ご購入の流れや資金面でのご相談等ございましたらいつでもお気軽にハウスドゥ豊中上野にご相談下さい♪