PET可・東船橋駅7分 綺麗な東船橋ガーデニア5号棟
NEW 10.20掲載情報更新日:2025年11月03日 次回更新予定日:2025年11月17日
- 3,490万円
-
- 借入ご希望金額
万円 - 借入期間
年 - 借入金利
% - 月々のお支払い金額
円
- 借入ご希望金額
※ 月々のお支払例は目安の試算となりますので、実際の金額とは異なる場合がございます。詳しくは店舗までお問合わせください。
- 船橋市東船橋3丁目
-
JR総武・中央緩行線『東船橋』 徒歩7分 (約490m)
PET可・東船橋駅7分 綺麗な東船橋ガーデニア5号棟マンション | 物件情報
物件の設備
- 公営水道
- 公共下水
- 都市ガス
- 給湯
- 浄水器
- 食器洗浄乾燥機
- コンロ三口
- システムキッチン
- ユニットバス
- トイレ
- 温水洗浄便座
- 高機能トイレ
- 室内洗濯機置場
- 洗髪洗面化粧台
- エアコン
- モニタ付インターホン
- フローリング張替
- ウォークインクローゼット2箇所
- バルコニー
- 南面バルコニー
物件の特徴
- 管理人日勤
- 内装リフォーム済
- 即入居可
- ペット相談
- ペット対応
物件詳細情報
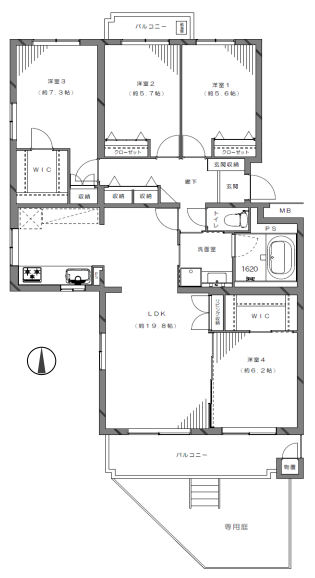
| 価格 | 3,490万円 | 間取り | 4LDK+S |
|---|---|---|---|
| 物件種別 | 中古マンション | ||
| 所在地 | 千葉県船橋市東船橋3丁目 | ||
| アクセス |
|
||
| 専有面積 | 壁芯 101.73㎡ | 所在階 | 4階建/1階部分 |
| 主要採光 | 南向 | バルコニー | 南向10.53㎡ |
| その他 | |||
| 権利 | 所有権 |
||
| 保証・評価 | |||
| リフォーム | 【水回り】2025年05月 キッチン・浴室・トイレ・洗面・給湯器 システムキッチン交換 ユニットバス交換 洗面化粧台新規交換 シャワートイレ交換 給湯器新規交換 【内装】2025年05月 全面 ・壁、天井 ・床 ・全室クロス ・建具 ・サッシ 全建具交換 フローリング張替え クロス張替え 玄関タイル張り モニタ付きインターホン交換 ハウスクリーニング 【共用】2025年12月予定 2025年排水菅更新工事 2022年大規模修繕工事 2014年エレベーターリニューアル工事 2013年共用部鉄部塗装工事 |
||
| 総戸数 | 面積 | ||
| 築年月 | 1983年(昭和58年)11月築 | 建物構造 | RC |
| 施工会社 | |||
| 管理会社 | 管理方式 | 全部委託 日勤管理 | |
| 駐車場 | |||
| 都市計画 | 用途地域 | 準住居 | |
| 建ぺい/容積率 | 土地国土法 | ||
| 法令制限 | |||
| 小学区 | 峰台小学校 徒歩15分 (約1180m) | 中学区 | 宮本中学校 徒歩16分 (約1210m) |
| 現況 | 空 | 引渡 | 即 |
| 管理費 | 10,170円/月 | 修繕積立金 | 16,680円/月 |
| その他費用 | |||
| 周辺環境 | セブンイレブン 東船橋2丁目店 徒歩5分 (約360m) 東船橋駅 徒歩7分 (約490m) ほいくえんHOPPA前原西 徒歩14分 (約1120m) 船橋市宮本中学校 徒歩16分 (約1210m) 峰台小学校 徒歩15分 (約1180m) |
||
| 備考 | |||
| 物件番号 | 4456397 | 取引態様 | 媒介 |
取扱店舗情報
ハウスドゥ 薬園台駅前 合同会社ネクステージ 店舗詳細ページへ
| 電話番号 | 047-401-0440 |
|---|---|
| 所在地 | 〒274-0077 千葉県船橋市薬円台6丁目5-1 |
| 営業時間 | 10:00~18:00 |
| 定休日 | 火曜日、水曜日 |
| 宅建免許番号 | 千葉県知事(1)第18892号 |
| アクセス | 店舗への地図はこちら |

来店ご予約
千葉県船橋市で価格が似ている物件はこちら
- 千葉県
マイページ物件数 - 2,863件
最近見た物件
-
-

-
- 新築一戸建て
- 4,098万円
-
北九州市戸畑区菅原1丁目
-
天籟寺 停留所
-
千葉県中古マンション新着物件
-
-

-
- 中古マンション
- 1,680万円
-
八千代市勝田台1丁目
-
京成本線勝田台駅
-
-
-

-
- 中古マンション
- 1,890万円
-
松戸市常盤平1丁目
-
京成電鉄松戸線常盤平駅
-
-
-

-
- 中古マンション
- 1,988万円
-
船橋市飯山満町2丁目
-
東葉高速鉄道飯山満駅
-
-
-

-
- 中古マンション
- 3,390万円
-
市川市福栄2丁目
-
東京メトロ東西線行徳駅
-
-
-

-
- 中古マンション
- 1,280万円
-
船橋市薬円台4丁目
-
京成電鉄松戸線習志野駅
-
-
-

-
- 中古マンション
- 2,580万円
-
松戸市五香西2丁目
-
京成電鉄松戸線五香駅
-
-
-

-
- 中古マンション
- 1,388万円
-
松戸市六高台4丁目
-
東武野田線六実駅
-
- お近くの店舗を探す
-
おすすめ物件
-
-

-
- 中古マンション
- 1,990万円
-
船橋市習志野5丁目
-
京成本線実籾
-
-
-

-
- 中古マンション
- 1,580万円
-
千葉市中央区都町6丁目
-
JR総武・中央緩行線千葉
-
-
-

-
- 中古マンション
- 1,950万円
-
松戸市小山
-
JR常磐線松戸
-
-
-

-
- 中古マンション
- 1,990万円
-
船橋市習志野5丁目
-
京成本線実籾
-
-
-

-
- 中古マンション
- 2,798万円
-
松戸市新松戸3丁目
-
JR千代田・常磐緩行線新松戸
-
-
-

-
- 中古マンション
- 2,999万円
-
松戸市栄町7丁目
-
JR千代田・常磐緩行線馬橋
-
-
-

-
- 中古マンション
- 1,250万円
-
松戸市松戸新田
-
JR常磐線松戸
-
-
-

-
- 中古マンション
- 2,780万円
-
松戸市久保平賀
-
JR千代田・常磐緩行線北小金
-
-
-

-
- 中古マンション
- 2,988万円
-
松戸市新松戸4丁目
-
JR千代田・常磐緩行線新松戸
-
-
-

-
- 中古マンション
- 1,480万円
-
印旛郡酒々井町東酒々井6丁目
-
JR成田線酒々井
-



















