Loading
  1. TOP>
  2. 中古マンション>
  3. 関東>
  4. 埼玉県>
  5. 春日部市>
  6. 中央2丁目>
  7. エクレール春日部中央 春日部市中央2丁目の中古マンション

エクレール春日部中央 春日部市中央2丁目の中古マンション

NEW 10.20

掲載情報更新日:2025年10月20日 次回更新予定日:2025年11月03日

  • 2,790万円
    • 借入ご希望金額
      万円
    • 借入期間
    • 借入金利
    • 月々のお支払い金額

※ 月々のお支払例は目安の試算となりますので、実際の金額とは異なる場合がございます。詳しくは店舗までお問合わせください。

  • 春日部市中央2丁目
  • 東武伊勢崎・大師線『春日部』 徒歩10分 (約800m)
    東武野田線『八木崎』 徒歩11分 (約880m)
取扱会社:ハウスドゥ 上福岡  GLOBAL HOLDINGS株式会社
  • この物件に資料請求・問い合わせをする
  • ■お電話はこちら 通話料無料 0120-141-441

春日部市中央2丁目マンション | 物件情報

内装リフォーム予定・専用庭・テラス付き・専用駐車場完備・ペット飼育可能

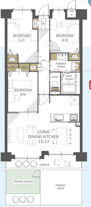
【間取り】
専有面積65.63平米、専用庭面積12.8平米、テラス面積6.78平米~ペットと暮らせる3LDK

【間取り】
専有面積65.63平米、専用庭面積12.8平米、テラス面積6.78平米~ペットと暮らせる3LDK

【外観】
「エクレール春日部中央」7階建てマンション、東武伊勢崎線・野田線「春日部」駅徒歩10分、「八木崎」駅徒歩11分の立地

【外観】
「エクレール春日部中央」7階建てマンション、東武伊勢崎線・野田線「春日部」駅徒歩10分、「八木崎」駅徒歩11分の立地

取扱会社
ハウスドゥ 上福岡  
  • この物件に資料請求・問い合わせをする
  • ■お電話はこちら 通話料無料 0120-141-441

アピールポイント

~只今キャンペーン中~ご成約頂いたお客様にもれなく1万円分のクオカードを進呈中~
・東武伊勢崎線・野田線「春日部」駅徒歩10分、「八木崎」駅徒歩11分の立地
・専有面積65.63平米、専用庭面積12.8平米、テラス面積6.78平米の3LDK
・2025年12月内装フルリフォーム完了予定
・ペットと暮らせる物件
・オートロック完備で安心
・専用駐車場1台完備
~お気軽にお問い合わせ下さい~

物件の設備

  • コンロ三口
  • カウンターキッチン
  • システムキッチン
  • バス
  • ユニットバス
  • トイレ
  • 室内洗濯機置場
  • 洗髪洗面化粧台
  • 洗面所独立
  • 照明器具
  • オートロック
  • フローリング
  • 全室フローリング
  • フローリング張替
  • クローゼット
  • クローゼット2箇所
  • 収納スペース
  • シューズボックス
  • テラス
  • 専用庭
  • エレベーター

物件の特徴

  • 管理人日勤
  • 内装リフォーム済
  • 南向
  • 2沿線利用可
  • 小学校徒歩10分以内
  • スーパーが近い
  • 通風良好
  • 陽当り良好
  • ペット相談
  • ペット対応

物件詳細情報

担当エージェント:谷川 晴奈

弊社はより多くの方が購入し易いリーズナブルな価格の中古物件を取り揃えております。お客様一人一人のニーズに合った物件探しをモットーに全力でサポート致します。是非お気軽にご相談下さい。

価格 2,790万円 間取り 3LDK
物件種別 中古マンション
所在地 埼玉県春日部市中央2丁目
アクセス
  • 東武伊勢崎・大師線『春日部』 徒歩10分 (約800m)
  • 東武野田線『八木崎』 徒歩11分 (約880m)
専有面積 壁芯 65.63㎡ 所在階 7階建/1階部分
主要採光 南向 バルコニー
その他 12.80㎡ 6.78㎡
権利 所有権
保証・評価
リフォーム 【水回り】2025年12月予定
キッチン・浴室・トイレ・洗面・給排水管
水回り交換 等
【内装】2025年12月予定
壁、天井 ・床 ・全室クロス ・建具
クロス・床材交換 等
総戸数 57戸 面積
築年月 1995年(平成7年)08月築 建物構造 RC
施工会社
管理会社 管理方式 全部委託 日勤管理
駐車場 【駐車場】空有
料金:11,000円/月
料金帯:11,000円/月~11,000円/月
カースペース
都市計画
用途地域 1種住居
建ぺい/容積率 土地国土法
法令制限
小学区 中学区
現況 引渡 相談
管理費 12,400円/月 修繕積立金 10,500円/月
その他費用
周辺環境 春日部市立八木崎小学校 徒歩4分 (約280m)
春日部市立大沼中学校 徒歩20分 (約1570m)
かすかべそらら保育園 徒歩5分 (約340m)
春日部市立第3保育所 徒歩8分 (約580m)
セブン-イレブン 春日部中央2丁目店 徒歩4分 (約250m)
ジョイフーズ春日部中央店 徒歩7分 (約500m)
イトーヨーカドー 春日部店 徒歩7分 (約550m)
春日部郵便局 徒歩6分 (約460m)
トップドラッグ春日部店 徒歩5分 (約350m)
藤通り大和田内科クリニック 徒歩4分 (約310m)
備考
物件番号 4456978 取引態様 媒介

取扱店舗情報

ハウスドゥ 上福岡  GLOBAL HOLDINGS株式会社 店舗詳細ページへ

電話番号 049-264-1010
所在地 〒356-0006
埼玉県ふじみ野市霞ケ丘1丁目2番27 ココネ上福岡1F
営業時間 9:00~19:00
定休日 水曜日、年末年始
宅建免許番号 埼玉県知事(3)第22701号
アクセス 店舗への地図はこちら

ハウスドゥ  上福岡の外観

この物件に関する資料請求・お問合せ

通話料無料 0120-141-441

お問い合わせの際に「ホームページを見た」といっていただくとお話がスムーズになります。

来店ご予約

ウィンドウを閉じる

ハウスドゥ 上福岡  GLOBAL HOLDINGS株式会社への地図

  • ハウスドゥ  上福岡の地図
  • ハウスドゥ  上福岡の外観

GoogleMapで地図を見る

ウィンドウを閉じる

埼玉県春日部市の 中古マンション 一覧から探す

埼玉県春日部市で種別を変更して探す

埼玉県
マイページ物件数
3,674

マイページサービス

新規登録(無料)
  • 物件探しがもっと便利に
  • 希望情報をいち早くお届け
  • マイページ物件が閲覧可能

最近見た物件

埼玉県中古マンション新着物件

お近くの店舗を探す

おすすめ物件

無料アプリ