シティコート片淵 長崎市片淵5丁目の中古マンション
NEW 10.21掲載情報更新日:2025年10月21日 次回更新予定日:2025年11月04日
- 1,300万円
-
- 借入ご希望金額
万円 - 借入期間
年 - 借入金利
% - 月々のお支払い金額
円
- 借入ご希望金額
※ 月々のお支払例は目安の試算となりますので、実際の金額とは異なる場合がございます。詳しくは店舗までお問合わせください。
- 長崎市片淵5丁目
-
長崎電軌螢茶屋支線『新中川町』 徒歩26分 (約2080m)
『片淵丸尾』 徒歩3分 (約240m)
長崎市片淵5丁目マンション | 物件情報
物件の設備
- 都市ガス
- 給湯
- コンロ三口
- カウンターキッチン
- システムキッチン
- 温水洗浄便座
- 室内洗濯機置場
- 洗髪洗面化粧台
- オートロック
- モニタ付オートロック
- クローゼット
- 全居室収納
- バルコニー
- 来客用パーキング
- エレベーター2基
物件の特徴
- 管理人日勤
- 南向
物件詳細情報
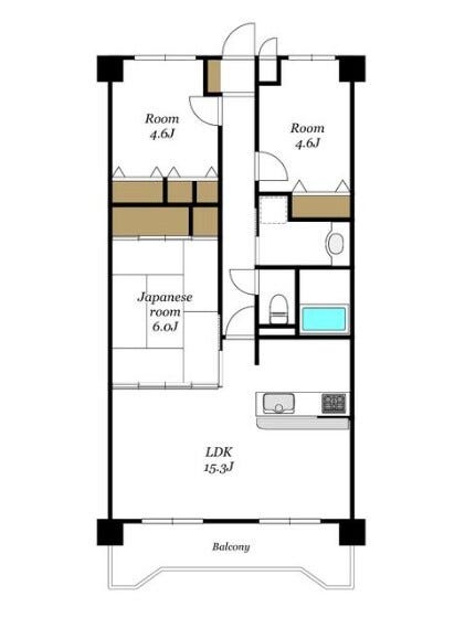
| 価格 | 1,300万円 | 間取り | 3LDK |
|---|---|---|---|
| 物件種別 | 中古マンション | ||
| 所在地 | 長崎県長崎市片淵5丁目 | ||
| アクセス |
|
||
| 専有面積 | 壁芯 70.81㎡ | 所在階 | 15階建/15階部分 |
| 主要採光 | 南向 | バルコニー | 9.31㎡ |
| その他 | |||
| 権利 | 所有権 |
||
| 保証・評価 | |||
| リフォーム | |||
| 総戸数 | 面積 | ||
| 築年月 | 1999年(平成11年)02月築 | 建物構造 | SRC |
| 施工会社 | |||
| 管理会社 | 株式会社トラスティ建物管理 | 管理方式 | 全部委託 日勤管理 |
| 駐車場 | 【駐車場】空有 料金:8,000円/月 |
||
| 都市計画 | 用途地域 | ||
| 建ぺい/容積率 | 土地国土法 | ||
| 法令制限 | |||
| 小学区 | 上長崎小学校 徒歩18分 (約1394m) | 中学区 | 片淵中学校 徒歩16分 (約1212m) |
| 現況 | 居住中 | 引渡 | 相談 |
| 管理費 | 4,700円/月 | 修繕積立金 | 7,780円/月 |
| その他費用 | |||
| 備考 | ・日当たり良好☆眺望良好☆最上階のお部屋です! ・バイパス近く☆アクセス良好な立地です! |
||
| 物件番号 | 4457737 | 取引態様 | 媒介 |
取扱店舗情報
ハウスドゥ 長崎西 アイ・ステップ株式会社 店舗詳細ページへ
| 電話番号 | 095-862-7030 |
|---|---|
| 所在地 | 〒852-8015 長崎県長崎市春木町9-12 田中ビル1F |
| 営業時間 | 9:00~18:00 |
| 定休日 | 水曜日・年末年始 |
| 宅建免許番号 | 長崎県知事(3)第3801号 |
| アクセス | 店舗への地図はこちら |

来店ご予約
長崎県長崎市で価格が似ている物件はこちら
- 長崎県
マイページ物件数 - 558件
長崎県中古マンション新着物件
- お近くの店舗を探す
-



























