等々力ビューハイツ
掲載情報更新日:2026年01月08日 次回更新予定日:2026年01月22日
- 6,480万円
-
- 借入ご希望金額
万円 - 借入期間
年 - 借入金利
% - 月々のお支払い金額
円
- 借入ご希望金額
※ 月々のお支払例は目安の試算となりますので、実際の金額とは異なる場合がございます。詳しくは店舗までお問合わせください。
- 世田谷区等々力6丁目
-
東急大井町線『尾山台』 徒歩10分 (約800m)
東急大井町線『等々力』 徒歩12分 (約960m)
東急東横線『自由が丘』 徒歩23分 (約1840m)
等々力ビューハイツマンション | 物件情報
■オートロック・宅配ボックス完備 ■3階南東向き ■ペット飼育可 ■内装リノベーション済み
《Access》
・大井町線「尾山台駅」歩10分
・同線「等々力駅」歩12分
・東横線「自由が丘駅」歩23分
《Point》
・緑豊かな住環境
・オートロック・宅配ボックス
・日勤管理 管理体制良好
・無償の駐車場・トランクルーム付
・ペット飼育可(細則あり)
・南東向き 日当たり・通風良好
・等々力の高台に立地 眺望も良好!
・各居室に収納あり
・両面バルコニー♪
・TVモニターフォン、食洗機、温水洗浄便座・・設備充実
《Remodeling》
・キッチン、バス、トイレ、洗面化粧台新規交換
・建具、照明器具交換
・給湯器交換
・全室クロス、フローリング張替え・・・など
良さを体感いただける充実したリフォーム内容です♪
物件の設備
- 公営水道
- 公共下水
- 都市ガス
- 給湯
- 食器洗浄乾燥機
- コンロ三口
- グリル
- システムキッチン
- II型キッチン
- バス
- ユニットバス
- 追焚機能
- 浴室暖房
- 浴室乾燥機
- トイレ
- 温水洗浄便座
- B/T別室
- 室内洗濯機置場
- 洗面所独立
- 照明器具
- BS
- CS
- ネット専用回線
- 省エネ給湯器
- オートロック
- モニタ付インターホン
- 火災警報器/報知機
- フローリング
- 全室フローリング
- フローリング張替
- 24時間換気システム
- クローゼット
- クローゼット3箇所
- トランクルーム
- 全居室収納
- シューズボックス
- 2面バルコニー
- 両面バルコニー
- 宅配BOX
- エレベーター
物件の特徴
- 管理人日勤
- 内装リフォーム済
- 内装リフォーム後渡
- 耐震構造
- 2沿線利用可
- 小学校徒歩10分以内
- 整備された歩道
- 緑豊かな住宅地
- 高台に立地
- 眺望良好
- 通風良好
- 陽当り良好
- 修繕
- 点検記録
- ペット相談
- ペット対応
物件詳細情報
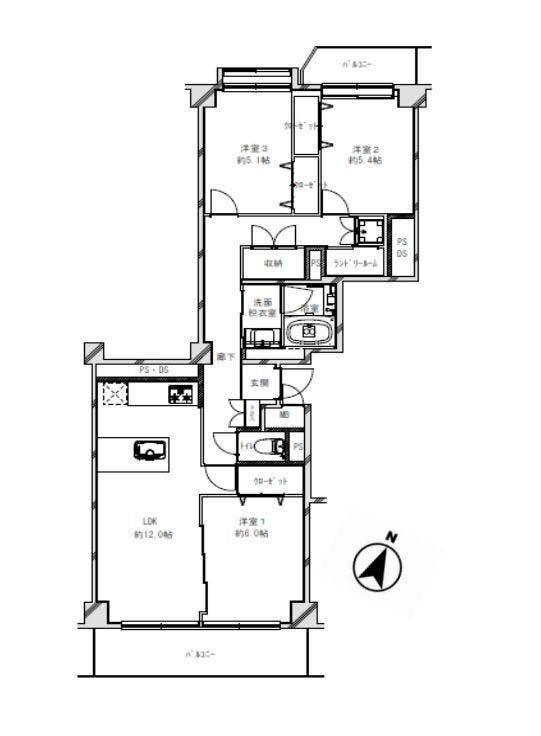
| 価格 | 6,480万円 | 間取り | 3LDK |
|---|---|---|---|
| 物件種別 | 中古マンション | ||
| 所在地 | 東京都世田谷区等々力6丁目 | ||
| アクセス |
|
||
| 専有面積 | 78.66㎡ | 所在階 | 8階建/3階部分 |
| 主要採光 | 南東向 | バルコニー | |
| その他 | |||
| 権利 | 所有権 |
||
| 保証・評価 | |||
| リフォーム | 【水回り】2025年09月 キッチン・浴室・トイレ・洗面・給湯器 【内装】2025年09月 壁、天井 ・床 ・全室クロス ・建具 |
||
| 総戸数 | 50戸 | 面積 | |
| 築年月 | 1972年(昭和47年)08月築 | 建物構造 | RC |
| 施工会社 | 株式会社増岡組 | ||
| 管理会社 | 大和地所コミュニティライフ㈱ | 管理方式 | 全部委託 日勤管理 管理組合あり |
| 駐車場 | 【駐車場】空有 料金:無料 |
||
| 都市計画 | 用途地域 | ||
| 建ぺい/容積率 | 土地国土法 | ||
| 法令制限 | |||
| 小学区 | 等々力小学校 徒歩8分 (約620m) | 中学区 | 尾山台中学校 徒歩13分 (約1020m) |
| 現況 | 空 | 引渡 | 相談 |
| 管理費 | 22,300円/月 | 修繕積立金 | 13,200円/月 |
| その他費用 | |||
| 周辺環境 | ナオミ保育園 徒歩6分 (約430m) 紀ノ国屋等々力店 徒歩7分 (約540m) 世田谷区立等々力小学校 徒歩8分 (約620m) スーパーオオゼキ尾山台店 徒歩10分 (約730m) くすりセイジョー深沢店 徒歩11分 (約860m) 世田谷区立尾山台中学校 徒歩13分 (約1020m) 玉川警察署 徒歩14分 (約1070m) 深沢一丁目緑地 徒歩14分 (約1110m) |
||
| 備考 | |||
| 物件番号 | 4460553 | 取引態様 | 媒介 |
取扱店舗情報
ハウスドゥ 千歳船橋 R2-CONNECT株式会社 店舗詳細ページへ
| 電話番号 | 03-5799-7621 |
|---|---|
| 所在地 | 〒156-0054 東京都世田谷区桜丘5丁目47-19 |
| 営業時間 | 9:00~19:00 |
| 定休日 | 火曜日、水曜日 |
| 宅建免許番号 | 東京都知事(1)第107079号 |
| アクセス | 店舗への地図はこちら |

来店ご予約
東京都世田谷区で価格が似ている物件はこちら
- 東京都
マイページ物件数 - 4,913件
最近見た物件
-
-

-
- 新築一戸建て
- 3,590万円
-
名古屋市名東区香流1丁目
-
名古屋市東山線一社
-
-
-

-
- 新築一戸建て
- 4,399万円
-
名古屋市南区赤坪町
-
名鉄名古屋本線本笠寺
-
-
-

-
- 新築一戸建て
- 3,498万円
-
東広島市西条町御薗宇
-
JR山陽本線西条
-
東京都中古マンション新着物件
- お近くの店舗を探す
-
おすすめ物件
-
-

-
- 中古マンション
- 1億4,990万円
-
世田谷区経堂5丁目
-
小田急小田原線千歳船橋
-
-
-

-
- 中古マンション
- 2,480万円
-
葛飾区東金町1丁目
-
JR千代田・常磐緩行線金町
-
-
-

-
- 中古マンション
- 3,480万円
-
葛飾区白鳥2丁目
-
京成本線お花茶屋
-
-
-

-
- 中古マンション
- 8,480万円
-
台東区下谷3丁目
-
東京メトロ日比谷線入谷
-
-
-

-
- 中古マンション
- 1,280万円
-
練馬区立野町
-
JR中央本線吉祥寺
-
-
-

-
- 中古マンション
- 4,480万円
-
台東区元浅草3丁目
-
都営大江戸線新御徒町
-
-
-

-
- 中古マンション
- 4,290万円
-
葛飾区青戸7丁目
-
京成押上線青砥
-
-
-

-
- 中古マンション
- 7,680万円
-
調布市東つつじケ丘2丁目
-
京王線つつじヶ丘
-
-
-

-
- 中古マンション
- 1,980万円
-
足立区宮城1丁目
-
JR京浜東北・根岸線王子
-
-
-

-
- 中古マンション
- 3,199万円
-
荒川区東尾久5丁目
-
都電荒川線熊野前
-






















世田谷区物件はハウスドゥ千歳船橋へお任せください。
物件、資金計画、周辺環境もご案内させて頂きます♪
資料請求、ご見学お気軽にお問合せください。