白浜ヴィラ 西牟婁郡白浜町 の中古マンション
掲載情報更新日:2025年12月15日 次回更新予定日:2025年12月29日
- 70万円
-
- 借入ご希望金額
万円 - 借入期間
年 - 借入金利
% - 月々のお支払い金額
円
- 借入ご希望金額
※ 月々のお支払例は目安の試算となりますので、実際の金額とは異なる場合がございます。詳しくは店舗までお問合わせください。
- 西牟婁郡白浜町
-
JR紀勢本線『白浜』 徒歩70分 (約5600m)
JR紀勢本線『紀伊富田』 徒歩93分 (約7400m)
西牟婁郡白浜町マンション | 物件情報
月々0.3万円~ 即内見可!
☆月々0.3万円~
☆別荘にいかがですか?
☆陽当たり良好!眺望良好!
☆駐車場あり
【内覧会開催中】
本日ご案内可能な場合もございます。
複数件併せてご内見も可能♪
他の掲載物件もまとめてご内見頂けます。気になる物件をお教え下さい。
☆立地のポイント
【白浜駅】徒歩約70分
【紀伊富田駅】徒歩約93分
【備考】
土地権利:普通借地権
月額借地料:16900円
月額温泉供給料:12000円
水道基本料(税別):月額667円
水道下水ポンプ保守料(税別):400円
下水道料金(税別):906円
物件の特徴
- 管理人常駐
物件詳細情報
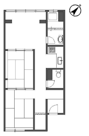
| 価格 | 70万円 | 間取り | 2LDK |
|---|---|---|---|
| 物件種別 | 中古マンション | ||
| 所在地 | 和歌山県西牟婁郡白浜町 | ||
| アクセス |
|
||
| 専有面積 | 壁芯 63.63㎡ | 所在階 | 4階建/1階部分 |
| 主要採光 | 北西向 | バルコニー | |
| その他 | |||
| 権利 | 所有権 |
||
| 保証・評価 | |||
| リフォーム | |||
| 総戸数 | 18戸 | 面積 | |
| 築年月 | 1963年(昭和38年)11月築 | 建物構造 | RC |
| 施工会社 | 竹中工務店 | ||
| 管理会社 | リロケーション不動産株式会社 | 管理方式 | 全部委託 常駐管理 |
| 駐車場 | |||
| 都市計画 | 用途地域 | 2種住居 | |
| 建ぺい/容積率 | 土地国土法 | ||
| 法令制限 | |||
| 小学区 | 中学区 | ||
| 現況 | 空 | 引渡 | 相談 |
| 管理費 | 13,400円/月 | 修繕積立金 | |
| その他費用 | |||
| 備考 | 土地権利:普通借地権 月額借地料:16900円 月額温泉供給料:12000円 水道基本料(税別):月額667円 水道下水ポンプ保守料(税別):400円 下水道料金(税別):906円 駐車場:有 |
||
| 物件番号 | 4477236 | 取引態様 | 媒介 |
取扱店舗情報
| 電話番号 | 050-5805-9447 |
|---|---|
| 所在地 | 〒536-0006 大阪府大阪市城東区野江4丁目10-13 クリエイト野江内代1F |
| 営業時間 | 10:00~19:00 |
| 定休日 | なし |
| 宅建免許番号 | 国土交通大臣(1)第10706号 |
| アクセス | 店舗への地図はこちら |

来店ご予約
- 和歌山県
マイページ物件数 - 1,281件
最近見た物件
-
-

-
- 新築一戸建て
- 3,799万円
-
名古屋市中川区打中2丁目
-
名古屋市東山線高畑
-
和歌山県中古マンション新着物件
-
-

-
- 中古マンション
- 700万円
-
和歌山市湊御殿1丁目
-
南海電鉄和歌山港線和歌山港駅
-
-
-

-
- 中古マンション
- 2,580万円
-
和歌山市伝法橋南ノ丁
-
南海電鉄和歌山港線和歌山市駅
-
-
-

-
- 中古マンション
- 2,590万円
-
和歌山市毛見
-
JR紀勢本線黒江駅
-
-
-

-
- 中古マンション
- 880万円
-
和歌山市毛見
-
和歌山バスマリーナシティ和歌山館前
-
-
-

-
- 中古マンション
- 560万円
-
岩出市西国分
-
JR和歌山線下井阪駅
-
-
-

-
- 中古マンション
- 989万円
-
和歌山市狐島
-
南海電気鉄道加太線東松江駅
-
-
-

-
- 中古マンション
- 330万円
-
和歌山市築港5丁目
-
南海電鉄和歌山港線和歌山港駅
-
- お近くの店舗を探す
-
おすすめ物件
-
-

-
- 中古マンション
- 2,380万円
-
和歌山市毛見
-
JR紀勢本線黒江
-






担当エージェント:尾関 親代
落ち着いた住環境でファミリー層にも単身者にも◎♪
住宅ローン相談会開催中です!
ぜひお気軽にお問い合わせください!