レジオン八尾 14階部分
掲載情報更新日:2026年01月23日 次回更新予定日:2026年02月06日
- 4,580万円
-
- 借入ご希望金額
万円 - 借入期間
年 - 借入金利
% - 月々のお支払い金額
円
- 借入ご希望金額
※ 月々のお支払例は目安の試算となりますので、実際の金額とは異なる場合がございます。詳しくは店舗までお問合わせください。
- 八尾市山城町2丁目
-
近鉄大阪線『近鉄八尾』 徒歩5分 (約400m)
近鉄大阪線『河内山本』 徒歩27分 (約2090m)
JR関西本線『八尾』 徒歩24分 (約1910m)
レジオン八尾 14階部分マンション | 物件情報
【八尾中学校】最寄り駅&小学校徒歩5分!親御様も安心のデザイナーズ物件!南向き角部屋で採光も良好!
■最上階厨房良好■スーパー等も徒歩10分圏内■大きなパントリー有♪
―――――――無料送迎サービス実施中――――――
スタッフがご自宅にお伺いして、相談内容をお聞きすることも可能です!
今のお住まいが店舗から遠い方でも、悪天候でも、電話一本で駆けつけさせていただきます!
いつでもお気軽にご相談下さい!
――――――――――――――――――――――――
\物件探しのお手伝いから、お客様のご希望に沿った家づくりまでトータルサポートいたします♪/
●【ヴィンテージ不動産】→お客様の今欲しい情報をご提供いたします!
●【ヴィンテージホームズ】→無料の資金計画&プラン作成もできます!
物件に関するご質問はもちろん、ご購入の流れやローンシュミレーション、資金面でのご相談等ございましたら、いつでもお気軽にご相談下さい。
中古住宅の建て替えやリフォームのご相談も可能です!キッズコーナーや駐車場も完備!
弊社では、お客様それぞれの「理想の家」を実現するため、専門のアドバイザーが担当いたします。
見るだけ・聞くだけOK♪すべて無料♪お家探しなら、ハウスドゥ平野区加美店へ!
物件の設備
- 公営水道
- 下水道
- 公共下水
- 都市ガス
- 給湯
- 食器洗浄乾燥機
- カウンターキッチン
- システムキッチン
- バス
- ユニットバス
- オートバス
- バス1坪以上
- 追焚機能
- 浴室暖房
- 浴室乾燥機
- トイレ
- 温水洗浄便座
- 高機能トイレ
- B/T別室
- 室内洗濯機置場
- 洗面所独立
- ダウンライト
- フットライト
- 人感照明センサー
- オートロック
- モニタ付インターホン
- モニタ付オートロック
- 防犯カメラ
- 火災警報器/報知機
- セキュリティシステム
- LDK18畳以上
- フローリング
- 全室フローリング
- フローリング風フロアタイル
- クッションフロア
- クローゼット
- クローゼット2箇所
- クローゼット3箇所
- 玄関収納
- 納戸
- 収納スペース
- 全居室収納
- シューズボックス
- バルコニー
- 2面バルコニー
- ワイドバルコニー
- 南面バルコニー
- エレベーター
- 駐輪場
- バイク置場
物件の特徴
- 管理人日勤
- 24時間セキュリティ
- セキュリティ充実
- 内装リフォーム後渡
- 角部屋
- 南向
- 2沿線利用可
- 駅まで平坦
- 総合病院徒歩10分以内
- 小学校徒歩10分以内
- 整備された歩道
- 緑豊かな住宅地
- スーパーが近い
- 閑静な住宅街
- 市街地が近い
- 都市近郊
- 通風良好
- 陽当り良好
オープンハウス・イベント情報
開催日時:公開中 09:30~18:30
開催場所:大阪府八尾市
◆現地案内会◆※必ず事前にご予約下さい 日程/土日祝、平日(月・木・金) 時間/9:30~18:30 物件の間取や設備、採光・採風・周辺の雰囲気などご覧いただく見学会です♪ ↓↓ご希望に合わせて選べる見学コース↓↓ ①お問合せ物件のみのご案内(所要時間30分) ②お問合せ物件の他…
物件詳細情報
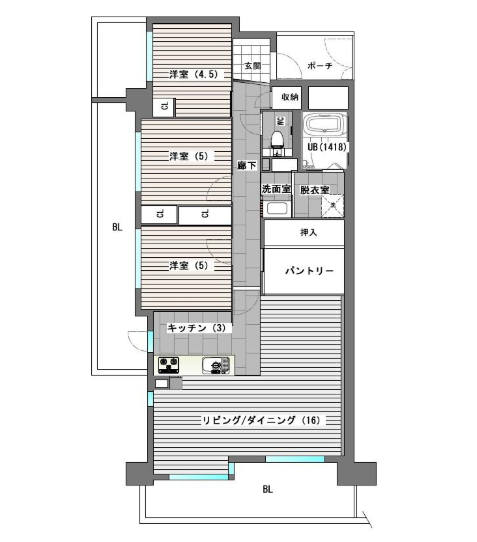
| 価格 | 4,580万円 | 間取り | 3LDK+S |
|---|---|---|---|
| 物件種別 | 中古マンション | ||
| 所在地 | 大阪府八尾市山城町2丁目 | ||
| アクセス |
|
||
| 専有面積 | 壁芯 84.26㎡ | 所在階 | 14階建/14階部分 |
| 主要採光 | 南向 | バルコニー | 南向26.78㎡ |
| その他 | |||
| 権利 | 所有権 |
||
| 保証・評価 | |||
| リフォーム | |||
| 総戸数 | 147戸 | 面積 | |
| 築年月 | 1998年(平成10年)07月築 | 建物構造 | SRC |
| 施工会社 | |||
| 管理会社 | 管理方式 | 全部委託 日勤管理 | |
| 駐車場 | 【駐車場】空無 【バイク置き場】空有 料金:1000円/月 【駐輪場】空有 料金:0円/月 |
||
| 都市計画 | 市街化区域 |
用途地域 | 近隣商業 |
| 建ぺい/容積率 | 60% / 200% | 土地国土法 | |
| 法令制限 | 準防火地域 | ||
| 小学区 | 用和小学校 徒歩4分 (約260m) | 中学区 | 八尾中学校 徒歩12分 (約910m) |
| 現況 | 空 | 引渡 | 相談 |
| 管理費 | 10,200円/月 | 修繕積立金 | 23,590円/月 |
| その他費用 | |||
| 周辺環境 | 東朋八尾病院 徒歩5分 (約380m) コノミヤ近鉄八尾駅前店 徒歩5分 (約350m) 用和小学校 徒歩4分 (約260m) マツモトキヨシ八尾店 徒歩5分 (約350m) 八尾市ファミリーロード商店街 徒歩4分 (約300m) 八尾市ようわこども園 徒歩6分 (約410m) 万代八尾店 徒歩6分 (約470m) 近鉄八尾駅 徒歩8分 (約580m) アリオ八尾 徒歩11分 (約880m) 八尾中学校 徒歩12分 (約910m) |
||
| 備考 | 現況優先 | ||
| 物件番号 | 4492303 | 取引態様 | 媒介 |
取扱店舗情報
ハウスドゥ 平野区加美 ヴィンテージ不動産株式会社 店舗詳細ページへ
| 電話番号 | 06-4303-4759 |
|---|---|
| 所在地 | 〒547-0005 大阪府大阪市平野区加美西1丁目13-47 |
| 営業時間 | 10:00~18:30 |
| 定休日 | 火曜日、水曜日 |
| 宅建免許番号 | 大阪府知事(1)第65159号 |
| アクセス | 店舗への地図はこちら |

来店ご予約
大阪府八尾市で価格が似ている物件はこちら
- 大阪府
マイページ物件数 - 16,417件
最近見た物件
大阪府中古マンション新着物件
-
-

-
- 収益
- 1億1,200万円
-
高槻市白梅町
-
JR東海道線高槻駅
-
-
-

-
- 中古マンション
- 1,530万円
-
豊中市東豊中町6丁目
-
北大阪急行南北線桃山台駅
-
-
-

-
- 中古マンション
- 1,530万円
-
豊中市東豊中町6丁目
-
北大阪急行南北線桃山台駅
-
-
-

-
- 中古マンション
- 5,498万円
-
吹田市垂水町1丁目
-
大阪市御堂筋線江坂駅
-
-
-

-
- 中古マンション
- 2,180万円
-
東大阪市西石切町7丁目
-
近鉄けいはんな線新石切駅
-
-
-

-
- 中古マンション
- 5,498万円
-
吹田市垂水町1丁目
-
大阪市御堂筋線江坂駅
-
-
-

-
- 中古マンション
- 2,080万円
-
八尾市竹渕1丁目
-
JRおおさか東線新加美駅
-
- お近くの店舗を探す
-
おすすめ物件
-
-

-
- 中古マンション
- 780万円
-
大阪市住之江区粉浜西3丁目
-
南海電鉄本線住吉大社
-
-
-

-
- 中古マンション
- 2,780万円
-
大阪市淀川区新高1丁目
-
阪急電鉄神戸線神崎川
-
-
-

-
- 中古マンション
- 5,398万円
-
大阪市福島区福島4丁目
-
JR東西線新福島
-
-
-

-
- 中古マンション
- 2,290万円
-
茨木市豊原町
-
JR東海道線茨木
-
-
-

-
- 中古マンション
- 930万円
-
大阪狭山市西山台6丁目
-
南海電鉄高野線金剛
-
-
-

-
- 中古マンション
- 2,350万円
-
高槻市真上町6丁目
-
JR東海道線高槻
-
-
-

-
- 中古マンション
- 4,580万円
-
八尾市山城町2丁目
-
近鉄大阪線近鉄八尾
-
-
-

-
- 中古マンション
- 3,150万円
-
大阪市港区池島3丁目
-
大阪市中央線朝潮橋
-
-
-

-
- 中古マンション
- 1,995万円
-
東大阪市西岩田3丁目
-
近鉄難波・奈良線八戸ノ里
-
-
-

-
- 中古マンション
- 1,180万円
-
泉大津市尾井千原町
-
南海電鉄本線北助松
-









































担当エージェント:市川 秀昭
【八尾中学校】最寄り駅&小学校徒歩5分!親御様も安心のデザイナーズ物件!南向き角部屋で採光も良好!
建物のデザインや敷地面積を重視されない方は、まず「立地の良さ」で選んでみませんか?
弊社では、お客様それぞれの「理想の家」を実現するため、専門のアドバイザーが担当いたします。
物件に関するご質問はもちろん、ご購入の流れやローンシュミレーション、資金面でのご相談等ございましたら、いつでもお気軽にご相談下さい。
キッズコーナーや駐車場も完備!
店舗数業界ナンバーワン!!地域密着のハウスドゥ平野区加美店が皆様のご来店をお待ちしております♪
取扱エリアは大阪市平野区・八尾市です!
お客様のご要望に真摯に耳を傾け、本質を理解し、お客様が本当に必要とされている情報をより迅速に、より豊富に、より的確にご提供できるよう心掛けております。
見るだけ・聞くだけOK♪すべて無料♪♪お家探しなら、ハウスドゥ平野区加美店!へ!!