ヴァレッシア武蔵関駅前シティ 練馬区関町北2丁目の中古マンション
掲載情報更新日:2026年04月06日 次回更新予定日:2026年04月20日
- 1,870万円
-
- 借入ご希望金額
万円 - 借入期間
年 - 借入金利
% - 月々のお支払い金額
円
- 借入ご希望金額
※ 月々のお支払例は目安の試算となりますので、実際の金額とは異なる場合がございます。詳しくは店舗までお問合わせください。
- 練馬区関町北2丁目
-
西武新宿線『武蔵関』 徒歩3分 (約240m)
練馬区関町北2丁目マンション | 物件情報
駅徒歩3分!南西向き!1K!眺望良好!
★TVカメラ付オートロックシステム
★モニター付きインターホン
★宅配ボックス
★エレベーター
★エアコン
★室内洗濯機置き場
★洗浄機付き便座
★浴室換気乾燥機
物件の設備
- 浴室乾燥機
- 温水洗浄便座
- 室内洗濯機置場
- 洗面所独立
- エアコン
- オートロック
- モニタ付インターホン
- フローリング
- クローゼット
- シューズボックス
- バルコニー
- 宅配BOX
- エレベーター
物件詳細情報
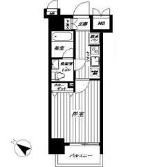
| 価格 | 1,870万円 | 間取り | 1K |
|---|---|---|---|
| 物件種別 | 中古マンション | ||
| 所在地 | 東京都練馬区関町北2丁目 | ||
| アクセス |
|
||
| 専有面積 | 壁芯 21.23㎡ | 所在階 | 11階建/9階部分 |
| 主要採光 | 南西向 | バルコニー | 南西向3.37㎡ |
| その他 | |||
| 権利 | 所有権 |
||
| 保証・評価 | |||
| リフォーム | |||
| 総戸数 | 31戸 | 面積 | |
| 築年月 | 2011年(平成23年)08月築 | 建物構造 | RC 鉄筋コンクリート |
| 施工会社 | ライト工業 | ||
| 管理会社 | 南海ビルサービス | 管理方式 | 全部委託 なし(不在) |
| 駐車場 | |||
| 都市計画 | 用途地域 | 近隣商業 | |
| 建ぺい/容積率 | 土地国土法 | ||
| 法令制限 | |||
| 小学区 | 関町小学校 徒歩6分 (約450m) | 中学区 | 石神井西中学校 徒歩17分 (約1290m) |
| 現況 | 賃貸中 | 引渡 | 相談 |
| 管理費 | 7,860円/月 | 修繕積立金 | 5,940円/月 |
| その他費用 | |||
| 周辺環境 | 練馬区立関町小学校 徒歩6分 (約450m) 練馬区立石神井西中学校 徒歩17分 (約1290m) にじいろ保育園関町北 徒歩2分 (約140m) 関町ちぐさ幼稚園 徒歩6分 (約430m) 自然村 徒歩2分 (約150m) セブンイレブン練馬関町北2丁目店 徒歩1分 (約50m) ココカラファイン関町店 徒歩1分 (約80m) しのはら歯科医院 徒歩2分 (約110m) せきまち公園 徒歩7分 (約540m) 武蔵関駅 徒歩3分 (約170m) |
||
| 備考 | |||
| 物件番号 | 4497408 | 取引態様 | 媒介 |
取扱店舗情報
| 電話番号 | 03-3928-8080 |
|---|---|
| 所在地 | 〒177-0044 東京都練馬区上石神井4丁目30-2 |
| 営業時間 | 10:00~18:00 |
| 定休日 | 年末年始 |
| 宅建免許番号 | 東京都知事(1)第105887号 |
| アクセス | 店舗への地図はこちら |

来店ご予約
- 東京都
マイページ物件数 - 5,753件
最近見た物件
-
-

-
- 中古マンション
- 1,680万円
-
沖縄市泡瀬3丁目
-
高原小学校入口
-
-
-

-
- 中古マンション
- 3,698万円
-
豊田市小坂本町5丁目
-
愛知環状鉄道新豊田
-
-
-

-
- 中古マンション
- 1,388万円
-
山陽小野田市高栄1丁目
-
JR小野田線南中川
-
東京都中古マンション新着物件
-
-

-
- 中古マンション
- 3,080万円
-
世田谷区下馬4丁目
-
東急東横線祐天寺駅
-
-
-

-
- 中古マンション
- 6,790万円
-
世田谷区世田谷2丁目
-
東急世田谷線上町駅
-
-
-

-
- 中古マンション
- 6,499万円
-
世田谷区上用賀3丁目
-
東急田園都市線用賀駅
-
-
-

-
- 中古マンション
- 2,900万円
-
練馬区上石神井3丁目
-
西武新宿線上石神井駅
-
-
-

-
- 中古マンション
- 4,680万円
-
足立区西新井5丁目
-
日暮里舎人ライナー西新井大師西駅
-
-
-

-
- 中古マンション
- 1億2,480万円
-
墨田区錦糸4丁目
-
JR総武本線錦糸町駅
-
-
-

-
- 中古マンション
- 2,480万円
-
北区赤羽1丁目
-
JR埼京線赤羽駅
-
- お近くの店舗を探す
-
おすすめ物件
-
-

-
- 中古マンション
- 8,798万円
-
葛飾区新宿6丁目
-
JR千代田・常磐緩行線金町
-
-
-

-
- 中古マンション
- 1,870万円
-
練馬区関町北2丁目
-
西武新宿線武蔵関
-
-
-

-
- 中古マンション
- 2,280万円
-
葛飾区南水元1丁目
-
JR千代田・常磐緩行線金町
-
-
-

-
- 中古マンション
- 4,390万円
-
足立区西保木間1丁目
-
東武伊勢崎・大師線竹ノ塚
-
-
-

-
- 中古マンション
- 1,280万円
-
練馬区立野町
-
JR中央本線吉祥寺
-
-
-

-
- 中古マンション
- 3,399万円
-
足立区島根2丁目
-
東武伊勢崎・大師線梅島
-
-
-

-
- 中古マンション
- 1億3,450万円
-
世田谷区松原3丁目
-
京王線下高井戸
-
-
-

-
- 中古マンション
- 2,780万円
-
八王子市元横山町2丁目
-
JR中央本線八王子
-
-
-

-
- 中古マンション
- 3,880万円
-
葛飾区亀有2丁目
-
JR千代田・常磐緩行線亀有
-
-
-

-
- 中古マンション
- 7,500万円
-
足立区西新井2丁目
-
東武伊勢崎・大師線大師前
-




お客様一人ひとりのライフスタイルに寄り添い最適なご提案をさせていただきます。