ザ・ウインベル高円寺 中野区大和町1丁目の中古マンション
NEW 11.23掲載情報更新日:2025年11月23日 次回更新予定日:2025年12月07日
- 9,580万円
-
- 借入ご希望金額
万円 - 借入期間
年 - 借入金利
% - 月々のお支払い金額
円
- 借入ご希望金額
※ 月々のお支払例は目安の試算となりますので、実際の金額とは異なる場合がございます。詳しくは店舗までお問合わせください。
- 中野区大和町1丁目
-
JR総武・中央緩行線『高円寺』 徒歩7分 (約560m)
中野区大和町1丁目マンション | 物件情報
●JR中央線「高円寺」駅徒歩7分●6階部分の角住戸●眺望・通風良好
~~~POINT~~~
*新規リフォーム物件
*開放感のあるルーフバルコニー付き住戸
*収納に便利なトランクルームあり(0.88㎡)
■2025年10月リフォーム完成済み
キッチン交換/浴室交換/洗面台交換/
トイレ交換/防水パン交換/クロス張替/
フローリング張替/フロアタイル貼替/
建具交換/エアコン新規設置/
照明器具一部/レースカーテン 等
■その他仕様・設備
食洗機/浴室換気乾燥機/追い焚き/
TVモニター付きインターホン/宅配BOX/
オートロック 等
物件の設備
- 公営水道
- 下水道
- 食器洗浄乾燥機
- カウンターキッチン
- システムキッチン
- 追焚機能
- 浴室乾燥機
- 温水洗浄便座
- オートロック
- モニタ付インターホン
- モニタ付オートロック
- 防犯カメラ
- フローリング張替
- 全居室収納
- バルコニー
- ルーフバルコニー
- 宅配BOX
物件の特徴
- 管理人日勤
- 内装リフォーム済
- 角部屋
- ペット不可
物件詳細情報
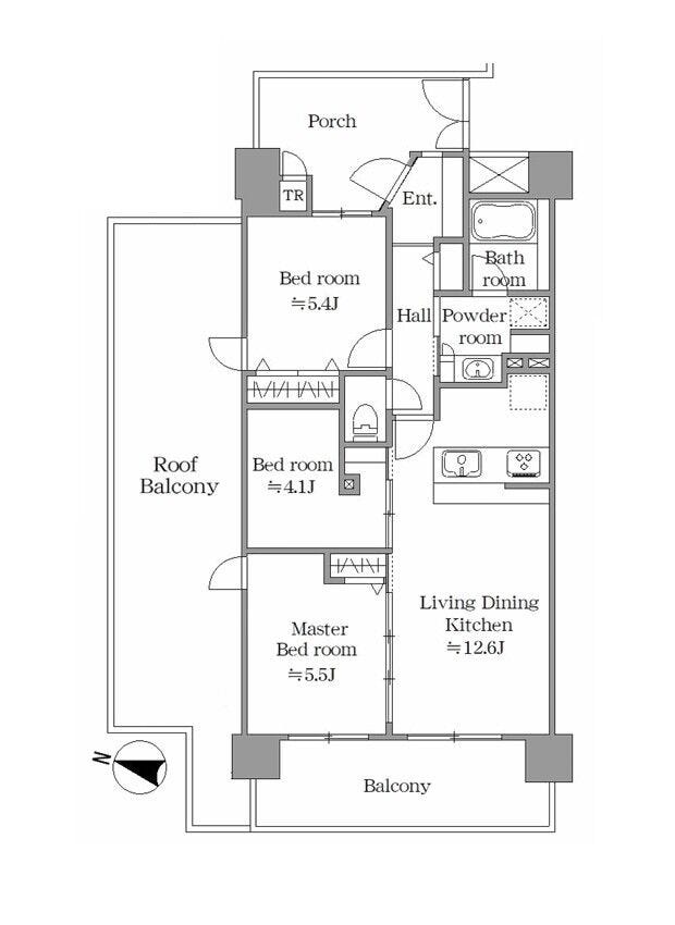
| 価格 | 9,580万円 | 間取り | 3LDK |
|---|---|---|---|
| 物件種別 | 中古マンション | ||
| 所在地 | 東京都中野区大和町1丁目 | ||
| アクセス |
|
||
| 専有面積 | 壁芯 62.47㎡ | 所在階 | 9階建/6階部分 |
| 主要採光 | 西向 | バルコニー | 西向11.40㎡ |
| その他 | 36.65㎡ 0円/月 | ||
| 権利 | 所有権 |
||
| 保証・評価 | |||
| リフォーム | 【水回り】2025年10月 キッチン・浴室・トイレ・洗面 【内装】2025年10月 壁、天井 ・床 ・全室クロス ・建具 |
||
| 総戸数 | 51戸 | 面積 | |
| 築年月 | 1999年(平成11年)02月築 | 建物構造 | RC |
| 施工会社 | 住友建設㈱ | ||
| 管理会社 | ㈱長谷工コミュニティ | 管理方式 | 全部委託 日勤管理 |
| 駐車場 | |||
| 都市計画 | 用途地域 | 近隣商業(一部1種中高 含む) | |
| 建ぺい/容積率 | 土地国土法 | ||
| 法令制限 | |||
| 小学区 | 中学区 | ||
| 現況 | 空 | 引渡 | 相談 |
| 管理費 | 6,800円/月 | 修繕積立金 | 15,700円/月 |
| その他費用 | |||
| 備考 | |||
| 物件番号 | 4500234 | 取引態様 | 媒介 |
取扱店舗情報
ハウスドゥ 新宿三丁目 株式会社レーヴホライズン 店舗詳細ページへ
| 電話番号 | 03-6384-2356 |
|---|---|
| 所在地 | 〒160-0022 東京都新宿区新宿2-15-22 Landwork新宿ビル5階 |
| 営業時間 | 9:00~18:00 |
| 定休日 | 火曜日、水曜日、GW、夏期、年末年始 |
| 宅建免許番号 | 東京都知事(2)第100808号 |
| アクセス | 店舗への地図はこちら |

来店ご予約
- 東京都
マイページ物件数 - 5,620件
東京都中古マンション新着物件
- お近くの店舗を探す
-
おすすめ物件
-
-

-
- 中古マンション
- 6,300万円
-
狛江市岩戸南1丁目
-
小田急小田原線狛江
-
-
-

-
- 中古マンション
- 3,998万円
-
調布市国領町4丁目
-
京王線国領
-
-
-

-
- 中古マンション
- 7,499万円
-
調布市国領町7丁目
-
京王線国領
-
-
-

-
- 中古マンション
- 3,500万円
-
板橋区常盤台3丁目
-
東武東上線ときわ台
-
-
-

-
- 中古マンション
- 5,480万円
-
調布市上石原3丁目
-
京王線西調布
-
-
-

-
- 中古マンション
- 4,299万円
-
世田谷区砧2丁目
-
小田急小田原線千歳船橋
-
-
-

-
- 中古マンション
- 2,690万円
-
足立区保木間1丁目
-
東武伊勢崎・大師線竹ノ塚
-
-
-

-
- 中古マンション
- 9,999万円
-
世田谷区上北沢5丁目
-
京王線八幡山
-
-
-

-
- 中古マンション
- 3,180万円
-
足立区大谷田5丁目
-
東京メトロ千代田線綾瀬
-
-
-

-
- 中古マンション
- 4,880万円
-
葛飾区堀切4丁目
-
京成本線堀切菖蒲園
-












